Character farmhouse with holiday lets and substantial workshop in secluded countryside.
Approx. 5 acres of paddock and mature gardens
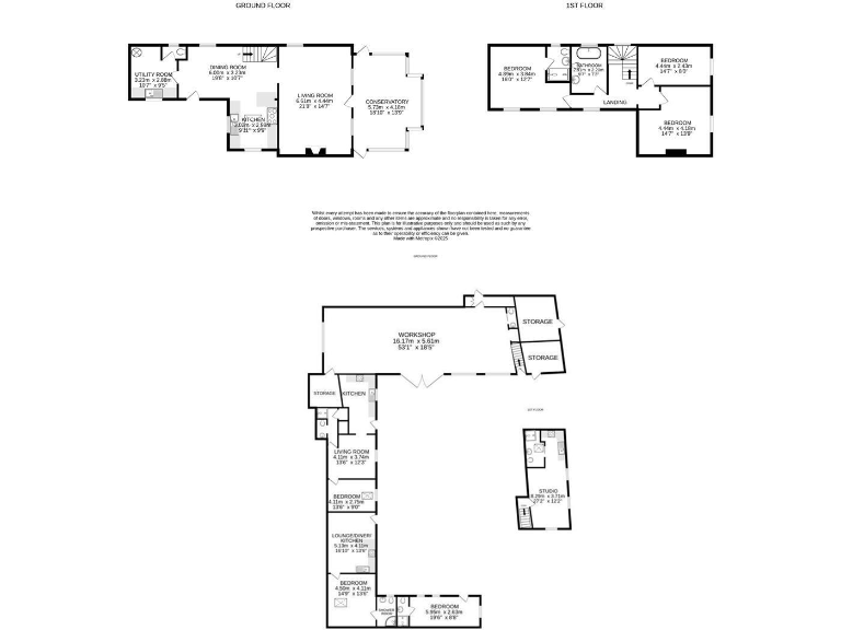
Set in roughly five acres of paddock and mature gardens, Medlyn Moor Farm is a traditional granite farmhouse offering a rare rural lifestyle package. The main house provides three bedrooms, two bathrooms and a mix of spacious reception rooms including a conservatory with countryside views. Original character runs through the property, complemented by double glazing fitted before 2002 and internal wall insulation.
The courtyard includes three holiday-let cottages and a separate studio apartment, giving immediate income potential or multi-generational living options. A large powered workshop with a heavy-duty winch suits hobbies, vehicle restoration or small-scale business use. Generous parking for several vehicles adds practicality for visitors or guests.
Practical points to note: the farmhouse uses oil-fired central heating, cottages have air-source heating, and drainage is private. EPC rating E (49) and very slow broadband reflect the rural nature. A public footpath runs across the access lane and along the paddock boundary. Mobile signal is average and the location is remote, so expect some travel to services and schooling.
This property will suit buyers seeking space, seclusion and diversified income streams — a family wanting room to roam, or an investor/holiday operator looking for a turnkey rural enterprise. Some updating and modernisation may increase comfort and energy efficiency, and those requiring fast connectivity will need to plan for alternatives.
4 bedroom character property for sale in Countryside home set within large grounds, Near Godolphin Cross, TR13 — £650,000 • 4 bed • 2 bath • 1751 ft²
5 bedroom detached house for sale in Farmhouse with Land, Sithney, Helston, TR13 — £730,000 • 5 bed • 1 bath • 1306 ft²
3 bedroom cottage for sale in Medlyn Moor, Porkellis, Helston, TR13 — £725,000 • 3 bed • 1 bath • 1032 ft²
4 bedroom detached house for sale in Idyllic Rural Farmhouse with Annexe, Derelict Barn & Stunning Views – Nr St Erth, TR27 — £1,100,000 • 4 bed • 1 bath • 897 ft²
6 bedroom character property for sale in Trenear, Helston - Farmhouse and Barn Conversions, TR13 — £1,500,000 • 6 bed • 6 bath • 593 ft²
4 bedroom detached house for sale in Gorgeous property with 5 acres of land, Kehelland, TR14 — £747,550 • 4 bed • 1 bath • 1878 ft²






































































































































