Spacious rural home with outbuildings and wide coastal access.
Approximately five acres of land with meadow, paddock and private garden
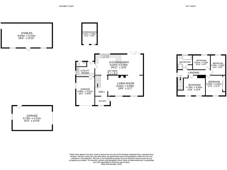
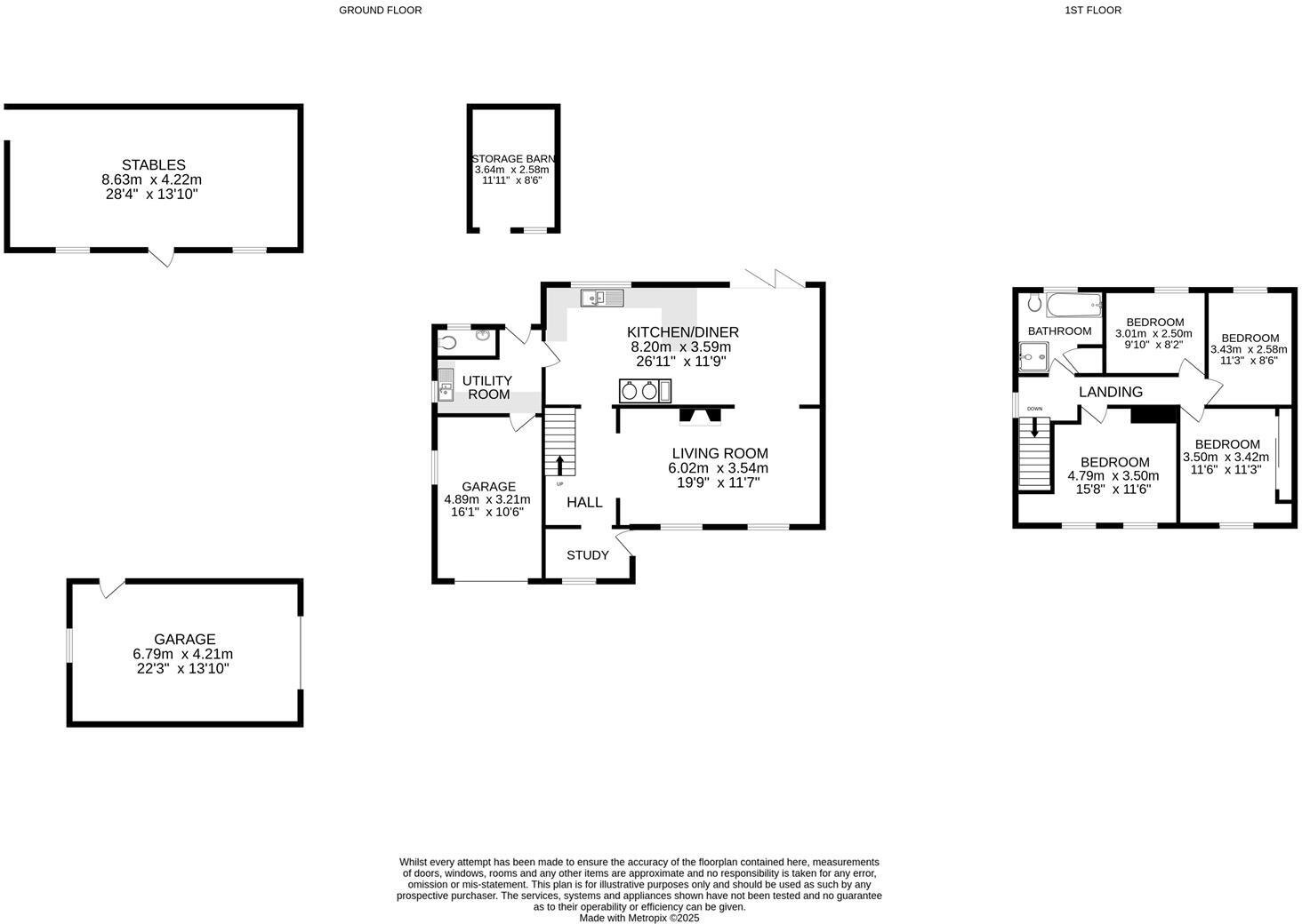
Set within approximately five acres in an Area of Outstanding Natural Beauty, this detached four-bedroom farmhouse blends traditional character with useful modern systems. The house offers a large open-plan kitchen/dining room, living room, and generous bedrooms over two floors, alongside an integral garage and ample gravel parking. Outbuildings include a storage barn, workshop and stables, offering versatile space for hobbies, smallholding uses or potential conversion (subject to consents).
Practical advantages include a ground source heat pump, bore hole water supply, Starlink internet and an EPC rating of C (72). The location is rural and peaceful with convenient access to Gwithian and Godrevy beaches and nearby primary schooling. The property is freehold, offered with no onward chain and sits in a very low-crime area with no flood risk.
Buyers should note some clear practical drawbacks: broadband speeds are very slow without Starlink, the house has solid brick walls assumed to lack insulation, and there is only one family bathroom. Planning permission for a two-storey extension previously granted has lapsed (decision PA21/00640), so any enlargement would require fresh consent. Some outbuildings and parts of the property will need updating if conversion is intended.
This is a strong choice for a family seeking space, privacy and scope for smallholding or creative reuse of outbuildings. It will particularly suit purchasers prepared to carry out sympathetic upgrades and to manage rural utilities such as private drainage and bore hole supply.
4 bedroom detached house for sale in Idyllic Rural Farmhouse with Annexe, Derelict Barn & Stunning Views – Nr St Erth, TR27 — £1,100,000 • 4 bed • 1 bath • 897 ft²
4 bedroom detached house for sale in Higher Kehelland, Camborne, Cornwall, TR14 — £1,250,000 • 4 bed • 4 bath • 5618 ft²
4 bedroom detached house for sale in Farmhouse with approx 6 acres of land, Nr Camborne, TR14 — £695,000 • 4 bed • 2 bath • 2980 ft²
4 bedroom detached house for sale in Bone Valley, Heamoor, TR20 8UJ, TR20 — £1,250,000 • 4 bed • 5 bath • 2228 ft²
6 bedroom detached house for sale in Gwinear, Hayle, TR27 — £950,000 • 6 bed • 4 bath • 3842 ft²
5 bedroom detached house for sale in Hale Mills, Twelveheads, Truro, Cornwall, TR4 — £850,000 • 5 bed • 4 bath • 2478 ft²






















































































































