**Standout Features:**
- Grade II listed cottage from the early 1800s with historical charm
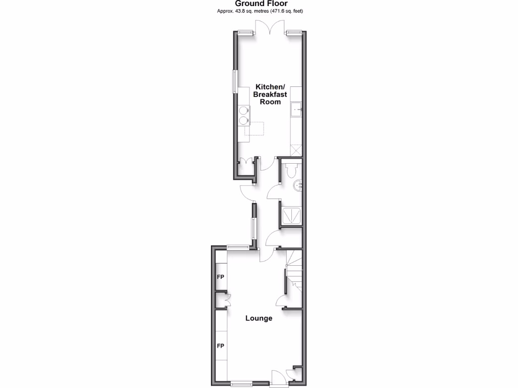
- Spacious, extended kitchen/dining area featuring a bespoke kitchen, Esse oven, vaulted ceilings, and underfloor heating
- Secluded rear garden with views of the Cathedral, patio area, lawn, and a garden studio with power and WiFi
- Beautifully presented with period features, high ceilings, and stylish heritage paintwork
**Potential Concerns:**
- Grade II listing may pose renovation challenges
- Built with system walls and no insulation, which could affect energy efficiency
- Electric storage heating may not suit all preferences
Experience the allure of this quintessential Arundel cottage nestled in a tranquil setting, just steps from the historic Cathedral quarter. This 2-bedroom mid-terraced home combines old-world charm with modern comforts, showcasing an inviting, vaulted kitchen/dining area equipped with bespoke finishes and underfloor heating. The beautifully landscaped rear garden offers a serene escape, enhanced by stunning views of the Gothic cathedral.
Enjoy the spacious living area accented by original period features and an open fireplace, providing the perfect backdrop for family gatherings. With room for future customization, including the loft for extra storage or living space, this property offers versatility to meet a range of needs.
Absolutely ideal for families or professionals seeking a peaceful yet vibrant community, this property is conveniently located near local amenities, parks, and excellent schooling options—making it an exceptional find in a highly sought-after area. Don’t miss your chance to own this charming home; properties like this don’t stay on the market long!
2 bedroom terraced house for sale in Mount Pleasant, Arundel, West Sussex, BN18 — £450,000 • 2 bed • 2 bath • 808 ft²
2 bedroom terraced house for sale in Surrey Street, Arundel, West Sussex, BN18 — £500,000 • 2 bed • 1 bath • 840 ft²
3 bedroom terraced house for sale in King Street, Arundel, West Sussex, BN18 — £700,000 • 3 bed • 1 bath • 794 ft²
2 bedroom cottage for sale in Mount Pleasant, Arundel, BN18 — £545,000 • 2 bed • 1 bath • 950 ft²
2 bedroom terraced house for sale in Orchard Place, Arundel, West Sussex, BN18 — £425,000 • 2 bed • 1 bath • 926 ft²
3 bedroom end of terrace house for sale in Mount Pleasant, Arundel, West Sussex, BN18 — £375,000 • 3 bed • 2 bath • 937 ft²






















































































































