**Standout Features:**
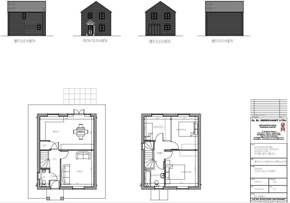
- Full planning permission granted for a 3-bedroom detached house.
- Generously sized plot of approximately 270m² (2,906 sq ft).
- Located within a residential area in Holbeach Clough, offering a semi-rural atmosphere.
- Securely fenced with clear boundaries, ready for development.
- Access to mains electricity, water, and drainage nearby.
**Potential Concerns:**
- The purchaser must comply with various conditions attached to the planning consent.
- Additional fencing required on the western boundary.
Discover your opportunity to build in the heart of Holbeach Clough, with full planning permission already in place for a charming 3-bedroom detached home. This sizeable plot, nestled among an established residential community, offers a tranquil environment backed by scenic views and easy access to local amenities in Holbeach and beyond. Ideal for families or investors, the site is positioned just 1.5 miles from Holbeach, where you'll find reputable primary and secondary schools, shops, and leisure offers.
This attractive plot provides the perfect canvas for your future dream home, offering a unique chance to create a comfortable living space tailored to your needs. Note that the purchaser will be responsible for certain conditions necessary to fulfil the planning consent, adding to the overall investment potential. With a reasonable price of £80,000, this plot is an inviting prospect—don’t miss out on this rare piece of land ready for your vision to come to life!
Land for sale in Plot At The Old Black Horse, Holbeach clough. PE12 8DJ, PE12 — £80,000 • 1 bed • 1 bath • 2906 ft²
Plot for sale in Penny Hill Road, Holbeach, Spalding, PE12 — £400,000 • 1 bed • 1 bath
Land for sale in Foxes Low Road, Holbeach, Lincolnshire, PE12 7PA, PE12 — £375,000 • 1 bed • 1 bath
Land for sale in Land At Foxes Lowe, Whaplode St. Catharines, Spalding, PE12 — £285,000 • 1 bed • 1 bath • 21780 ft²
Residential development for sale in Garage Site At Hall Hill Road, Holbeach PE12 7JB, PE12 — £135,000 • 1 bed • 1 bath • 14446 ft²
Land for sale in Stockwell Gate North, Whaplode, Lincolnshire, PE12 — £135,000 • 1 bed • 1 bath


























