G41 2DW - 2 bedroom flat for sale in Flat 2/2, 35 Waverley Gardens, G…

View on Property Piper

2 bedroom flat for sale in Flat 2/2, 35 Waverley Gardens, Glasgow, G41

Summary - FLAT 2/2, 35, WAVERLEY GARDENS G41 2DW

2 bed 1 bath Flat

**Standout Features:**
- Prime Shawlands location with a pleasant tree-lined outlook
- Recently renovated 2-bedroom flat in a traditional Victorian sandstone tenement
- Bright and spacious interior with high ceilings and original features
- Modernized kitchen and bathroom with integrated appliances
- Security-controlled entrance and well-maintained communal gardens
- Excellent public transport links and local amenities within walking distance
- Affordable council tax, making it great for first-time buyers or investors

Discover your ideal urban retreat in this beautifully upgraded 2-bedroom flat located in the heart of Shawlands. Housed in a charming Victorian tenement, this property features a bright and generously proportioned interior that blends traditional character with modern luxury. Revel in the stunning bay-windowed lounge, flooded with natural light and characterized by elegant cornicing and quality hardwood flooring. The bespoke open-plan kitchen and attractive bathroom further enhance the property's appeal.

This desirable flat is perfect for first-time buyers or investors looking for rental potential, thanks to its close proximity to vibrant amenities along Kilmarnock Road and excellent transport links to Glasgow City Centre. Enjoy a comfortable lifestyle with access to community gardens and green spaces like Pollok Country Park. With its affordable council tax and low maintenance needs, this unique opportunity won't last long. **Act fast—this property has a closing date set for Tuesday, 29th July at 12 noon!**

Property Details

Image Descriptions

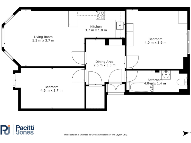
Floorplan Description

Rooms

Textual Property Features

Detected Visual Features

Nearest Bars And Restaurants

,,,,}

Nearest General Shops

,,}

Nearest Grocery shops

,,}

Nearest Supermarkets

,,}

Nearest Religious buildings

,,}

Nearest Medical buildings

,,,}

Nearest Airports

,}

Nearest Leisure Facilities

,,,,}

Nearest Tourist attractions

,,}

Nearest Train stations

,,,,}

Nearest Bus stations and stops

,,,,}

Nearest Hotels

,,}

Tags

Local Market Stats

AirBnB Data

Similar Properties

Meta

High Res Images

Compatible Images

Low res Images

Thumbnails

Raw Images

High Res Floorplan Images

Compatible Floorplan Images

Low res Floorplan Images

FloorplanImages Thumbnail

Raw Floorplan Images