Characterful one-bedroom ground-floor tenement near Shawlands amenities and parks.
Freehold ground-floor tenement with retained Victorian features
Bay-fronted lounge, high ceilings and ample natural light
Private front garden plus larger communal rear garden
Gas central heating and UPVC double glazing installed
Refurbished bathroom; bespoke fitted kitchen in place
EPC Band D; council tax band moderate
Area classified as very deprived — consider long-term regeneration plans
Closing date for offers Friday 12th September at 12 noon
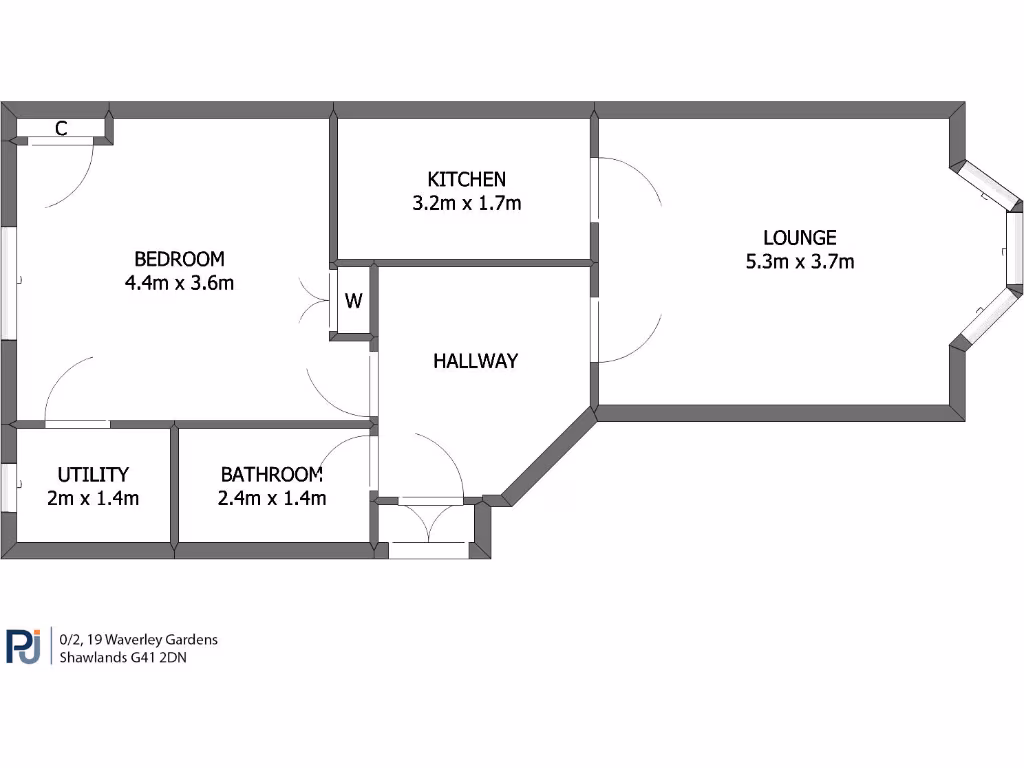
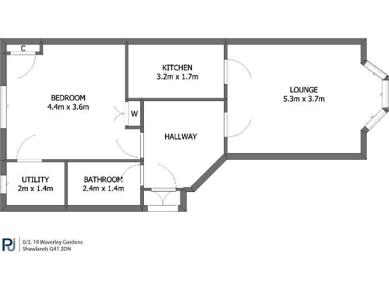
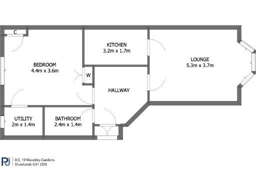
This traditional ground-floor tenement flat combines Victorian character with practical, ready-to-live-in accommodation. High ceilings, a bay-fronted lounge and retained period details give the interior charm, while neutral decor and recent upkeep mean minimal immediate works are required.
Quiet rear-facing double bedroom and a bespoke fitted kitchen make sensible everyday living; the refurbished bathroom includes a shower over bath. Heating is by gas central heating and the windows are UPVC double glazed, helping with comfort and running costs. Private front garden plus larger communal rear garden add outdoor space rare for city flats.
Location is a major draw: the property sits in the heart of Shawlands with cafés, shops and frequent public transport nearby, giving fast links to the city centre and local parks such as Pollok and Queens Park. Practical details to note: the building sits within an area classed as very deprived, the EPC is Band D and council tax is moderate. There is a formal closing date for offers (Friday 12th September at 12 noon).
Overall this freehold one-bedroom flat will suit a first-time buyer or buyer seeking a city base with character and outdoor space. It offers straightforward living, good commuter links and potential to personalise while avoiding major immediate renovation.
1 bedroom apartment for sale in Tantallon Road, Glasgow, G41 — £180,000 • 1 bed • 1 bath • 732 ft²
1 bedroom flat for sale in 23 Waverley Gardens, Flat 3/1, Shawlands, Glasgow, G41 2DN, G41 — £169,000 • 1 bed • 1 bath • 667 ft²
1 bedroom apartment for sale in Tassie Street, Shawlands, G41 — £160,000 • 1 bed • 1 bath • 679 ft²
1 bedroom flat for sale in 66 Norham Street, Flat 0/1, Shawlands, Glasgow, G41 3XH, G41 — £179,000 • 1 bed • 1 bath • 721 ft²
2 bedroom apartment for sale in James Gray Street, Shawlands, Glasgow, G41 — £205,000 • 2 bed • 1 bath • 888 ft²
1 bedroom apartment for sale in Skirving Street, Shawlands, Glasgow, G41 — £145,000 • 1 bed • 1 bath • 518 ft²






























































































