LE11 1ES - Commercial development for sale in Nottingham Road, Loughbo…

View on Property Piper

Commercial development for sale in Nottingham Road, Loughborough, LE11

Summary - Nottingham Road, Loughborough LE11 1ES

3 bed 1 bath Commercial Development

**Notable Features:**
- Mixed-use property with ground-floor dance studio and a three-bedroom flat
- Commercial unit currently let on a 1954 Act tenancy generating £7,800/annum
- Residential flat (previously £800/PCM) vacant with renovation potential and HMO suitability
- Excellent transport links and proximity to Loughborough town amenities
- Freehold property requiring some modernization
- High crime rate in the area and within an Article 4 Direction for HMO conversions
- Very cheap council tax

This unique opportunity encompasses a vibrant dance studio alongside a vacant three-bedroom flat, perfect for savvy investors or first-time buyers seeking rental potential. The commercial space offers a reliable income stream, while the residential unit has great scope for enhancements to maximize returns, potentially transforming it into a lucrative House in Multiple Occupation (HMO) pending planning consents.

Located in the bustling market town of Loughborough, known for its university, the property provides excellent transport links and easy access to local amenities, making it appealing for families and young professionals alike. Awaiting your creative touch, both units require some modernization, allowing for personalized upgrades to fit your vision. Seize this chance to own a versatile investment in a growing area—properties like this don’t stay on the market for long!

Property Details

Brochure Descriptions

Image Descriptions

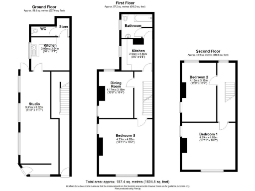
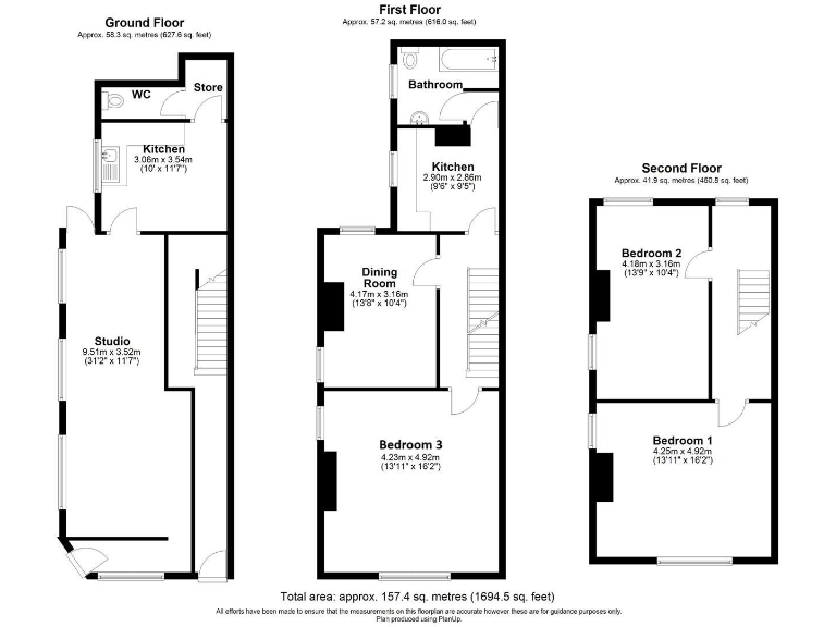
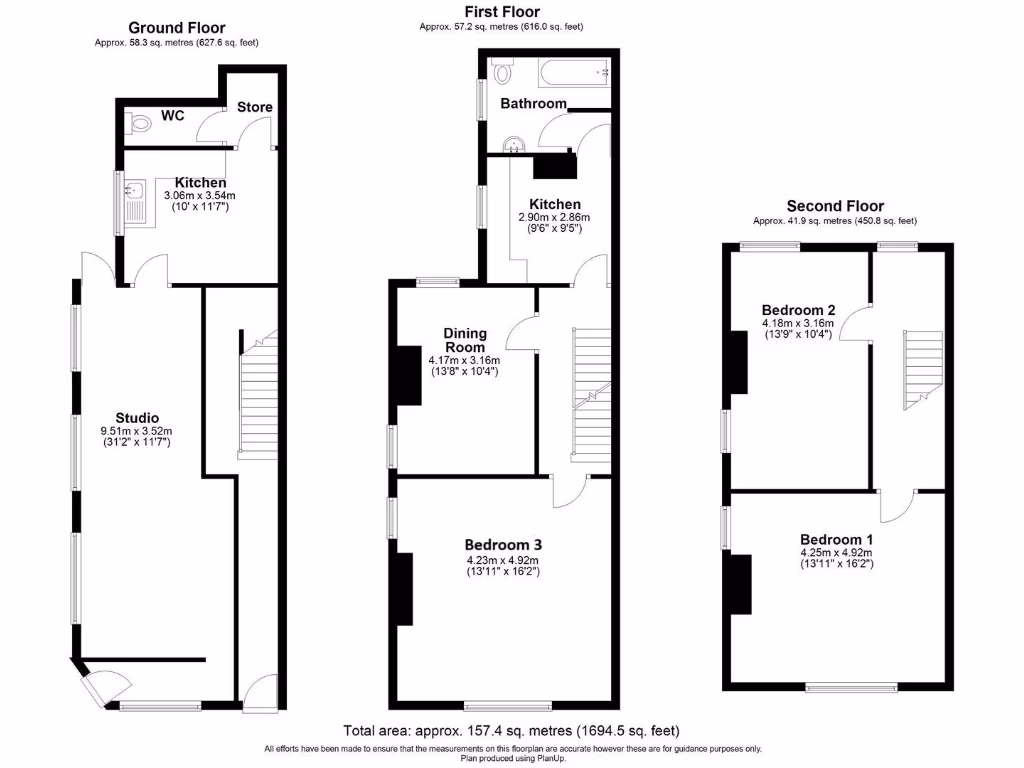
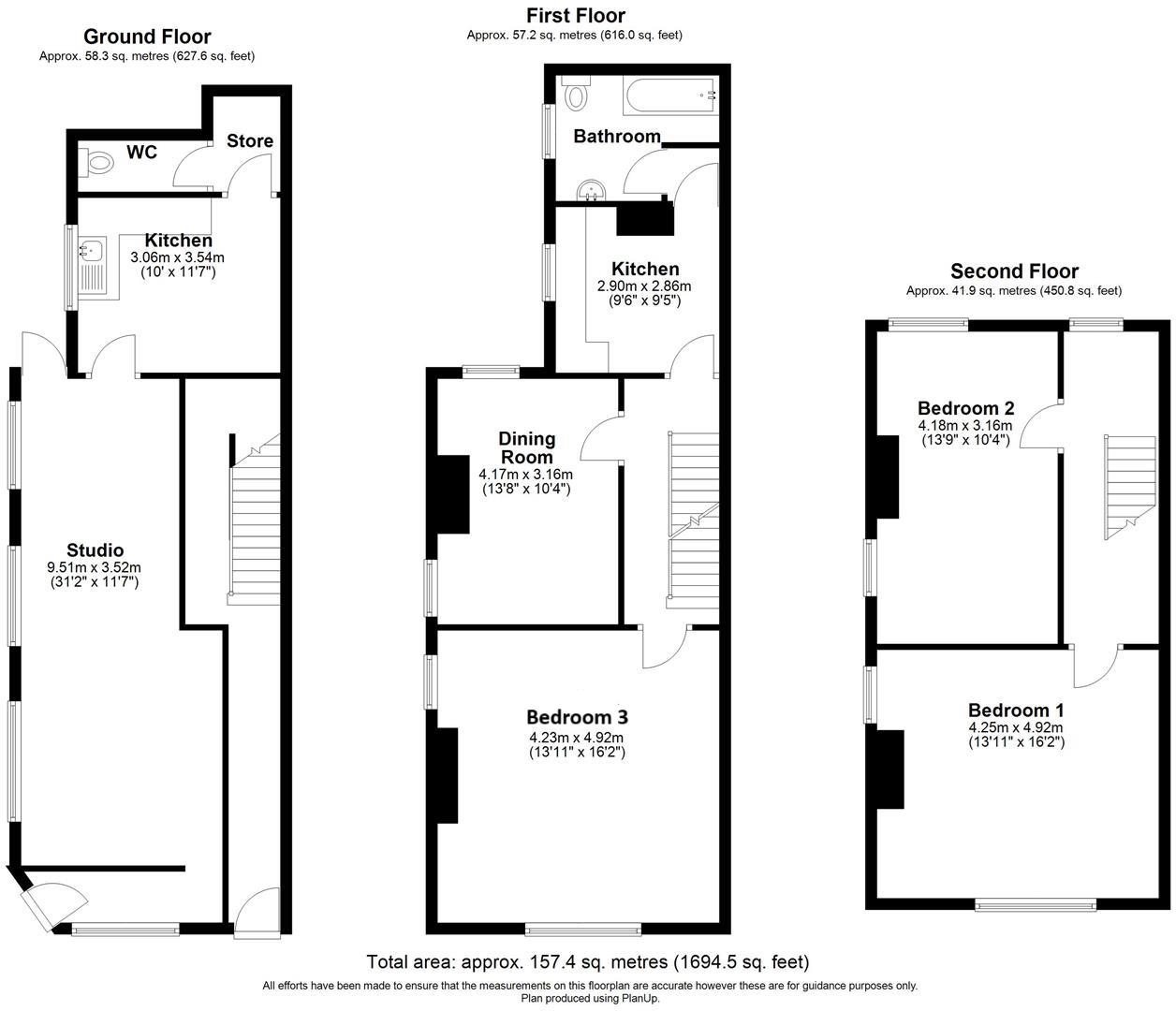
Floorplan Description

Rooms

Textual Property Features

Detected Visual Features

EPC Details

Nearby Schools

Nearest Bars And Restaurants

,,,,}

Nearest General Shops

,,}

Nearest Grocery shops

,,}

Nearest Supermarkets

,,}

Nearest Religious buildings

,,}

Nearest Medical buildings

,,,}

Nearest Airports

}

Nearest Leisure Facilities

,,,,}

Nearest Tourist attractions

,,}

Nearest Train stations

,,,,}

Nearest Bus stations and stops

,,,,}

Nearest Hotels

,,}

Tags

Local Market Stats

AirBnB Data

Similar Properties

Meta

High Res Images

Compatible Images

Low res Images

Thumbnails

Raw Images

High Res Floorplan Images

Compatible Floorplan Images

Low res Floorplan Images

FloorplanImages Thumbnail

Raw Floorplan Images