LE11 1ES - 3 bedroom property for sale in Nottingham Road, Loughboroug…

View on Property Piper

3 bedroom property for sale in Nottingham Road, Loughborough, LE11

Summary - 81a Nottingham Road, LOUGHBOROUGH LE11 1ES

3 bed 1 bath Not Specified

**Standout Features:**
- Mixed-use investment property: ground-floor commercial unit (dance studio) and three-bedroom residential flat
- Existing income from the commercial unit at £7,800/year
- Residential unit (previously rented at £800/month) offers renovation potential and can potentially convert to HMO (subject to planning permission)
- Convenient location with excellent transport links in Loughborough, a vibrant university town
- Freehold tenancy and chain-free sale
- Requires renovation, particularly in the residential flat

**Summary:**
Discover a unique investment opportunity in the heart of Loughborough with this mixed-use property featuring a ground-floor dance studio and a spacious three-bedroom flat above. Currently generating steady income from the studio at £7,800 per annum, this property is an attractive prospect for both seasoned investors and first-time buyers looking to enter the rental market. The residential unit is in need of modernisation, but its generous layout offers ample potential to boost rental yields, particularly through conversion into a House in Multiple Occupation (HMO), pending necessary approvals.

Nestled within a culturally rich urban area, this Victorian brick building benefits from excellent transport links and proximity to local amenities, making it an appealing location for families and professionals alike. While the area experiences some crime exposure and the property requires renovation, its freehold status and affordable council tax create room for strategic investment and personalisation. Don't miss the chance to explore this versatile gem, as opportunities like this are rare in such a vibrant market!

Property Details

Brochure Descriptions

Image Descriptions

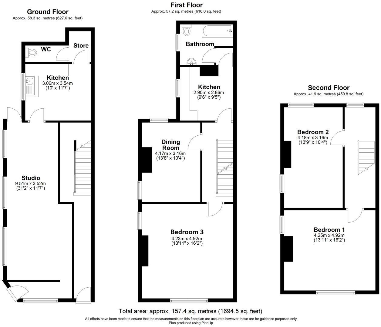
Floorplan Description

Rooms

Textual Property Features

Detected Visual Features

EPC Details

Nearby Schools

Nearest Bars And Restaurants

,,,,}

Nearest General Shops

,,}

Nearest Grocery shops

,,}

Nearest Supermarkets

,,}

Nearest Religious buildings

,,}

Nearest Medical buildings

,,,}

Nearest Airports

}

Nearest Leisure Facilities

,,,,}

Nearest Tourist attractions

,,}

Nearest Train stations

,,,,}

Nearest Bus stations and stops

,,,,}

Nearest Hotels

,,}

Tags

Local Market Stats

AirBnB Data

Similar Properties

Meta

High Res Images

Compatible Images

Low res Images

Thumbnails

Raw Images

High Res Floorplan Images

Compatible Floorplan Images

Low res Floorplan Images

FloorplanImages Thumbnail

Raw Floorplan Images