Bright first-floor home with loft conversion potential near transport and shops.
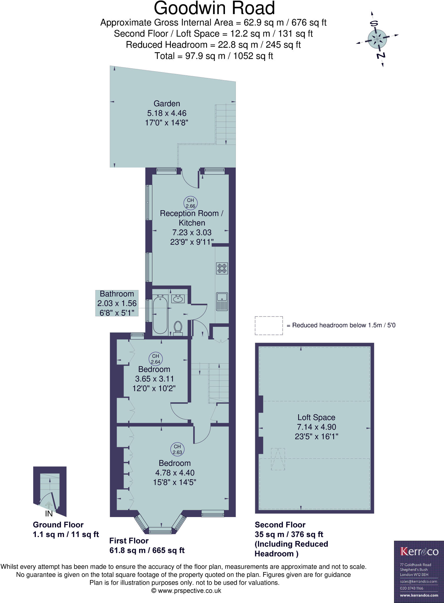
First-floor two-bedroom flat with private rear garden overlooking Cathnor Park
Newly refurbished interiors, double glazing, gas central heating throughout
Demised loft attic included — potential conversion subject to consents (STPP)
Leasehold: 146 years remaining; review lease documents before offer
Service charge: 50% of outgoings; peppercorn ground rent (check details)
Solid-brick pre-1900 construction; likely no cavity insulation, upgrade may be needed
Local issues: reported high crime and wider area deprivation — factor into decision
Set on the first floor of a converted Victorian terrace, this newly refurbished two-bedroom flat offers generous, naturally bright rooms and a private rear garden backing onto Cathnor Park. Finished to a modern standard with double glazing and gas central heating, the apartment feels roomy across its 1,052 sq ft total area, including demised loft space that could be converted subject to the usual consents.
The demised attic presents clear scope to increase living space (STPP), a genuine value driver for buyers seeking extension potential. The property is well connected: three nearby Underground stations and local shopping at Shepherd's Bush and Westfield are all within easy walking distance. Broadband and mobile signal are excellent, supporting home working and streaming.
Buyers should note material practicalities: the flat is leasehold with 146 years remaining and a service arrangement that requires splitting 50% of outgoings plus a peppercorn ground rent; buyers should review the service charge detail. The building is a solid-brick, pre-1900 construction likely without cavity insulation and so future energy upgrades may be needed.
The area offers excellent schools nearby and park access, making this suitable for first-time buyers or couples wanting easy transport links. However, local crime levels are reported as high and the wider neighbourhood scores as deprived, so prospective purchasers should consider security and local services when viewing. Access involves steps to the front and internal stairs, which affects mobility and deliveries.
2 bedroom flat for sale in Goodwin Road, Shepherd's Bush W12 — £750,000 • 2 bed • 1 bath • 850 ft²
2 bedroom flat for sale in Cathnor Road, London, W12 — £425,000 • 2 bed • 1 bath • 547 ft²
2 bedroom apartment for sale in Coningham Road, London, W12 — £385,000 • 2 bed • 1 bath • 529 ft²
2 bedroom flat for sale in Hetley Road, London, W12 — £500,000 • 2 bed • 1 bath • 602 ft²
2 bedroom flat for sale in Coningham Road, London, W12 — £950,000 • 2 bed • 2 bath • 1000 ft²
2 bedroom flat for sale in Mark Mansions, Shepherd's Bush W12 — £590,000 • 2 bed • 1 bath • 819 ft²














































