**Standout Features:**
- Four spacious bedrooms including an en-suite
- Modern open-plan living and kitchen area
- Beautifully maintained enclosed rear garden
- Detached with a garage and off-road parking
- Sought-after location in Rufford
- Chain-free sale
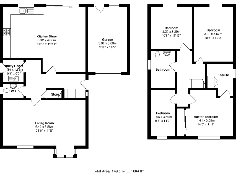
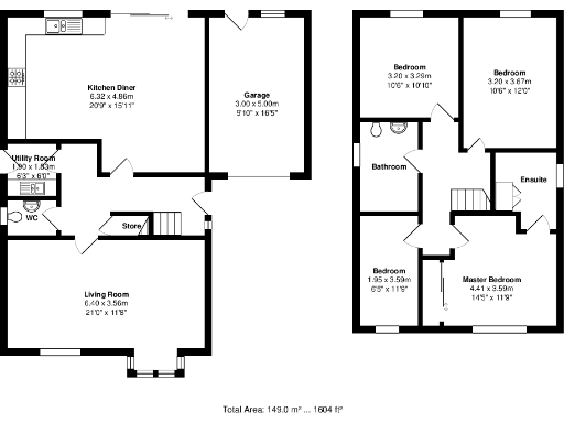
Nestled in the desirable village of Rufford, this beautifully presented four-bedroom detached home perfectly balances contemporary design with family-friendly functionality. Offering an inviting open-plan living space, the lounge and dining areas flow seamlessly, creating an ideal environment for both relaxation and entertaining. The modern fitted kitchen is a true centerpiece, showcasing high-spec integrated appliances and stunning garden views through expansive sliding glass doors. The well-sized bedrooms provide comfort and privacy, with the main bedroom benefiting from a chic en-suite.
Step outside to discover the beautifully maintained garden, a serene outdoor retreat boasting a covered pergola ideal for al fresco dining—perfect for gatherings with family and friends. Complemented by a spacious driveway and garage, this home ticks all the boxes for modern living. While the council tax rate may be considered above average, the affluent area is host to excellent local schools and amenities, further enhancing its appeal, especially for families. Viewing opportunities are available, so don't miss out on this exceptional property that blends style, comfort, and potential in a sought-after location.
5 bedroom detached house for sale in Roseacre Gardens, Rufford, L40 — £650,000 • 5 bed • 3 bath • 2793 ft²
4 bedroom end of terrace house for sale in Liverpool Road, Rufford L40 — £350,000 • 4 bed • 2 bath • 1479 ft²
4 bedroom detached house for sale in Liverpool Road, Rufford, L40 — £699,950 • 4 bed • 2 bath • 2119 ft²
3 bedroom detached house for sale in Riverside Road, Rufford, L40 — £300,000 • 3 bed • 2 bath • 914 ft²
4 bedroom link detached house for sale in Liverpool Road, L40 — £660,000 • 4 bed • 1 bath • 2305 ft²
4 bedroom detached house for sale in Liverpool Road, L40 — £750,000 • 4 bed • 2 bath • 2022 ft²






















































































































