Luxury new-build family home on a large private plot with countryside views.
- Newly constructed 2023 detached family home, chain free
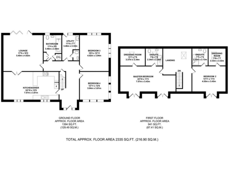
- Four double bedrooms; two upper bedroom ensuites with dressing areas
- Open-plan kitchen/dining room plus separate living room with bi-fold doors
- Two ground-floor double bedrooms offer flexible multigenerational use
- Very large, fully fenced rear garden with countryside views
- Extensive paved driveway; space for garaging or vehicle turnaround
- Excellent mobile signal and fast broadband; mains gas central heating
- Council tax banding described as expensive; garden maintenance required
Set on a very large plot in a secluded rural lane, this newly built four-bedroom detached home offers contemporary family living and countryside views. The ground floor provides flexible accommodation with two double bedrooms, open-plan kitchen/dining, utility, living room with bi-fold doors and a downstairs WC — ideal for multi-generational use or home working. Upstairs are two double bedrooms, each with dressing areas, ensuites and Juliet balconies, giving privacy and separate bedroom suites for adults.
Finished in 2023 to a high specification with integrated appliances, modern sanitaryware and efficient mains gas heating, the property is move-in ready and chain free. A broad paved driveway provides extensive off-street parking and potential space for garaging or turning. The large, fully fenced garden faces open countryside, creating a private outdoor retreat and space for family activities.
Practical points to note: the property sits in an ageing rural neighbourhood with limited immediate amenities on the doorstep, though Hadlow village and Tonbridge are a short drive away with fast commuter rail links and wider services. Council tax is described as expensive, and the size of the plot and garden will require ongoing maintenance. Overall this is a contemporary, spacious family home that combines modern convenience with a peaceful rural setting.
4 bedroom detached house for sale in High House Lane, TN11 — £995,000 • 4 bed • 3 bath • 2142 ft²
4 bedroom house for sale in Ashes Lane, Hadlow, TN11 — £700,000 • 4 bed • 1 bath • 1559 ft²
4 bedroom detached house for sale in Chesfield Close, Hadlow, Tonbridge, TN11 — £975,000 • 4 bed • 2 bath • 1982 ft²
5 bedroom detached house for sale in Hadlow Road, Tonbridge, TN10 — £750,000 • 5 bed • 2 bath • 1549 ft²
4 bedroom detached house for sale in Ashes Lane, Hadlow, Tonbridge, TN11 — £1,800,000 • 4 bed • 3 bath
4 bedroom detached house for sale in Upper Barnhill, Hunton, ME15 — £1,250,000 • 4 bed • 3 bath • 3340 ft²






























































































