**Standout Features:**
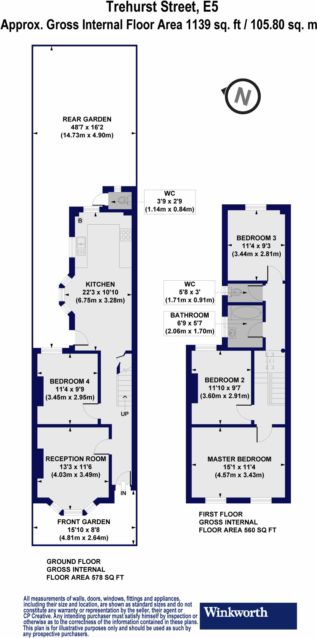
- Four-bedroom mid-terrace period house (1139 sq ft)
- Modern kitchen with integrated appliances and dining area
- Potential for loft and side return expansion (subject to planning)
- Charming private garden
- Excellent mobile signal and fast broadband speeds
- Proximity to local amenities, parks, and transport links
- Good schools nearby with strong Ofsted ratings
**Potential Concerns:**
- Above-average crime rate in the area
- Property requires some insulation improvements (solid brick walls)
- Average living space may benefit from design updates
---
Discover the perfect opportunity to make this four-bedroom period terraced house your new home in the vibrant E5 area. Spanning approximately 1139 sq ft, this charming property features a bright and spacious eat-in kitchen with modern conveniences and a separate living area that invites natural light. The upper floor boasts three generously sized bedrooms, including a master with dual windows, plus a practical family bathroom and guest WC.
Beyond its current charm, this residence offers exciting expansion possibilities for the future, allowing you to enhance your living space further with loft and side return development (subject to planning permission). Enjoy the lush surroundings and community atmosphere, conveniently located near excellent schools rated 'Good' and 'Outstanding,' making it ideal for families. While the above-average crime rate may concern some buyers, the strong local amenities—ranging from health services to eateries—coupled with reliable transport access to the city center, provide a perfect blend of comfort and convenience. Don’t miss out on this unique opportunity—schedule your viewing today!
4 bedroom flat for sale in Glyn Road, London, E5 — £975,000 • 4 bed • 2 bath • 1211 ft²
5 bedroom house for sale in Glyn Road, Homerton, London, E5 — £1,350,000 • 5 bed • 2 bath • 1500 ft²
4 bedroom terraced house for sale in Paragon Road, London E9 — £725,000 • 4 bed • 1 bath • 951 ft²
4 bedroom house for sale in Malpas Road, Hackney, E8 — £750,000 • 4 bed • 1 bath • 1248 ft²
3 bedroom terraced house for sale in Overton Road, London, E10 — £635,000 • 3 bed • 2 bath • 1173 ft²
3 bedroom house for sale in Dunlace Road, London, E5 — £1,200,000 • 3 bed • 1 bath • 1133 ft²


















































