**Standout Features:**
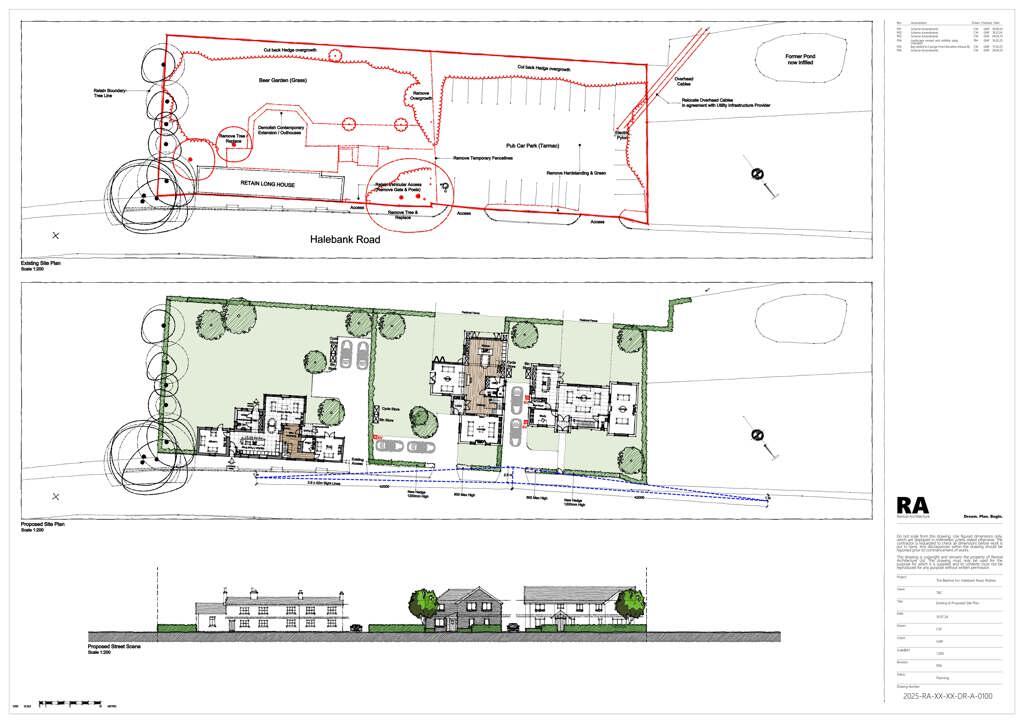
- Large former public house (Beehive Inn) on 0.201 hectares (0.496 acres)
- Planning permission for conversion to a single dwelling and construction of two new detached houses
- Substantial interior space with over 8,500 sq ft available
- Georgian style building, traditional brick construction, and multi-pitch slate roof
- Prominent semi-rural location in the Halebank Conservation Area
**Notable Concerns:**
- High crime rate in the area, requiring potential buyers to consider safety
- Currently neglected and overgrown, indicating a need for significant landscaping and refurbishment
- Broadband speeds are notably slow, which may affect connectivity
**Summary:**
This expansive property, the Beehive Inn, presents an incredible opportunity for developers or investors looking to tap into the growing demand for residential spaces. Nestled in a picturesque semi-rural location in Widnes, Cheshire, the property boasts planning permission that allows for conversion into a spacious single residential dwelling, plus the potential for two additional five-bedroom homes. The existing building combines traditional Georgian architecture with significant size, making it a versatile canvas for renovation.
Set within a conservation area, this land offers beautiful green surroundings and views of the adjoining pond. While the premises require careful restoration and upkeep, the substantial plot and room for expansion open doors for both immediate livability and long-term investment potential. Families will appreciate nearby primary schools rated "Good" by Ofsted and convenient local amenities. Given the favorable planning permissions and the area's overall development potential, this exceptional property should not be overlooked—opportunities like this are rare in the current market!
Detached house for sale in Kingsley Road, Frodsham, Cheshire, WA6 — £350,000 • 1 bed • 1 bath • 2500 ft²
Industrial park for sale in Lower Road, Halebank, Widnes, WA8 8NS, WA8 — POA • 1 bed • 1 bath
Pub for sale in Fiddle I'th Bag, Alder Lane, Burtonwood, Warrington, WA5 4BJ, WA5 — £350,000 • 1 bed • 1 bath
Land for sale in Kingsley Road, Frodsham, Cheshire, WA6 — £350,000 • 1 bed • 1 bath • 2500 ft²
Land for sale in Lunts Heath Road, Widnes, WA8 — £375,000 • 1 bed • 1 bath • 8708 ft²
Land for sale in Lunts Heath Road, Widnes, WA8 — £375,000 • 1 bed • 1 bath • 8708 ft²






























