Move-in ready apartment close to shops, transport and top-rated schools.
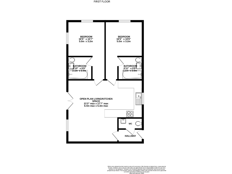
Two double bedrooms, each with an en-suite bathroom
Separate cloakroom for guests or added convenience
Refurbished to a good decorative standard throughout
Allocated off-street parking space; second space available to buy
Share of freehold and no onward chain for a smoother purchase
Service charge approximately £1,280 per year
Local broadband speeds are slow; consider upgrade options
Local recorded crime levels higher than average — check security
This recently refurbished two-bedroom first-floor apartment sits quietly yet centrally in Horsham town centre, ideal for first-time buyers seeking move-in readiness and convenience. The layout provides two double bedrooms, each with its own en-suite, plus a separate cloakroom — a practical arrangement for sharers or couples who want private bathrooms and flexible living space.
The living space is open-plan with a modern fitted kitchen and double glazing, finished to a good decorative standard. The property includes one allocated off-street parking space, with the option to purchase a second, and comes with a share of the freehold and no onward chain, simplifying the purchase process.
Buyers should note a few material points: communal service charges average £1,280 per year and broadband speeds in the area are reported as slow. Local recorded crime levels are higher than average, so consider security measures when viewing. The building dates from c.1996–2002 and is electrically heated via a boiler and radiators, with double glazing installed before 2002.
Overall, this flat offers a practical, modern home in a well-connected town centre location — ready to occupy now, with straightforward ownership and modest running costs, but with some practical compromises around connectivity and local crime to factor into your decision.
1 bedroom flat for sale in Gilligan Close, Horsham, RH12 — £200,000 • 1 bed • 1 bath • 556 ft²
2 bedroom flat for sale in Gilligan Close, Horsham, RH12 — £235,000 • 2 bed • 1 bath • 646 ft²
2 bedroom flat for sale in Scholars Walk, Horsham, RH12 — £320,000 • 2 bed • 2 bath • 725 ft²
2 bedroom apartment for sale in Tanbridge Park, Horsham, RH12 — £300,000 • 2 bed • 2 bath • 625 ft²
2 bedroom flat for sale in Knepp House, Kennedy Road, Horsham, West Sussex, RH13 — £265,000 • 2 bed • 2 bath • 700 ft²
2 bedroom ground floor flat for sale in Flat 4, Barrington Court, Chichester Terrace, Horsham, West Sussex, RH12 — £265,000 • 2 bed • 2 bath • 608 ft²














































































