Secure gated parking, communal garden and immediate occupancy for first-time buyers.
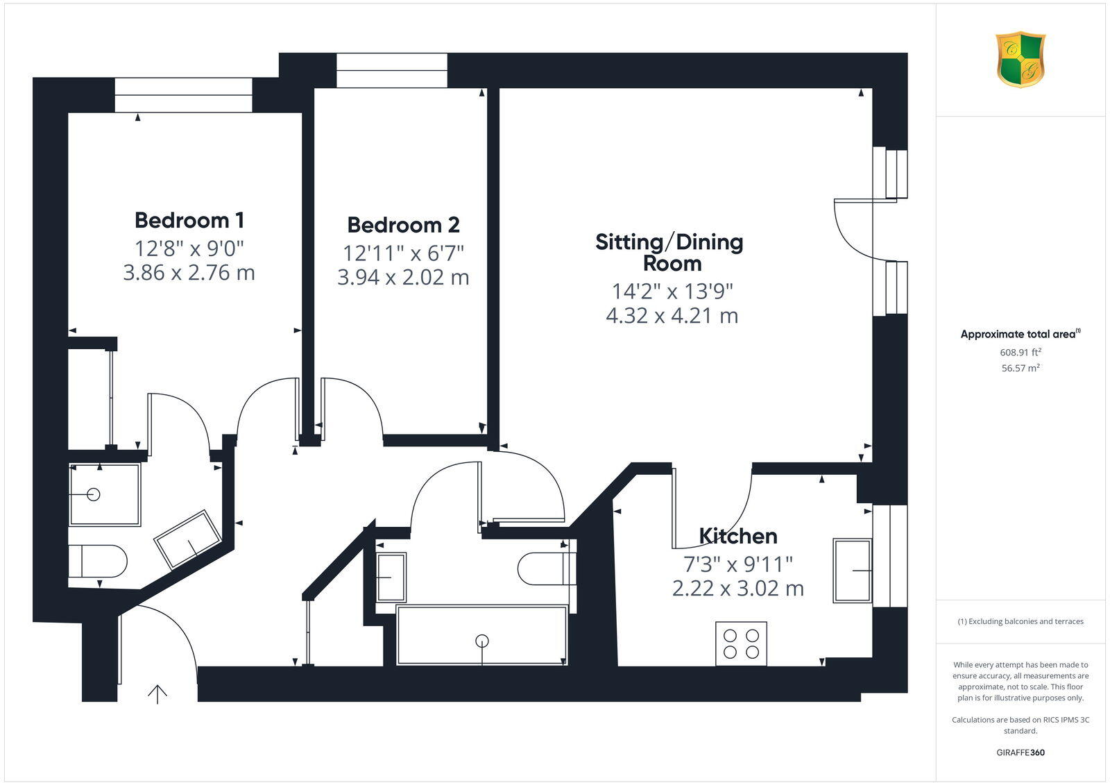
Ground-floor two-bedroom apartment with paved patio
This ground-floor two-bedroom flat sits in a secure, modern development just a few minutes’ walk from Horsham town centre. The apartment offers a bright living/dining room that opens onto a paved patio, a fitted kitchen with built-in appliances, a principal bedroom with ensuite, and a second recently updated shower room. Its compact 608 sq ft layout is well suited to first-time buyers seeking a low-maintenance, move-in-ready home.
Practical benefits include an allocated space in a gated car park, a share of the freehold with 100 years remaining on the lease, gas central heating, and communal gardens with additional locked storage. The property is available with no onward chain and immediate occupation is possible — helpful for buyers looking to move quickly.
Notable costs and considerations are the annual service charge of £2,235 and a council tax band D. The development records a higher-than-average local crime statistic, so prospective purchasers should satisfy themselves on local safety and security measures. The apartment’s overall size is modest, so it will suit buyers comfortable with compact living or those prioritising location and convenience over large internal space.
Overall, this flat represents a practical first purchase or a secure town-centre rental opportunity: immediate availability, secure parking and low-maintenance communal facilities offset by service charges and limited internal footprint.
2 bedroom flat for sale in Blackbridge Lane, Horsham, RH12 — £290,000 • 2 bed • 3 bath • 811 ft²
2 bedroom flat for sale in Mitre Court, Worthing Road, Horsham, West Sussex., RH12 — £350,000 • 2 bed • 2 bath • 828 ft²
2 bedroom ground floor flat for sale in Eastgate Mews, Horsham, RH13 — £270,000 • 2 bed • 2 bath • 874 ft²
1 bedroom apartment for sale in Wimblehurst Road, Horsham, RH12 — £250,000 • 1 bed • 1 bath • 615 ft²
1 bedroom flat for sale in Gilligan Close, Horsham, RH12 — £200,000 • 1 bed • 1 bath • 556 ft²
2 bedroom flat for sale in Knepp House, Kennedy Road, Horsham, West Sussex, RH13 — £265,000 • 2 bed • 2 bath • 700 ft²


















































