Generous plot and south garden minutes from town amenities and coastal walks.
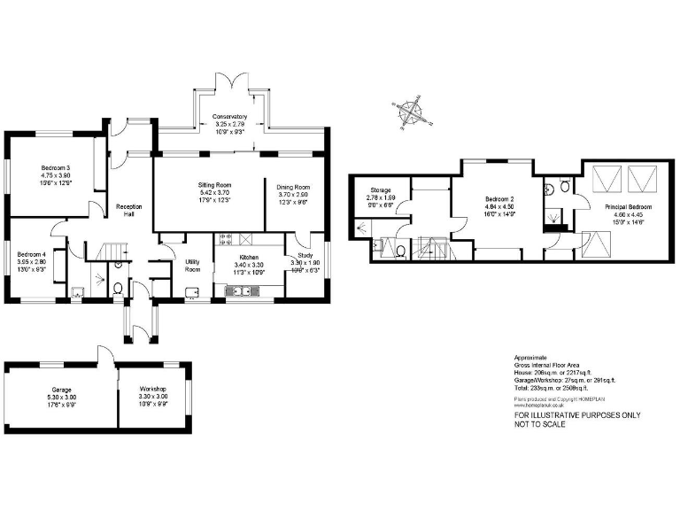
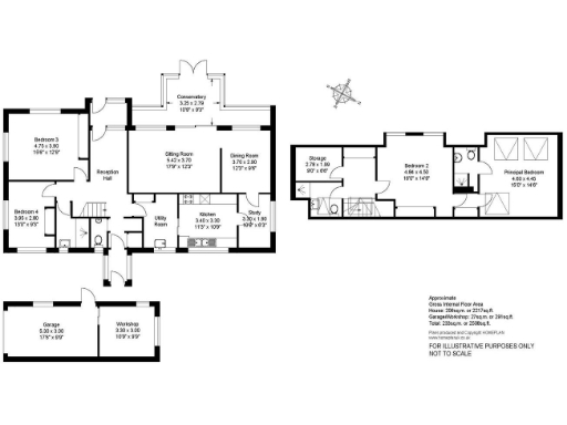
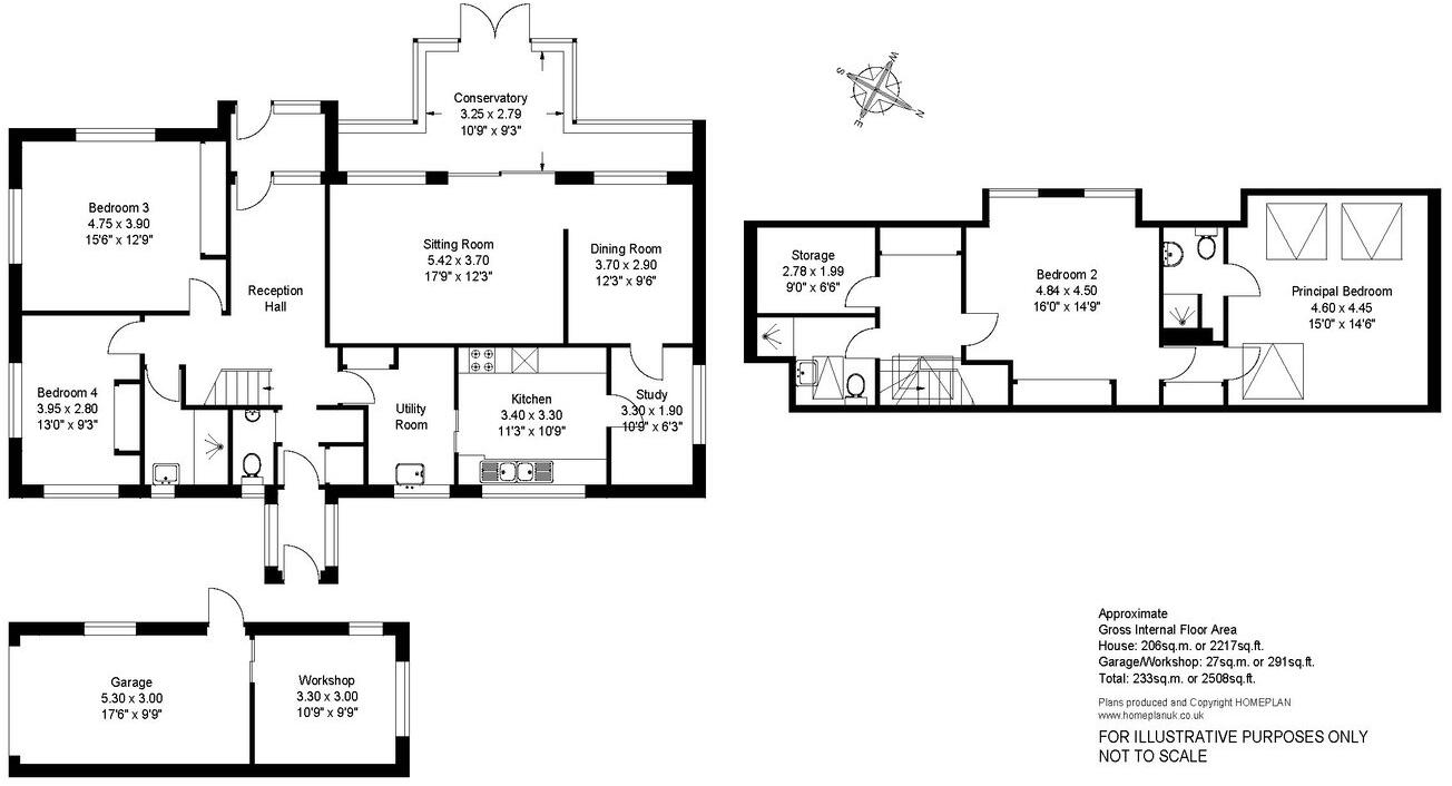
4 bedroom chalet bungalow with roof-level accommodation
Set on a rare, substantial plot just south of Lymington High Street, this four-bedroom chalet bungalow offers an exceptional family layout and a south-facing garden. The house extends to about 2,200 sq ft, with broad reception rooms, a large conservatory and a detached garage with workshop and ample parking. Its private, quiet position at the end of a no-through road places town amenities, Woodside Park and waterfront walks within easy reach.
The property is structurally sound but requires modernisation throughout. It has double glazing and gas central heating, yet walls are likely uninsulated and roof tiles show weathering; the EPC is currently D with scope to improve. The large plot and flexible internal arrangement create clear potential for extension, reconfiguration or comprehensive refurbishment (subject to planning), appealing to buyers seeking space to personalise.
Practical positives include a substantial garage and workshop, good off-street parking and established, private gardens that face south. Schools rated Outstanding and Good are close by, making the home convenient for families. Note practical drawbacks: the home needs renovation, council tax band G is relatively expensive, and local crime statistics are higher than average.
This property suits buyers who value plot size and location over move-in condition: families wanting room to grow, downsizers seeking single-level living with guest/office accommodation upstairs, or investors prepared to refurbish. Viewing will best reveal the balance between generous space and the renovation work required.
4 bedroom bungalow for sale in Renouf Close, Pennington, Lymington, Hampshire, SO41 — £530,000 • 4 bed • 2 bath • 1554 ft²
3 bedroom detached house for sale in Springfield Close, Lymington, Hampshire, SO41 — £825,000 • 3 bed • 2 bath • 1569 ft²
3 bedroom bungalow for sale in Lentune Way, Lymington, Hampshire, SO41 — £750,000 • 3 bed • 1 bath • 1897 ft²
3 bedroom detached house for sale in Shrubbs Avenue, Lymington, SO41 — £695,000 • 3 bed • 2 bath • 1643 ft²
4 bedroom detached house for sale in Bitterne Way, Lymington, Hampshire, SO41 — £775,000 • 4 bed • 1 bath • 1876 ft²
4 bedroom detached house for sale in Lisle Close, Lymington, SO41 — £850,000 • 4 bed • 3 bath • 1602 ft²


























































