Large freehold renovation lot with mixed-use potential for experienced investors.
- Freehold terraced property on Chatsworth Road, prominent high-street location
- Very large total floorspace approx. 3,151 sq ft; approx. 16 rooms
- Planning permission granted 2011 (Ref CHE/11/00679/FUL) — buyer to verify
- Requires full comprehensive refurbishment throughout; currently boarded/derelict
- Medium flood risk; potential drainage and insurance implications
- High local crime and very deprived area — affects lettability/value
- Sold at livestream auction; buyer's premium and admin fees apply
- EPC TBC; Council Tax record deleted from register
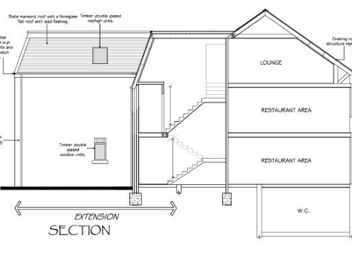
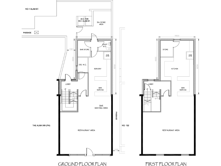
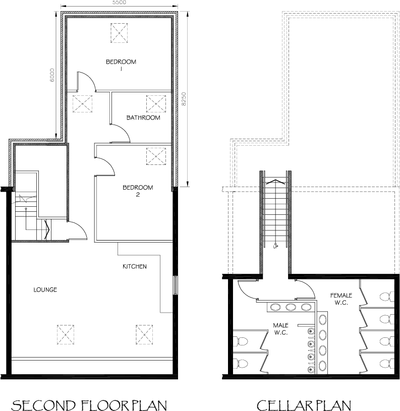
A rare, large terraced property on Chatsworth Road offered as a renovation and development opportunity. The building is currently boarded and requires comprehensive refurbishment throughout, presenting scope for conversion or mixed retail/residential use subject to confirming permissions. The seller believes planning consent granted in 2011 (Ref CHE/11/00679/FUL) remains valid because of a material start, but buyers must verify this with Chesterfield Borough Council and the legal pack.
The site is freehold with an overall footprint and total floorspace reported as extremely large (approx. 3,151 sq ft) and a listed approximate room count of 16, which may suit a small retail-plus-residential scheme or a multi-room lettings model. It will be sold at livestream auction; bidders must pre-register and should allow for additional sale costs including a buyer’s premium and an administration fee payable on exchange.
Important negatives are clear: the property is derelict and requires full renovation, there is a medium flood risk and the local area records high crime and very high deprivation. Council Tax has been deleted from the register and an EPC is to be confirmed. All services, asbestos and structural matters have not been inspected — due diligence, professional surveys and full checks of the legal pack are essential before bidding.
This lot is aimed at experienced investors or developers comfortable with auction purchases, refurbishment budgets and planning/legal risk. If you are prepared to manage remedial works, potential asbestos surveys, service reinstatement and to confirm planning status, the site offers a prominent high-street position with fast broadband and good mobile signal in a busy local retail catchment.
 High street retail property for sale in 11 and 13 Chatsworth Road, Chesterfield S40 2AH, S40 — £135,000 • 1 bed • 1 bath
 High street retail property for sale in 11 and 13 Chatsworth Road, Chesterfield S40 2AH, S40 — £135,000 • 1 bed • 1 bath 3 bedroom terraced house for sale in 31 Rutland Road, Chesterfield, Derbyshire, S40 — £110,000 • 3 bed • 1 bath • 872 ft²
 3 bedroom terraced house for sale in 31 Rutland Road, Chesterfield, Derbyshire, S40 — £110,000 • 3 bed • 1 bath • 872 ft² Industrial development for sale in 46 Duke Street, Staveley, Chesterfield, Chesterfield, Derbyshire S43 3PD, S43 — £150,000 • 1 bed • 1 bath • 4661 ft²
 Industrial development for sale in 46 Duke Street, Staveley, Chesterfield, Chesterfield, Derbyshire S43 3PD, S43 — £150,000 • 1 bed • 1 bath • 4661 ft² Commercial property for sale in 28 Glumangate, Chesterfield, Derbyshire, S40 1TX, S40 — £110,000 • 1 bed • 1 bath • 1442 ft²
 Commercial property for sale in 28 Glumangate, Chesterfield, Derbyshire, S40 1TX, S40 — £110,000 • 1 bed • 1 bath • 1442 ft² 2 bedroom semi-detached house for sale in Hunloke Road, Holmewood, CHESTERFIELD, S42 — £70,000 • 2 bed • 1 bath • 925 ft²
 2 bedroom semi-detached house for sale in Hunloke Road, Holmewood, CHESTERFIELD, S42 — £70,000 • 2 bed • 1 bath • 925 ft² 3 bedroom terraced house for sale in Birdholme Crescent, Birdholme, Chesterfield, S40 2TQ, S40 — £110,000 • 3 bed • 2 bath • 726 ft²
 3 bedroom terraced house for sale in Birdholme Crescent, Birdholme, Chesterfield, S40 2TQ, S40 — £110,000 • 3 bed • 2 bath • 726 ft²






















































