Two rented shops with immediate income and short‑term asset management potential.
Two adjoining high‑street commercial units with first‑floor ancillary space
Current gross income £14,400pa from two short/medium term leases
Café at 13: lease from 01/04/2025 for three years, £7,200pa
11 Chatsworth Road: lease to 30/06/2026, £7,200pa
Located in busy town centre with good passing trade and local amenities
High flood risk and high local crime; buyer to assess insurance implications
External repairs and paintwork required; modest ceiling heights and small rooms
Sold at auction 27/11/2025; 5% deposit and non‑refundable buyer’s fee apply
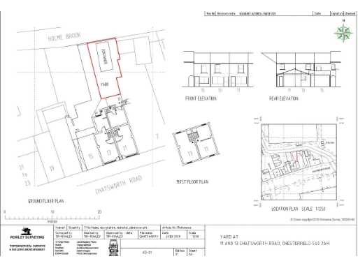
This freehold high‑street investment comprises two adjoining commercial units at 11 and 13 Chatsworth Road, offered with a combined gross income of £14,400 per annum. Both units include first‑floor ancillary space; one is a café (new short lease from April 2025) and the other an office/travel business with a lease running to June 2026. The properties sit in a busy town‑centre location with good passing trade and strong local retail amenity.
The units are mid‑terrace, constructed circa 1900–1929, with double glazing fitted before 2002, mains gas boiler heating and solid brick walls (assumed no cavity insulation). There are visible external maintenance issues (paintwork/repairs) and generally modest internal room sizes and low ceilings. EPC ratings are C and B.
Important risk and cost factors for buyers: the site is in a high flood‑risk and high‑crime area within a very deprived locality, and sits on a small plot. The sale is by unconditional auction (27 November 2025) with a 5% deposit and a buyer’s fee (3.6% subject to minimum). Prospective purchasers should review the legal pack and carry out independent inspections before bidding.
For investors this offers immediate rental income and short‑term asset management opportunities — refurbishment, lease renewals or re‑letting could add value. For occupiers or owner‑operators, the properties provide a town‑centre trading position but require allowance for repair, flood mitigation and the local market challenges.
Commercial property for sale in 28 Glumangate, Chesterfield, Derbyshire, S40 1TX, S40 — £110,000 • 1 bed • 1 bath • 1442 ft²
High street retail property for sale in 8 Packers Row, Chesterfield, Derbyshire, S40 1RB, S40 — £80,000 • 1 bed • 1 bath • 970 ft²
Commercial property for sale in Ground Floor, 22 Cavendish Street, Chesterfield, Derbyshire, S40 1UY, S40 — £95,000 • 1 bed • 1 bath
Commercial property for sale in 7 & 7C Crown Square, Matlock, Derbyshire DE4 3AT, DE4 — £195,000 • 1 bed • 1 bath • 2300 ft²
4 bedroom mixed use property for sale in 20a & 18 King Street, Alfreton DE55 7AG, DE55 — £145,000 • 4 bed • 1 bath • 790 ft²
High street retail property for sale in St. Marys Gate, Chesterfield, Derbyshire, S41 — £425,000 • 1 bed • 1 bath • 1800 ft²


















