Compact, characterful home with renovation upside close to local amenities.
Chain free one-bedroom terraced cottage
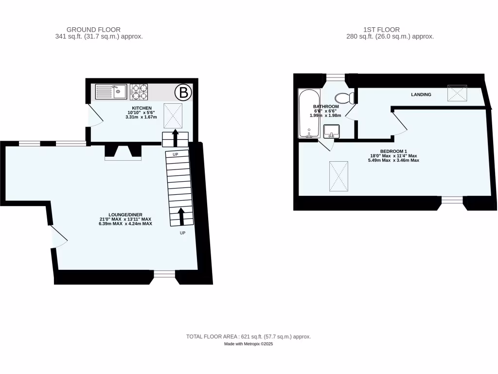
A compact Grade II listed terrace in Plympton, offered chain-free and ready for light modernisation. The property’s period character — leaded casement window, exposed render and slate roof — gives it cottage charm, while gas central heating and a private rear garden add everyday practicality. The house is modest in footprint and suits a single occupant, couple or buy-to-let buyer seeking a low-maintenance, centrally placed home.
Listed status will limit permitted alterations and may complicate conversions; any attic or second‑bed plans need listed‑building consent. Internally the layout is compact with low ceilings in places and likely benefits from updating to maximise comfort and value. The existing attic conversion provides extra space but has restricted headroom.
Practical positives include low flood risk, very small plot requiring little upkeep, cheap council tax, excellent mobile signal and fast broadband. Local schools and amenities are within easy reach and the area is generally affluent, making this a sensible long-term purchase or rental prospect for someone prepared to work within listing constraints.
3 bedroom terraced house for sale in Fore Street, Plympton, Plymouth, Devon, PL7 — £230,000 • 3 bed • 1 bath • 1024 ft²
1 bedroom terraced house for sale in Merafield Road, Plymouth, Devon, PL7 — £150,000 • 1 bed • 1 bath • 635 ft²
1 bedroom end of terrace house for sale in Horn Lane, Plymouth, Devon, PL9 — £200,000 • 1 bed • 1 bath • 390 ft²
1 bedroom end of terrace house for sale in Corner Brake, Plymouth, Devon, PL6 — £140,000 • 1 bed • 1 bath • 528 ft²
1 bedroom semi-detached house for sale in Church Street, Modbury, PL21 — £210,000 • 1 bed • 1 bath • 604 ft²
2 bedroom terraced house for sale in Underwood Road, Plympton, Plymouth, PL7 — £170,000 • 2 bed • 1 bath • 602 ft²


























































