**Standout Features:**
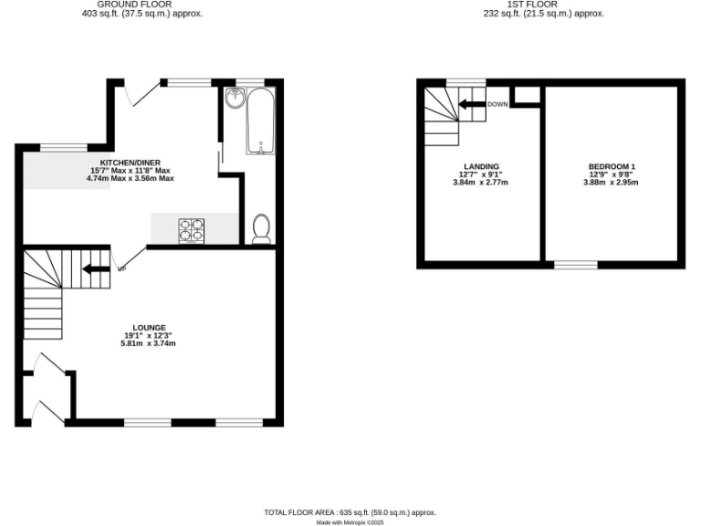
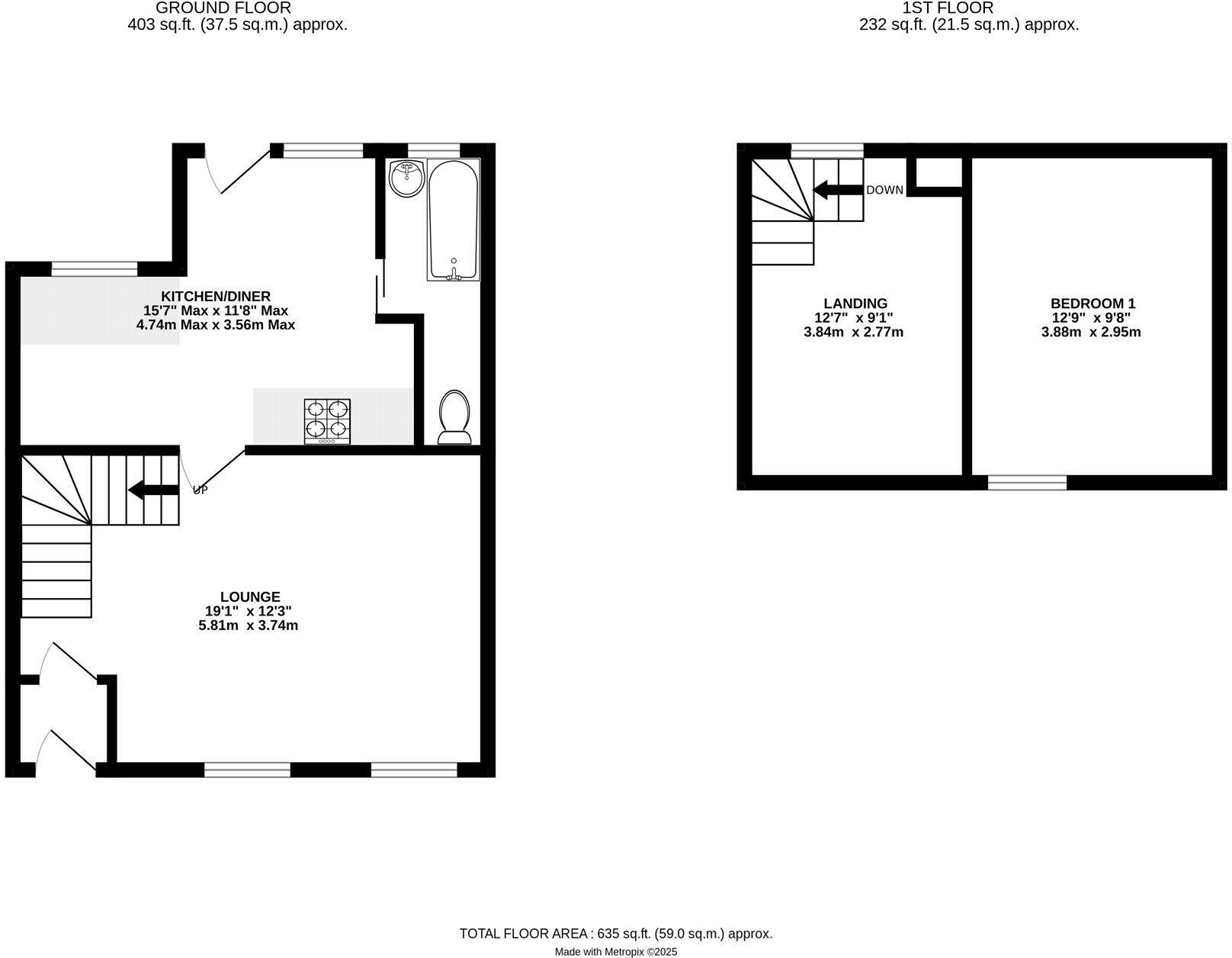
- 1-bedroom mid-terrace cottage
- Spacious living room and dressing area
- Generous garden ideal for outdoor activities
- Convenient location with fast broadband and excellent mobile signal
- Chain free and affordable at £150,000
- Low crime rate and good local schools nearby
**Concerns:**
- Requires renovation and modern updates
- Some areas, like the kitchen, lack natural light
- Lower ceiling heights in parts may limit appeal
This charming one-bedroom mid-terrace cottage on Merafield Road, Plymouth, invites you to unleash its full potential. Offering a generous garden and a quaint façade with a welcoming red door, this property is perfect for first-time buyers, down-sizers, or investors looking to tap into the local market. The spacious living room with exposed beams adds rustic charm, while the kitchen, although functional, presents an opportunity for modern updates.
Nestled in an affluent neighborhood known for its low crime rate and excellent education options, this home promises security and community for families. Although the property does require renovation, its chain-free status makes for a straightforward purchase process. With solid rental potential and a great garden for outdoor leisure or cultivation, this is a rare gem in an enviable location. Don’t miss out on making this cozy cottage your own. Viewing is essential; properties of this character and affordability don’t last long!



































































