Family home with large garden and double driveway close to top primary schools.
Detached four-bedroom house with conservatory and garage
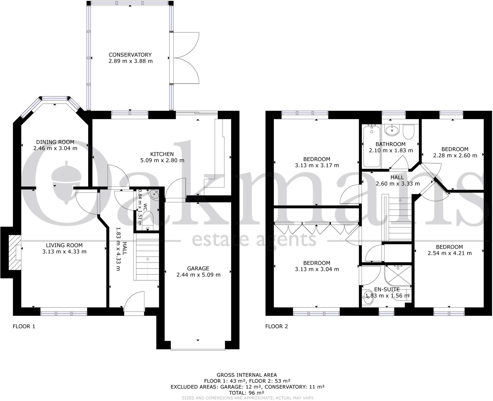
Set back on a private double driveway, this modern four-bedroom detached house offers practical family living across approximately 1,032 sq ft. The ground floor flows from lounge to dining room, with a bright kitchen opening into a conservatory that leads onto a large, tiered rear garden — ideal for children and outdoor entertaining. A garage with internal access adds convenience for storage or parking.
Upstairs are four bedrooms, three of which are doubles, and a master bedroom with an en-suite shower. The home benefits from double glazing, mains gas central heating and recent-build construction (c.1996–2002), giving a straightforward, low-maintenance finish. Local schools include Good and Outstanding-rated primaries and nearby secondary options, making the location suitable for school-age families.
Be aware of practical considerations: the property sits in an area recorded as deprived with a higher local crime rate, and tenure details are not provided. Buyers should factor these points into budgeting and insurance decisions. Viewings are recommended to assess the layout and garden levels in person and to confirm any outstanding maintenance needs.
4 bedroom detached house for sale in Morrey Close, Wythall, B47 6AQ, B47 — £440,000 • 4 bed • 2 bath • 1031 ft²
4 bedroom detached house for sale in St. Peters Close, BIRMINGHAM, West Midlands, B28 — £465,000 • 4 bed • 2 bath • 1216 ft²
4 bedroom detached house for sale in Harrington Croft, West Bromwich, B71 — £460,000 • 4 bed • 2 bath
4 bedroom detached house for sale in Braces Lane, Marlbrook, Bromsgrove, Worcestershire, B60 — £550,000 • 4 bed • 3 bath • 1388 ft²
4 bedroom detached house for sale in Tucked away in a peaceful cul-de-sac, Glaslyn Avenue, Rowley Regis, B65 8EG, B65 — £417,000 • 4 bed • 2 bath • 1666 ft²
4 bedroom detached house for sale in Ash Bridge Court, Rednal, Birmingham, West Midlands, B45 — £500,000 • 4 bed • 2 bath • 1378 ft²














































































































































