ST14 5DS - 3 bed edwena three bedroom home in Burton, ST14 5DS

View on Property Piper

3 bedroom detached house for sale in New Road Uttoxeter ST14 5DS, ST14

Summary - New Road Uttoxeter ST14 5DS ST14 5DS

3 bed 1 bath Detached

Contemporary new-build family home with large plot and energy-efficient features..
Showhome open at Bramshall Meadows
Energy-efficient with PV solar panels installed
Open-plan kitchen/diner/living with French doors
Separate living room offers quieter space
Master bedroom with built-in wardrobes and en-suite
Garage parking and large rear plot for garden potential
One family bathroom (master includes en-suite)
5% deposit contribution available on advertised plots
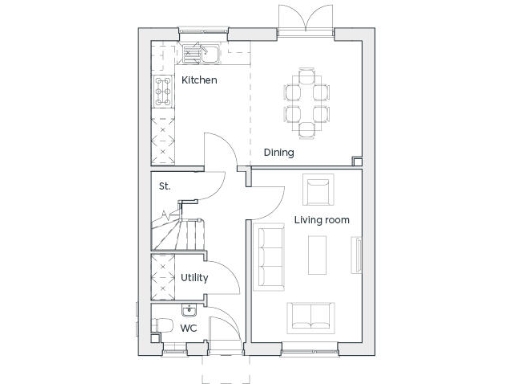
Brand-new three-bedroom detached home at Bramshall Meadows, designed for family life and flexible living. The Edwena offers an open-plan kitchen/dining/living space with French doors to the rear garden, plus a separate living room for quieter evenings. The master bedroom includes built-in wardrobes and an en-suite for added privacy.

The house is energy-efficient with PV solar panels and modern fittings throughout, supported by fast broadband and excellent mobile signal — practical for working from home and family connectivity. A utility cupboard off the hallway and a garage add useful storage and parking.

Plot size is notably large compared with the house, creating scope for gardening, play space or future landscaping. The developer offers a 5% deposit contribution on advertised plots (terms apply) and some floorplan flexibility subject to build stage.

Important to note: the internal finished size is described as average for the type, and there is one main family bathroom (the master benefits from an en-suite). Buyers should check plot-specific specifications and any options at reservation; this is a new build so snagging checks and build-stage lead times apply.

Property Details

Brochure Descriptions

Image Descriptions

Floorplan Description

Rooms

Textual Property Features

Target Audience

AI Tags

Detected Visual Features

Nearby Schools

Nearest Bars And Restaurants

,,,,}

Nearest General Shops

,,}

Nearest Grocery shops

,,}

Nearest Supermarkets

,,}

Nearest Religious buildings

,,}

Nearest Medical buildings

,,,}

Nearest Leisure Facilities

,,,,}

Nearest Tourist attractions

,,}

Nearest Train stations

,,,,}

Nearest Bus stations and stops

,,,,}

Nearest Hotels

,,}

Tags

Local Market Stats

Similar Properties

Meta

High Res Images

Compatible Images

Low res Images

Thumbnails

Raw Images

High Res Floorplan Images

Compatible Floorplan Images

Low res Floorplan Images

FloorplanImages Thumbnail

Raw Floorplan Images