ST14 5DS - 3 bedroom semidetached house for sale in New Road Uttoxeter…

View on Property Piper

3 bedroom semi-detached house for sale in New Road Uttoxeter ST14 5DS, ST14

Summary - New Road Uttoxeter ST14 5DS ST14 5DS

3 bed 1 bath Semi-Detached

Modern three-bedroom semi with en-suite, utility and two parking spaces — showhome open.
Open-plan kitchen/diner with full-height glazed patio doors
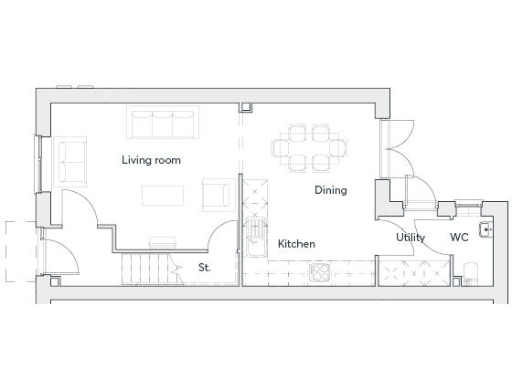
Light-filled three-bedroom Houghton on a new Bramshall Meadows development, presented as a modern, practical family home. The open-plan kitchen/diner with full-height glazed doors brings the garden into daily living, while a separate utility and downstairs cloakroom add useful functionality for busy households. The master bedroom benefits from a fitted wardrobe and private en-suite, leaving two further bedrooms for children, guests or a home office.

Built to a contemporary specification with integrated appliances, modern fittings and practical flooring, this semi-detached freehold offers low-maintenance, turn-key living. Two allocated off-street parking spaces and excellent mobile and broadband connectivity suit commuters and families alike. The site sits in a very affluent, low-crime area with no flood risk.

The house is compact overall (approx. 673 sq ft) — a medium-sized family home rather than a spacious detached property. The rear garden is small-to-average for a new estate plot, and internal room sizes are modest. Buyers seeking larger rooms, extensive outdoor space or a rural plot should note the limited footprint. New-build warranties and a current developer incentive (mortgage contribution offers available on advertised plots) may be available; confirm terms with the developer.

Property Details

Brochure Descriptions

Image Descriptions

Floorplan Description

Rooms

Textual Property Features

Target Audience

AI Tags

Detected Visual Features

Nearby Schools

Nearest Bars And Restaurants

,,,,}

Nearest General Shops

,,}

Nearest Grocery shops

,,}

Nearest Supermarkets

,,}

Nearest Religious buildings

,,}

Nearest Medical buildings

,,,}

Nearest Leisure Facilities

,,,,}

Nearest Tourist attractions

,,}

Nearest Train stations

,,,,}

Nearest Bus stations and stops

,,,,}

Nearest Hotels

,,}

Tags

Local Market Stats

Similar Properties

Meta

High Res Images

Compatible Images

Low res Images

Thumbnails

Raw Images

High Res Floorplan Images

Compatible Floorplan Images

Low res Floorplan Images

FloorplanImages Thumbnail

Raw Floorplan Images