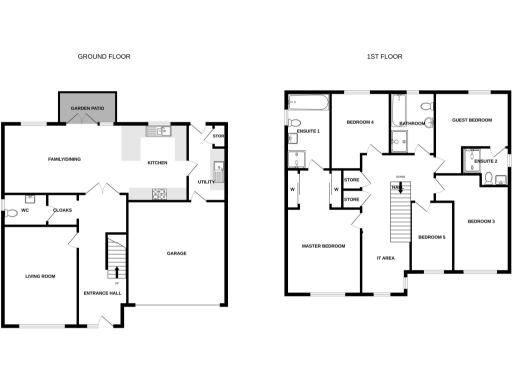
**Standout Features:**
- Newly built detached family home completed in 2023
- Spacious layout with 5 bedrooms and 4 bathrooms, including 2 en suites
- Generous living areas designed for natural light and modern comfort
- Stylish, fully equipped kitchen with premium appliances
- Large garden, double garage, and driveway for ample parking
- Energy-efficient design with an EPC rating of A
- Located in a popular residential estate
Discover a remarkable newly built family home that captures a blend of contemporary design and functional elegance. The Roslin boasts five spacious bedrooms, including a luxurious master suite with a walk-through wardrobe and a lavish en suite bathroom. The heart of the home is an expansive open-plan kitchen and dining area that flows seamlessly into the garden, perfect for both entertaining and family living.
While the property offers an impressive modern aesthetic and exceptional features, its location in a more remote community may appeal to those seeking quieter surroundings with potential for outdoor exploration. This home is chain-free and offers immediate occupancy, making it ideal for families looking to settle down quickly. With excellent mobile connectivity and fast broadband, it suits the needs of both remote professionals and busy families alike.
Don’t miss the opportunity to own a stunning, energy-efficient property that promises comfort and style for years to come. Experience the modern lifestyle within a tranquil setting—schedule a viewing today!
5 bedroom detached house for sale in Greenlaw Road Chapelton,, AB39 — £800,000 • 5 bed • 3 bath • 6728 ft²
4 bedroom detached house for sale in Aberdeen,
AB15 — £489,995 • 4 bed • 1 bath • 1394 ft²
4 bedroom detached house for sale in Charleston Cove,
Cove Bay,
Cove,
AB12 3ZL, AB12 — £409,995 • 4 bed • 4 bath
5 bedroom detached house for sale in Braeriach, Nether Burnhaugh, Netherley, Stonehaven, Aberdeenshire, AB39 — £725,000 • 5 bed • 5 bath • 4673 ft²
4 bedroom detached house for sale in Riverview Drive,
Dyce,
Aberdeen,
Aberdeen City,
AB21 7LD, AB21 — £399,995 • 4 bed • 1 bath • 1248 ft²
4 bedroom detached house for sale in Cuthbertson Walk
Bucksburn
Aberdeen
AB21 9HG, AB21 — £369,995 • 4 bed • 1 bath • 1154 ft²










































































































































































