Three-bedroom coastal cottage with garden and parking near village amenities.
Sea views and short walk to Mullion Cove
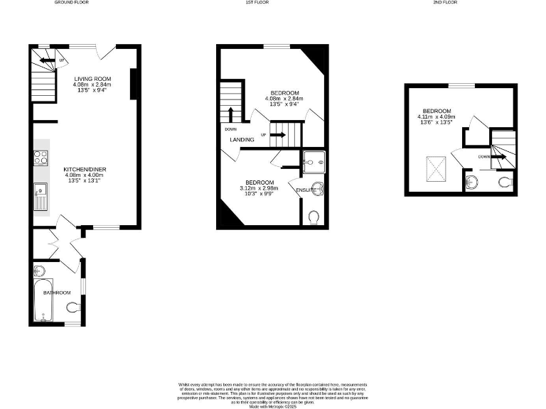
Set just moments from Mullion Cove, this three-bedroom, three-storey terrace makes the most of dramatic coastal location and sea views. The ground floor’s open-plan living, dining and kitchen creates a sociable family hub with easy access to the enclosed rear garden and off-street parking for two vehicles.
The property offers useful bedroom space across the upper floors, including an ensuite and separate top-floor WC, plus built-in storage and a sunny south-facing garden with mature shrubs for privacy. Its compact footprint and proximity to the South West Coast Path will particularly suit buyers who value coastal lifestyle and village facilities close by.
Buyers should note this is an older granite-built cottage with electric room heaters, likely uninsulated stone walls and a poor EPC rating (F, 26). Drainage is private and there are pedestrian rights of way across the bottom of the garden; the lane provides vehicular access. These practical issues mean the house will benefit from energy and heating upgrades and some modernisation to improve comfort and running costs.
Offered with no onward chain and freehold tenure, the cottage presents both immediate seaside living and longer-term improvement potential. It is well suited to a family seeking a coastal base, or to buyers prepared to invest in insulation, heating and energy improvements to unlock full value.
3 bedroom terraced house for sale in Cottage with Sea Views, Mullion Cove, TR12 — £315,000 • 3 bed • 2 bath • 672 ft²
2 bedroom detached house for sale in Churchtown, HELSTON, Cornwall, TR12 — £295,000 • 2 bed • 1 bath • 591 ft²
2 bedroom end of terrace house for sale in Clifden Close, Mullion, Helston, TR12 — £230,000 • 2 bed • 1 bath • 689 ft²
3 bedroom character property for sale in Gorgeous three bedroom cottage, Mullion, TR12 — £367,500 • 3 bed • 2 bath • 2283 ft²
3 bedroom semi-detached house for sale in Mullion Cove, Mullion, South Cornwall, TR12 — £650,000 • 3 bed • 3 bath • 1114 ft²
3 bedroom terraced house for sale in Henrys Croft, The Lizard, TR12 — £275,000 • 3 bed • 1 bath • 904 ft²


























































































































