Ideal starter home with garage, private garden and fast links to town.
Freehold two-bedroom terraced house, split-level layout
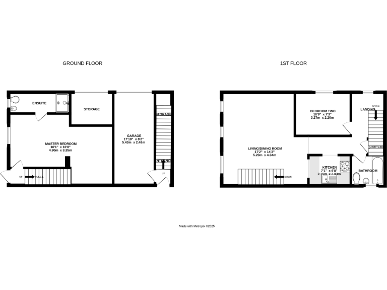
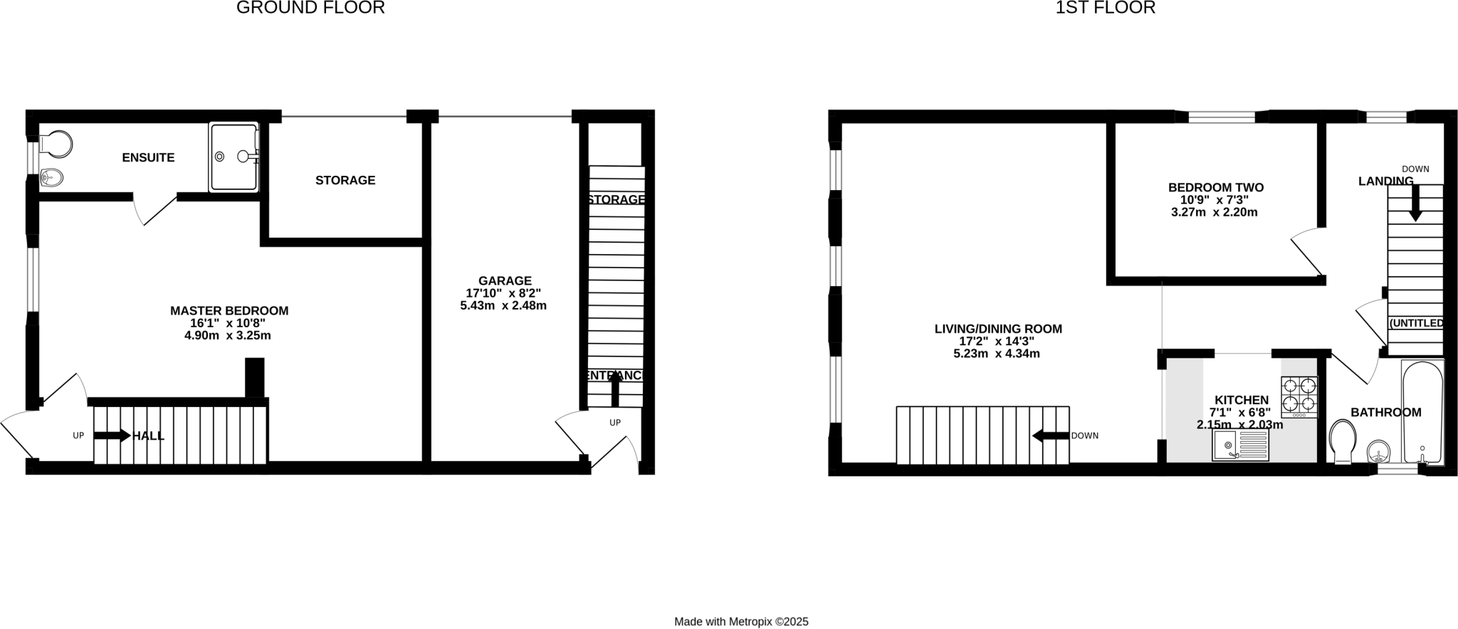
A compact, well-presented two-bedroom freehold home arranged over split levels, suited to first-time buyers or buy-to-let investors. The layout places principal living on the first floor, giving a light, open living/dining area and a modern kitchen, while the ground floor benefits from a sizable master with en suite and internal storage.
Practical features include a garage-and-a-half with additional off-road parking, loft storage and an electric car charging point — useful for commuters. The property is double-glazed, gas-heated via a boiler and radiators, and sits in a quiet, low-crime neighbourhood close to good primary and secondary schools and Bracknell town centre.
Rooms and garden are modest in size, so the house is best for a small family, couple or single buyer seeking an affordable step onto the ladder. Presentation is generally good but there is scope for modest cosmetic updating to personalise finishes and maximise resale or rental value.
Freehold tenure, an average overall footprint of about 840 sq ft and nearby amenities make this a practical, low-maintenance option. Fast broadband, excellent mobile signal and a very affluent area profile add to everyday convenience and long-term appeal.
2 bedroom terraced house for sale in Frobisher, Bracknell, Berkshire, RG12 — £365,000 • 2 bed • 1 bath • 716 ft²
2 bedroom terraced house for sale in Durley Mead, Bracknell, Berkshire, RG12 — £325,000 • 2 bed • 1 bath • 625 ft²
2 bedroom terraced house for sale in Townsend Close, Forest Park, Bracknell, Berkshire, RG12 — £325,000 • 2 bed • 1 bath • 579 ft²
2 bedroom terraced house for sale in Crofton Close, Bracknell, RG12 — £325,000 • 2 bed • 1 bath • 517 ft²
1 bedroom end of terrace house for sale in Axbridge, Bracknell, Berkshire, RG12 — £240,000 • 1 bed • 1 bath • 439 ft²
2 bedroom terraced house for sale in High Beech, Bracknell, Berkshire, RG12 — £315,000 • 2 bed • 1 bath • 615 ft²


















































