Prominent high-street position with planning for deli plus residential conversion.
- Grade II-listed Georgian corner commercial property with prominent frontage
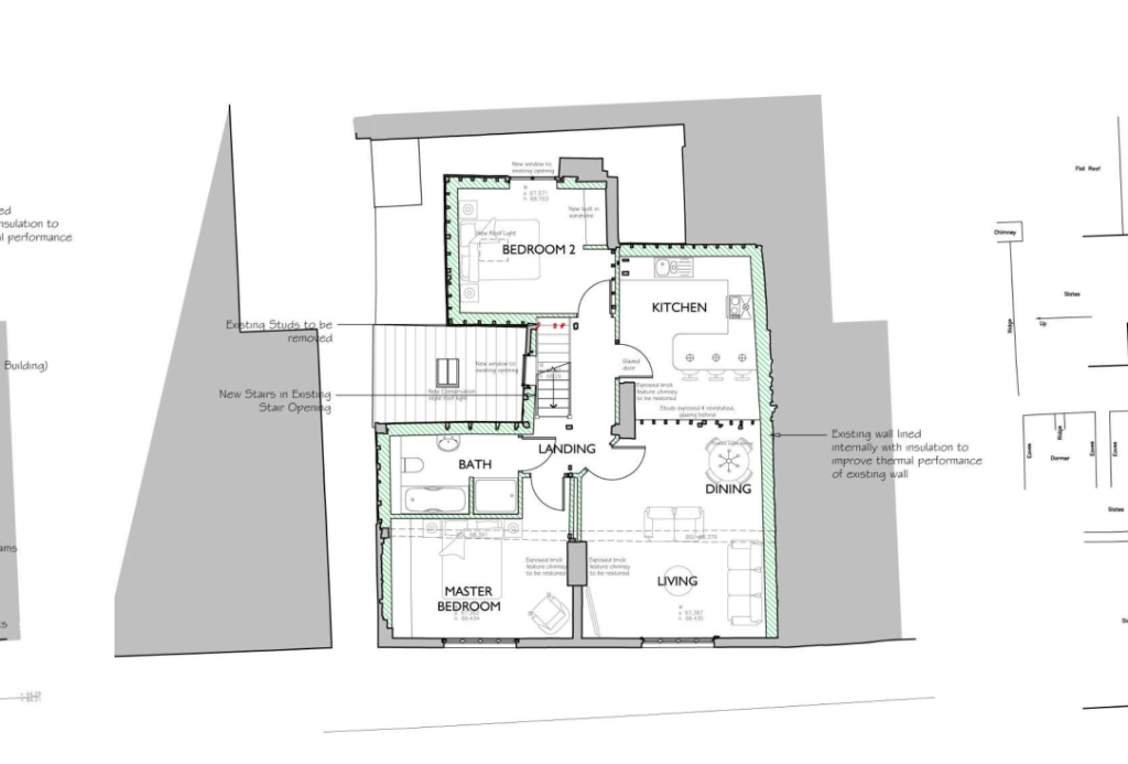
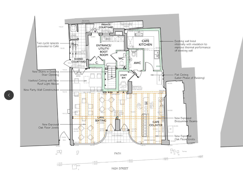
- Planning granted for café/deli (Use Class E(b)) and two-bed flat (C3)
- Freehold with large overall internal area (1,337 sq ft)
- Currently stripped out and requires full renovation and conservation works
- Option to divide into two separate retail premises for dual income
- Small plot; limited external alteration potential due to listing
- No flood risk; excellent mobile signal, average broadband speeds
A rare double-fronted, Georgian high-street premises in Ingatestone with strong frontage and exceptional visibility to passing trade. The building is Grade II listed, retaining curved-glass display windows and period character—ideal for a boutique deli, café or specialist retailer.
Planning permission is in place for ground-floor use as a café/deli (Use Class E(b)) with first-floor conversion to a two-bedroom residential flat (Use Class C3). The freehold layout and large overall size create immediate options: operate as a combined business, create a mixed retail/residential income stream, or subdivide into two retail units.
The property is stripped out and needs renovation, so buyers should budget for conservation-led works and adhere to listed-building constraints. The small plot and listed status will limit structural alterations, but thoughtful refurbishment can unlock strong rental or owner-occupier returns in this very affluent conservation centre.
Practical positives include no flood risk, excellent mobile signal and average broadband. Nearby amenities, good-rated local schools and steady town-centre footfall support both retail and residential demand. This is a compelling opportunity for an investor or experienced owner-operator comfortable with heritage renovation and planning compliance.
Commercial property for sale in High Street, Ingatestone, CM4 — £500,000 • 3 bed • 1 bath • 3361 ft²
2 bedroom terraced house for sale in Bakers Lane, Ingatestone, CM4 — £475,000 • 2 bed • 1 bath • 950 ft²
2 bedroom semi-detached house for sale in Main Road, Margaretting, Ingatestone, Essex, CM4 — £600,000 • 2 bed • 1 bath • 1175 ft²
Commercial property for sale in 60 Newland Street, CM8 — £340,000 • 1 bed • 1 bath • 1576 ft²
2 bedroom semi-detached house for sale in Market Place, Ingatestone CM4 — £725,000 • 2 bed • 1 bath • 1164 ft²
Restaurant for sale in Library Bar, High Street, Ingatestone, CM4 — £39,995 • 1 bed • 1 bath • 1241 ft²


























