Move-in ready flat with garden and approved loft conversion opportunity.
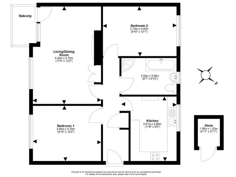
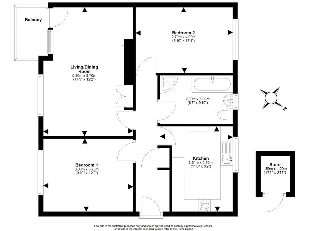
- Newly renovated and ready to move into
- Two double bedrooms plus modern bathroom
- Loft conversion plans with building warrant in place
- Private enclosed rear garden with shed and patio
- Balcony off living room overlooking the garden
- Small overall size — approx 561 sq ft
- On-street parking only; no garage
- Located in an area with high deprivation indicators
Bright, newly renovated two-bedroom upper flat in Clermiston, ready to move into. Rooms are well presented with a light living room that opens onto a balcony overlooking the private rear garden. The kitchen and bathroom are modern and practical, and gas central heating plus double glazing improve comfort and running costs. Council tax is low.
A practical upside is the existing loft plans and building warrant to convert the attic into a master bedroom with en-suite — a clear way to add space and long-term value. The property includes a private enclosed garden and a garden shed, useful for outdoor living and storage. Broadband speeds are fast and mobile signal is excellent.
Be aware this is a small flat (approx 561 sq ft) in a mid‑20th century terraced building; space is compact compared with larger family homes. Parking is on-street only and there is no garage. The wider area is described as having hampered aspiration and local deprivation indicators are high, which may affect resale dynamics and local services.
Overall this flat suits a first-time buyer or someone seeking a manageable home with immediate move-in condition and clear potential to extend via the permitted loft conversion. It offers a balance of low running costs, outdoor space and commuter-friendly location, with an honest view of size and neighbourhood considerations.
2 bedroom flat for sale in 28/3 Ransome Gardens, Clermiston, Edinburgh, EH4 7EU, EH4 — £163,000 • 2 bed • 1 bath • 721 ft²
2 bedroom flat for sale in 6/4 Glenure Loan, Edinburgh, EH4 7LW, EH4 — £120,000 • 2 bed • 1 bath • 764 ft²
2 bedroom flat for sale in 1/8 Glenure Loan, Clermiston, Edinburgh, EH4 7LP, EH4 — £150,000 • 2 bed • 1 bath • 488 ft²
2 bedroom flat for sale in 2/4 Glenure Loan, Edinburgh, EH4 7LW, EH4 — £145,000 • 2 bed • 1 bath • 636 ft²
3 bedroom flat for sale in 60/4 Alan Breck Gardens, Edinburgh, EH4 7HY, EH4 — £165,000 • 3 bed • 1 bath • 708 ft²
2 bedroom flat for sale in 23/2 Saughton Grove, Edinburgh, EH12 5SN, EH12 — £180,000 • 2 bed • 1 bath • 543 ft²






















































































