Affordable one-bedroom needing renovation near Jubilee Line, ideal for budget-conscious buyers.
Share of freehold — no service charge surprises
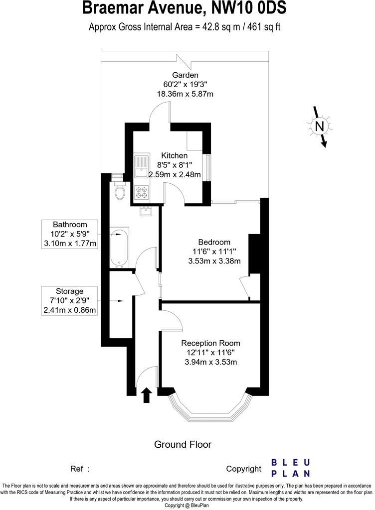
A ground-floor one-bedroom maisonette with its own rear garden and share of freehold, offered with no upper chain. The accommodation sits in a 1930s bay-fronted terrace and provides a compact living room, separate kitchen, bedroom and bathroom across approximately 461 sq ft. Its proximity to Neasden Underground (Jubilee Line, about 0.8 miles) makes commuting straightforward.
The property is sold in need of full refurbishment: the kitchen and internal finishes are dated and will require updating, and the flat offers strong potential to add value after renovation. Broadband speeds are fast and mobile signal is excellent, which suits modern working lifestyles. The garden and period exterior give scope to create a comfortable outdoor area and improve kerb appeal.
Be transparent about the downsides: the area is classified as deprived and crime is average. Flooding risk is medium in this location. The layout is modest and room sizes are typical for a small London maisonette, so buyers should expect limited space and budget for renovation costs. Overall this is a straightforward purchase for a first-time buyer or investor prepared to refurbish to modern standards.
This is a practical, affordable entry into NW10 with immediate scope for improvement and rental or resale upside. Buyers should factor refurbishment, medium flood risk and local area characteristics into their plans and budgets.
1 bedroom maisonette for sale in Northview Crescent, London, NW10 — £250,000 • 1 bed • 1 bath • 453 ft²
1 bedroom flat for sale in Northview Crescent, London, NW10 — £250,000 • 1 bed • 1 bath • 570 ft²
1 bedroom apartment for sale in Braemar Avenue, Neasden, London, NW10 — £275,000 • 1 bed • 1 bath • 439 ft²
1 bedroom ground floor flat for sale in St. Andrews Road, Kingsbury, London, NW9 — £335,000 • 1 bed • 1 bath • 616 ft²
2 bedroom ground floor maisonette for sale in Lovat Close, London, NW2 — £425,000 • 2 bed • 1 bath • 610 ft²
2 bedroom maisonette for sale in Neasden Lane North, London, NW10 — £325,000 • 2 bed • 1 bath • 653 ft²






































