Compact two-bed home with huge garden and strong transport links.
Rare 120ft rear garden adds major outdoor value
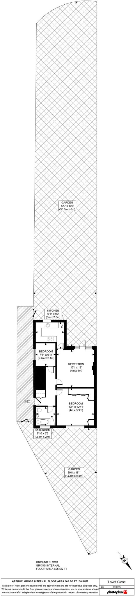
This ground-floor 1930s maisonette offers an unusually long 120ft rear garden and private street entrance — a rare outdoor asset for a property of this size. The layout comprises two bedrooms, a rear reception, fitted kitchen and bathroom within c.610 sq ft (57 sq m), suitable for a small family or investor seeking rental potential. Practical features include gas central heating, double glazing and off-street parking for at least one vehicle.
The home sits in a cul-de-sac close to local shops, bus services and a 12–15 minute walk to Neasden (Jubilee Line), making it well connected for commuting. The plot’s depth creates clear scope for rear extensions (subject to planning) or garden-led improvements to add living space and long-term value. Chain-free sale simplifies purchase timing.
Important considerations are factual and should guide viewings: the internal footprint is modest, the flat is leasehold with approximately 88 years remaining, and the area records higher crime and deprivation levels. The property appears to need some updating and potential modernisation, so buyers should allow budget for refurbishment and confirm service conditions and permissions before work.
Overall this maisonette will suit buyers prioritising outdoor space and transport links over internal square footage — particularly small families who want a garden or investors seeking a let with extension potential. Inspect to confirm condition, lease details and any planning prospects before committing.
3 bedroom ground floor maisonette for sale in Lovat Close, London, NW2 — £499,950 • 3 bed • 1 bath • 773 ft²
2 bedroom ground floor maisonette for sale in Tanfield Avenue, London, NW2 — £415,000 • 2 bed • 1 bath • 770 ft²
2 bedroom ground floor maisonette for sale in Ardley Close, London, NW10 — £339,950 • 2 bed • 1 bath • 689 ft²
2 bedroom maisonette for sale in Tanfield Avenue, London, NW2 — £375,000 • 2 bed • 1 bath • 671 ft²
1 bedroom ground floor flat for sale in St. Andrews Road, Kingsbury, London, NW9 — £335,000 • 1 bed • 1 bath • 616 ft²
1 bedroom flat for sale in Northview Crescent, London, NW10 — £250,000 • 1 bed • 1 bath • 570 ft²


























































