Ready family home with approved extension and off-street parking, close to good schools..
Approved first-floor rear extension adding a fourth bedroom
Potential loft conversion to create fifth bedroom (subject to permission)
Open-plan modern kitchen/reception with skylight and island counter
Wide block-paved driveway providing off-street parking
Single family bathroom only; may be tight for larger households
Rear garden small-to-average; outhouse included
Double glazing present — install date unknown, may need checking
Freehold, mains gas heating, fast broadband, very low local crime
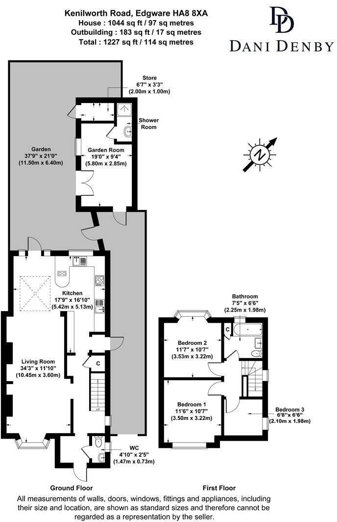
This well-presented three-bedroom semi-detached house on Kenilworth Road is arranged over two levels and offers ready-to-live-in accommodation with clear scope to increase space and value. The ground floor features a spacious entrance hall, open-plan modern kitchen/reception with skylight and a guest WC — a practical family layout that flows to a modest rear garden with an outhouse. Off-street parking on a wide block-paved driveway is an immediate convenience in this suburban setting.
Planning approval has been granted for a first-floor rear extension to add a fourth bedroom, and there is potential to convert the loft to a fifth bedroom (loft conversion subject to planning). These permissions make the property attractive to growing families or buyers seeking value-add opportunities. The property is freehold, constructed in the 1930s–40s, and benefits from mains gas central heating, double glazing (install date unknown), fast broadband and very low local crime.
Practical considerations: there is a single family bathroom on the first floor and the rear garden is small-to-average in size, so outdoor space is modest. The tenancy of the sukkah-style roof feature and the age of some fittings mean buyers should expect routine maintenance and to verify the double glazing age. Nonetheless, its location close to good local schools, shops and transport links, combined with approved extension works, gives clear scope for improved living space and long-term value.
This home will suit families seeking a convenient, comfortable base with near-term extension upside, or buyers wanting a solid freehold property in a quiet, well-served part of Edgware.
3 bedroom semi-detached house for sale in Kenilworth Road, Edgware, HA8 — £575,000 • 3 bed • 1 bath • 1044 ft²
5 bedroom semi-detached house for sale in Kenilworth Road, Edgware, HA8 — £649,950 • 5 bed • 2 bath • 815 ft²
3 bedroom semi-detached house for sale in Broadfields Avenue, Edgware, HA8 — £725,000 • 3 bed • 1 bath • 1206 ft²
3 bedroom detached house for sale in Kenilworth Road, Edgware, HA8 — £650,000 • 3 bed • 1 bath • 1245 ft²
4 bedroom semi-detached house for sale in St Margarets Road, Edgware, HA8 — £839,950 • 4 bed • 1 bath • 1766 ft²
2 bedroom end of terrace house for sale in Maytree Close, Edgware, HA8 — £510,000 • 2 bed • 1 bath • 915 ft²


















































