Three bedrooms, freehold semi-detached house
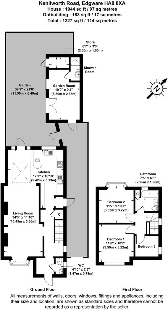
A well-presented three-bedroom semi-detached family home on Kenilworth Road, offered as a freehold with off-street parking for two. The ground-floor rear extension has created a bright open-plan living/dining/kitchen with a Sukkah roof, and a convenient downstairs WC for everyday family life and entertaining. The property sits within the local Eruv and is close to shops, bus routes and direct links to Edgware Station — useful for commuters and school runs.
The house already benefits from planning approval for a first-floor rear extension and has further potential for a loft conversion, making it an appealing purchase for buyers who want to add space and value. Accommodation currently includes a modest double main bedroom and two further average-sized bedrooms over two floors, plus a decent rear garden that extends well beyond the house.
Practical points to note: council tax is above average, the double glazing install date is unknown, and bedroom sizes are modest compared with larger modern family homes. The property is dated to a 1930–1949 construction era but is presented in good order, offering a solid base for either immediate occupation or sympathetic updating and extension.
This home will suit growing families looking for a comfortable suburban house with clear scope to increase living space, or buy-to-let investors seeking a well-located rental in a very low-crime, affluent area.
3 bedroom semi-detached house for sale in Kenilworth Road, Edgware HA8 — £575,000 • 3 bed • 1 bath • 1044 ft²
5 bedroom semi-detached house for sale in Kenilworth Road, Edgware, HA8 — £649,950 • 5 bed • 2 bath • 815 ft²
2 bedroom end of terrace house for sale in Maytree Close, Edgware, HA8 — £510,000 • 2 bed • 1 bath • 915 ft²
3 bedroom detached house for sale in Kenilworth Road, Edgware, HA8 — £650,000 • 3 bed • 1 bath • 1245 ft²
3 bedroom semi-detached house for sale in Broadfields Avenue, Edgware, HA8 — £725,000 • 3 bed • 1 bath • 1206 ft²
3 bedroom semi-detached house for sale in Brook Avenue, Edgware, HA8 — £650,000 • 3 bed • 1 bath • 1016 ft²










































































