Bright one-bedroom home with high ceilings and strong rental potential close to the School of Art.
Large one-bedroom apartment — approx. 700 sq ft
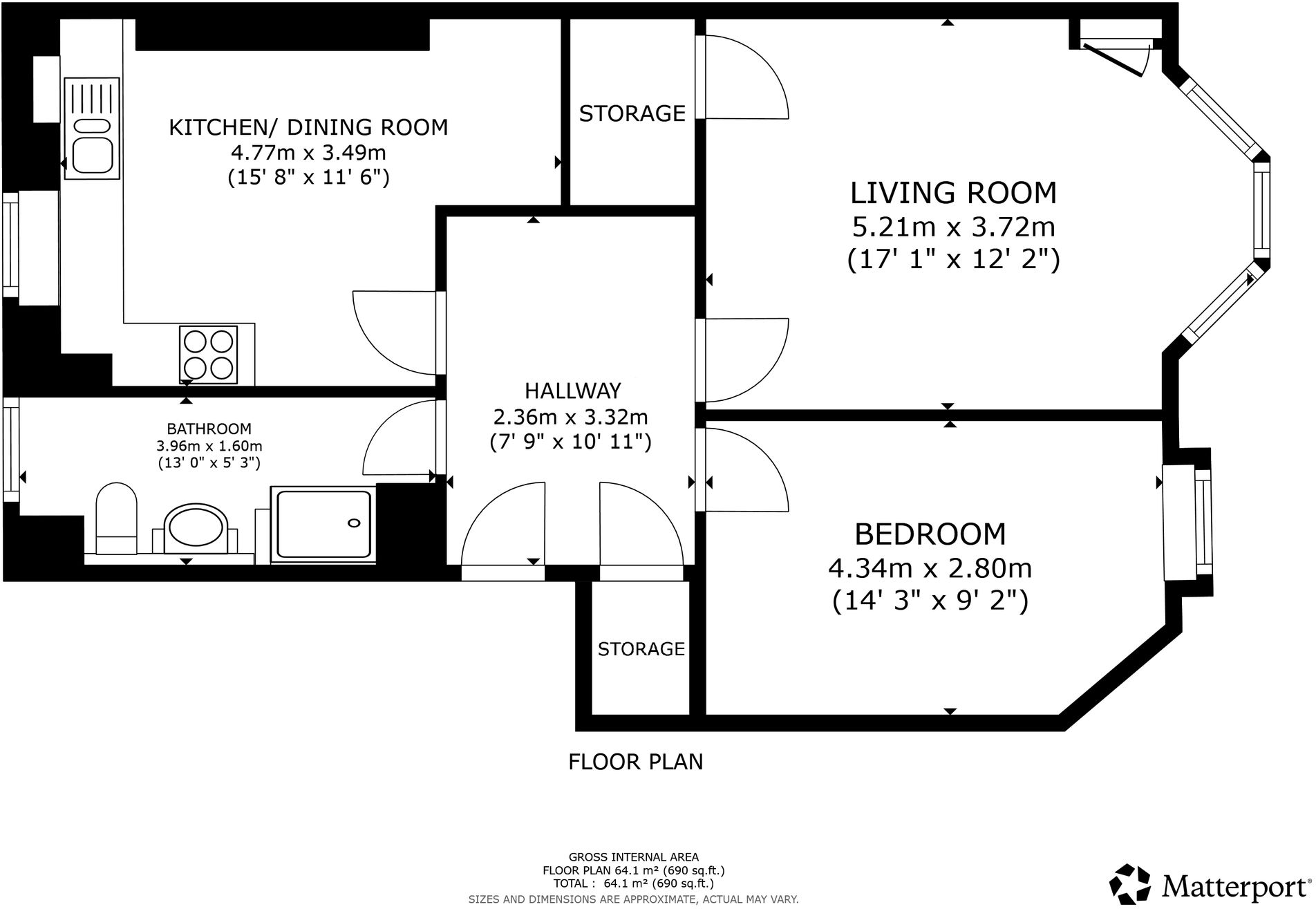
Occupying the second floor of a red sandstone tenement, this large one-bedroom apartment (approx. 700 sq ft) combines classic Victorian proportions with well-presented, modern finishes. The bay-windowed living room, high ceilings and generous room sizes give a bright, airy feel; a modern dining-sized kitchen and fully tiled shower room complete the accommodation. Secure entry intercom provides added peace of mind.
Located on Buccleuch Street at the north-west edge of Glasgow city centre, the flat sits in Garnethill — a cosmopolitan, student-focused neighbourhood a short walk from the School of Art and central amenities. Fast broadband and excellent mobile signal help make the home appealing to students, commuters and buy-to-let purchasers seeking reliable demand.
Practical considerations are clear: access is via communal stair (no lift), and the property’s tenure is unknown, which will affect mortgage options. The wider area records high deprivation, so purchasers should weigh local socio-economic factors alongside rental prospects. EPC rating C and affordable council tax are positives for running costs.
For an investor or buyer after generous proportions and strong central location, this flat offers immediate move-in quality and rental appeal. The property is most suitable for those comfortable arranging stair access and clarifying tenure before purchase.
1 bedroom apartment for sale in Arthur Street, Yorkhill, Glasgow, G3 — £149,000 • 1 bed • 1 bath • 661 ft²
1 bedroom flat for sale in Garthland Drive, Dennistoun, G31 2RE, G31 — £169,950 • 1 bed • 1 bath • 876 ft²
1 bedroom flat for sale in 126 Cumming Drive, Flat 2/2, Mount Florida, Glasgow, G42 9BW, G42 — £149,000 • 1 bed • 1 bath • 820 ft²
1 bedroom flat for sale in Prince Edward Street, Glasgow, G42 — £150,000 • 1 bed • 1 bath • 668 ft²
1 bedroom flat for sale in 22 Battlefield Avenue, Flat 1/2, Battlefield, Glasgow, G42 9RJ, G42 — £159,000 • 1 bed • 1 bath • 721 ft²
1 bedroom flat for sale in New City Road, Glasgow, Glasgow City, G4 — £115,000 • 1 bed • 1 bath • 433 ft²






































































