Large single‑storey home with extension potential near seafront and town centre.
Exceptional corner plot with wide frontage and deep rear garden
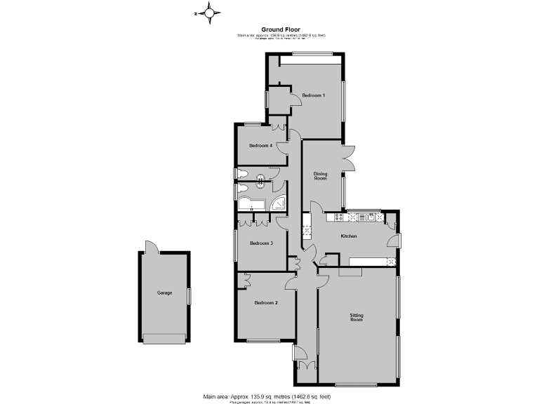
This substantial detached bungalow occupies an exceptionally generous corner plot in Tankerton, under a mile from Whitstable High Street and close to the seafront. The single‑storey layout delivers bright, well‑proportioned rooms throughout — a large sitting room, separate dining room, kitchen, four bedrooms, family bathroom and a separate cloakroom. Off‑street parking and a detached garage add practical convenience for residents.
The wide frontage (approx. 83ft) and deep plot (approx. 124ft) give clear scope to extend or remodel the property, subject to planning and consents. For buyers seeking one‑level living — downsizers or families preferring ground‑floor accommodation — the layout is flexible and lends itself to contemporary open living if desired.
The house appears well maintained but would benefit from minor modernisation to kitchen and finishes to meet current standards. There is only one main bathroom for four bedrooms and council tax is above average — important practical considerations. No onward chain speeds a transaction for buyers ready to move quickly.
Transport links are a strong plus: frequent services to London Victoria (around 80 minutes) and high‑speed Javelin service to St Pancras (around 73 minutes), plus nearby schools and local amenities. The property is freehold with double glazing and gas central heating; flood risk is low and the neighbourhood records very low crime levels.
3 bedroom detached bungalow for sale in Strangford Road, Tankerton, Whitstable, CT5 — £650,000 • 3 bed • 1 bath • 1094 ft²
3 bedroom detached bungalow for sale in Ham Shades Lane, Tankerton, Whitstable, CT5 — £545,000 • 3 bed • 1 bath • 1004 ft²
4 bedroom bungalow for sale in Pier Avenue, Tankerton, Whitstable, Kent, CT5 — £725,000 • 4 bed • 2 bath • 1432 ft²
4 bedroom detached bungalow for sale in Northwood Road, Tankerton, Whitstable, CT5 — £995,000 • 4 bed • 4 bath • 1986 ft²
2 bedroom semi-detached bungalow for sale in Swalecliffe Road, Whitstable, CT5 — £339,950 • 2 bed • 1 bath • 665 ft²
4 bedroom detached bungalow for sale in Juniper Close, Tankerton, Whitstable, CT5 — £725,000 • 4 bed • 3 bath • 2077 ft²










































































