First-floor one-bed with communal garden and convenient transport links.
Chain free one-bedroom first-floor conversion flat
Grade II listed — alterations require listed-building consent
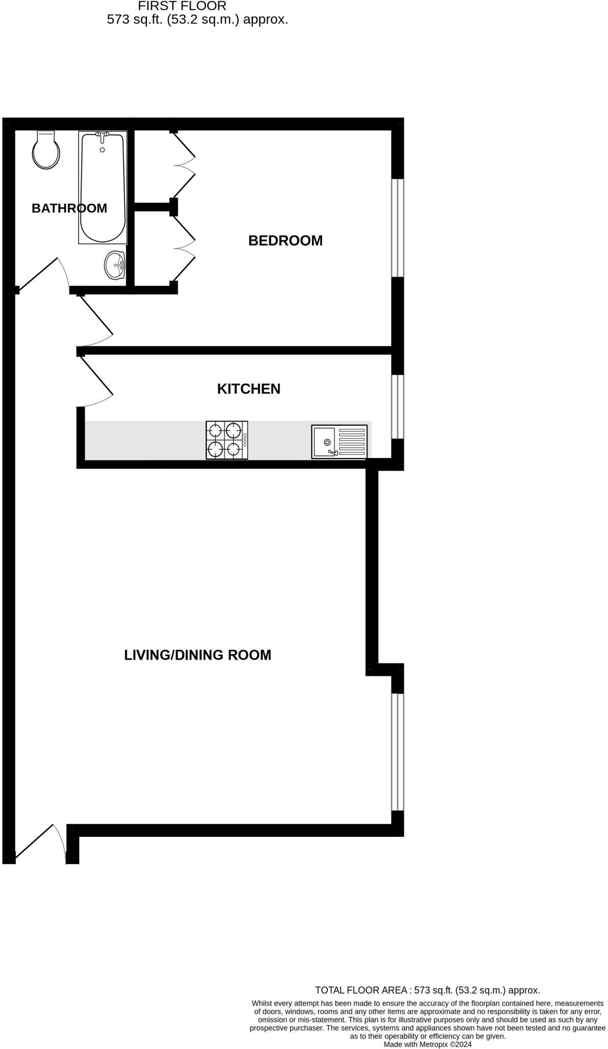
Approx 573 sq ft; 18' living/dining and 14' fitted kitchen
Communal landscaped courtyard garden and residents' parking
Lease circa 88 years; leasehold tenure
High service charge ~£3,425 pa; ground rent £150 pa
Single glazing and solid brick walls — likely poor thermal efficiency
Located near Elizabeth Line, fast broadband and excellent mobile signal
Set within a converted Victorian military academy, this first-floor one-bedroom flat offers characterful period features and a peaceful communal courtyard. The compact 573 sq ft layout includes an 18' living/dining room and a fitted 14' kitchen, providing practical space for everyday living. Residents benefit from communal gardens and off-street parking; the property is offered chain free.
This is a Grade II listed building, so external and some internal changes will require listed-building consent. The flat has single glazing and solid brick walls with no assumed insulation, so buyers should expect ongoing maintenance, potential energy inefficiency, and limited scope for structural alterations. The lease has approximately 88 years remaining; service charge is substantial at about £3,425 per year and ground rent is £150 annually.
Location is a major selling point: Woolwich Dockyard, Arsenal stations and the Elizabeth line are within easy reach, connecting quickly to Canary Wharf and central London. Broadband and mobile signals are strong, and local schools rate well. The wider area is undergoing regeneration, which supports future value but sits within a generally deprived area currently.
Suitable for a first-time buyer or investor comfortable with a listed property, this flat offers immediate occupancy and refurbishment potential. Buyers should budget for energy upgrades, listed-building compliance, and ongoing service costs when assessing total running expenses.
1 bedroom apartment for sale in Greenhill Terrace, Woolwich, London, SE18 — £250,000 • 1 bed • 1 bath • 490 ft²
2 bedroom flat for sale in Ashmore Road, Woolwich, SE18 — £325,000 • 2 bed • 2 bath • 763 ft²
1 bedroom flat for sale in Langhorne Street, Woolwich Common, SE18 — £240,000 • 1 bed • 1 bath • 427 ft²
1 bedroom apartment for sale in Connaught Mews, Woolwich, SE18 6SU, SE18 — £215,000 • 1 bed • 1 bath • 452 ft²
1 bedroom flat for sale in Ruddstreet Close, Woolwich, SE18 — £220,000 • 1 bed • 1 bath • 487 ft²
1 bedroom apartment for sale in Langhorne Street, LONDON, SE18 — £300,000 • 1 bed • 1 bath • 552 ft²


























































