Well‑located starter flat near Elizabeth Line, perfect for commuting first buyers.
Chain free second‑floor flat with one double bedroom
Close walking access to Elizabeth Line, DLR and mainline stations
Bright open‑plan living room and fitted kitchen
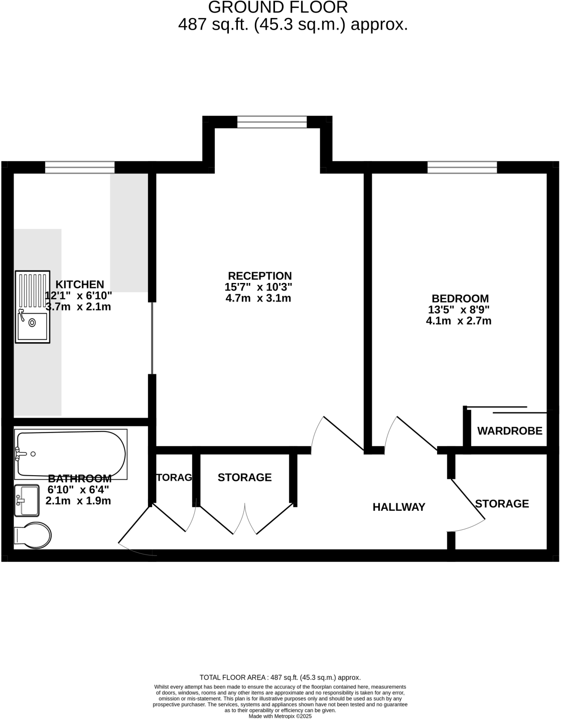
Generous walk‑in storage room suitable for home office/wardrobe
Service charge circa £2,300 per year; higher ongoing costs
112 years remaining on lease; leasehold tenure
Building has cavity walls assumed uninsulated; may need upgrades
Area classified as very deprived despite strong transport links
Set on the second floor of a post‑war block, this chain‑free one‑bed flat offers a practical first home or buy‑to‑let in Woolwich’s improving transport hub. The apartment has a bright open‑plan living room with fitted kitchen, a generous double bedroom and a useful walk‑in storage room that could serve as a home office or wardrobe.
Transport is a clear strength: the Elizabeth Line, DLR and mainline stations are within easy reach, and local shopping, leisure and cafés at the Royal Arsenal are nearby. Double glazing and central heating via a community scheme provide basic comfort, and there is communal garden space around the block.
Buyers should factor in the ongoing costs and some maintenance items. The service charge is relatively high at about £2,300 per year and there is a small ground rent of £110. The building’s cavity walls are assumed to have no insulation, and the property dates from the 1950s–60s, so buyers seeking a turn‑key finish may want to allow budget for upgrades.
With about 487 sq ft, a 112‑year lease remaining and no forward chain, the flat suits first‑time buyers looking for a well‑located starter home or investors targeting rental demand from commuters. The location in a deprived but rapidly changing area brings potential upside alongside the need for practical consideration of costs and future improvements.
1 bedroom apartment for sale in Harlinger Street, Woolwich Dockyard, SE18 — £220,000 • 1 bed • 1 bath • 419 ft²
1 bedroom flat for sale in Garland Road, Plumstead, London, SE18 — £210,000 • 1 bed • 1 bath • 519 ft²
2 bedroom flat for sale in Walmer Terrace, Woolwich, SE18 — £220,000 • 2 bed • 1 bath • 694 ft²
1 bedroom flat for sale in Harlinger Street, Woolwich, London, SE18 — £233,000 • 1 bed • 1 bath • 390 ft²
1 bedroom flat for sale in Flat 4 Confidence House, Manthorp Road, London, SE18 , SE18 — £240,000 • 1 bed • 1 bath • 500 ft²
1 bedroom flat for sale in Crescent Road, London, SE18 — £200,000 • 1 bed • 1 bath • 447 ft²














































