Auction sale ideal for refurb or redevelopment with planning potential.
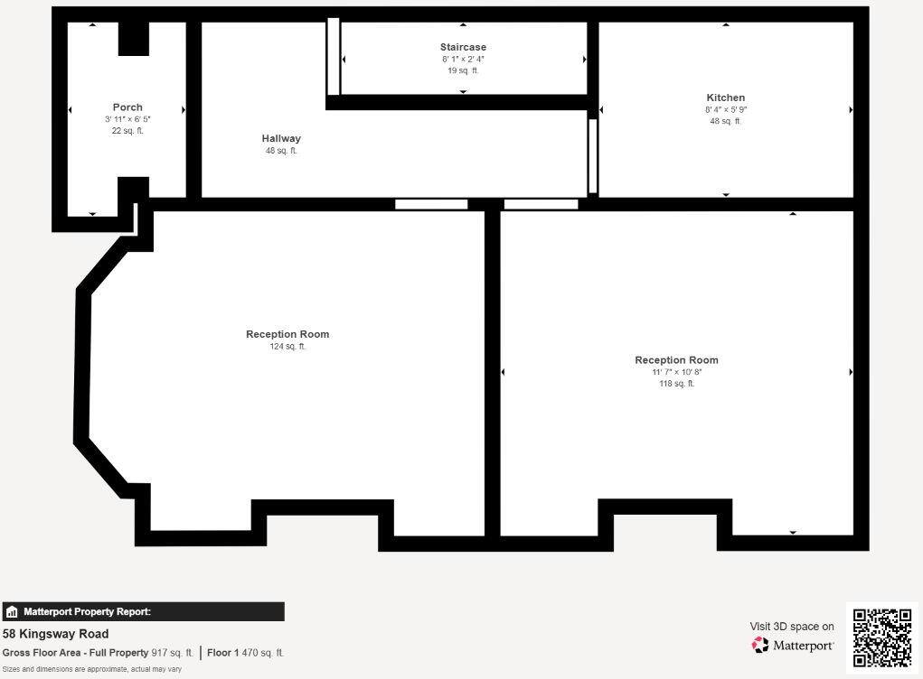
Vacant freehold three-bedroom semi-detached, approx. 917 sqft
A vacant freehold 1930s semi-detached house on a triangular corner plot, sold at public auction with vacant possession. The property offers three bedrooms, two reception rooms, a kitchen and a single bathroom across approximately 917 sqft — a straightforward refurbishment or investment flip for buyers comfortable with auction purchase conditions.
Key strengths are the corner plot with decent garden and side access, double glazing, mains gas central heating and a D energy rating. The site may suit redevelopment or extension subject to obtaining necessary planning consents — buyers should treat that as potential rather than guaranteed scope.
Important negatives: the house needs renovation throughout and walls are assumed to lack cavity insulation. The sale is at auction (completion 42 days) and will incur an administration fee plus any costs in the legal pack. Inspectors should note possible exterior repair and overgrown front garden; electricity may be off during viewings.
This lot will suit cash or mortgage-ready investors and builders seeking a value refurbishment or redevelopment opportunity in a mixed suburban area with good local schools and transport links. Buyers must read the legal pack and arrange planning enquiries before bidding.
3 bedroom semi-detached house for sale in 89 Lynton Avenue, Wolverhampton, WV6 9NQ, WV6 — £49,000 • 3 bed • 1 bath • 843 ft²
3 bedroom semi-detached house for sale in Winchester Road, WOLVERHAMPTON, WV10 — £200,000 • 3 bed • 1 bath • 878 ft²
3 bedroom terraced house for sale in 54 Wayside, Wolverhampton, WV8 1TB, WV8 — £25,000 • 3 bed • 1 bath • 958 ft²
3 bedroom semi-detached house for sale in 32 Park Road, Featherstone, Wolverhampton, WV10 7HS, WV10 — £24,000 • 3 bed • 1 bath • 948 ft²
3 bedroom semi-detached house for sale in 12 Central Drive, Walsall, WS3 2QQ, WS3 — £125,000 • 3 bed • 1 bath • 1136 ft²
3 bedroom semi-detached house for sale in 25 Worcester Road, Willenhall, WV13 2RZ, WV13 — £65,000 • 3 bed • 1 bath • 950 ft²


























































































