WV13 2RZ - 3 bed 1930s semi detached opportunity in Worcester Road, WV…

View on Property Piper

3 bedroom semi-detached house for sale in 25 Worcester Road, Willenhall, WV13 2RZ, WV13

Summary - 25, WORCESTER ROAD WV13 2RZ

3 bed 1 bath Semi-Detached

Auction lot: vacant 3-bed 1930s semi with garden, off-street parking and redevelopment potential.
Vacant three-bedroom 1930s semi-detached on decent plot with driveway and garden
Double glazing and mains gas central heating present (boiler and radiators)
Sold at auction — freehold with 42-day completion; buyer beware of auction conditions
Area: deprived classification, high local crime — impacts rental/resale demand
Medium flood risk — obtain flood reports and insurance cost estimates
Solid brick walls assumed uninsulated; likely need insulation and energy upgrades
Priced for auction, this vacant three-bedroom 1930s semi-detached house sits on a decent plot with driveway and garden. The property is double glazed with mains gas central heating and offers straightforward accommodation: storm porch, through reception, kitchen, bathroom and three first-floor bedrooms. EPC rating D.

This lot will suit an investor or developer comfortable with auction timelines and renovation. The house is sold freehold with vacant possession and a 42-day completion period — useful for quick turnaround projects. Its plot and setback from the road may offer modest scope for extension or reconfiguration, subject to planning.

Buyers should note material negatives: the area is classified as deprived with high local crime and a medium flood risk. Walls are original solid brick with assumed no insulation and the property will likely require modernisation and possible energy upgrades. Auction purchase carries additional fees and requires pre-purchase legal and physical inspections.

For the right bidder this is a low-entry opportunity to add rental stock or renovate for resale. Viewings are by block appointment; review the legal pack and factor in renovation costs, local area issues and auction purchaser fees before bidding.

Property Details

Image Descriptions

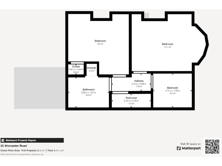
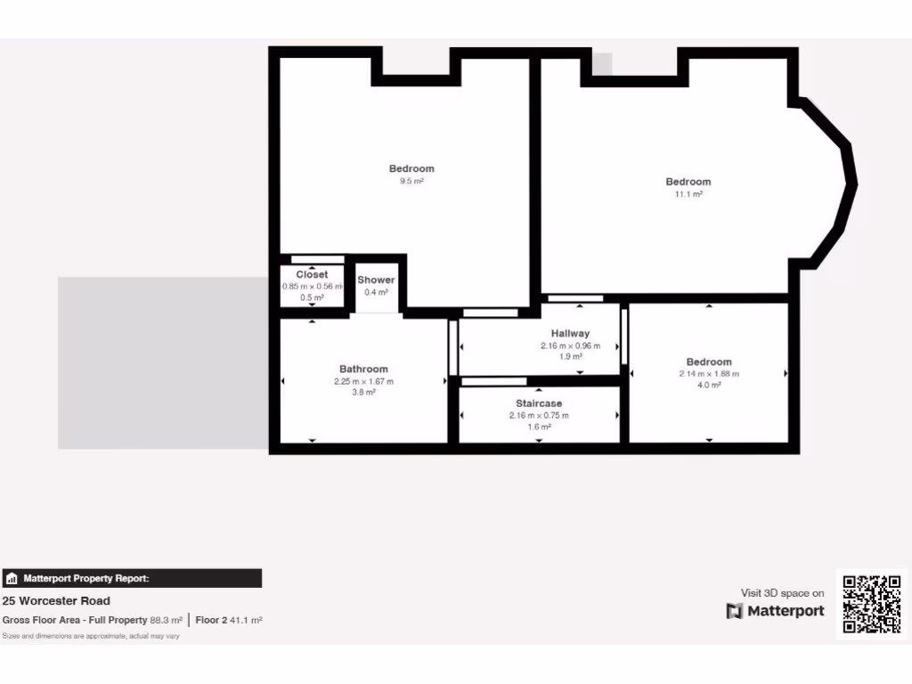
Floorplan Description

Rooms

Textual Property Features

Target Audience

AI Tags

Detected Visual Features

EPC Details

Nearby Schools

Nearest Bars And Restaurants

,,,,}

Nearest General Shops

,,}

Nearest Grocery shops

,,}

Nearest Supermarkets

,,}

Nearest Religious buildings

,,}

Nearest Medical buildings

,,,}

Nearest Airports

}

Nearest Leisure Facilities

,,,,}

Nearest Tourist attractions

,,}

Nearest Train stations

,,,,}

Nearest Bus stations and stops

,,,,}

Nearest Hotels

,,}

Tags

Local Market Stats

Similar Properties

Meta

High Res Images

Compatible Images

Low res Images

Thumbnails

Raw Images

High Res Floorplan Images

Compatible Floorplan Images

Low res Floorplan Images

FloorplanImages Thumbnail

Raw Floorplan Images