Immaculate four-bedroom family home with large enclosed garden and woodland views.
Extremely large floor area c.4,694 sq ft – generous family space
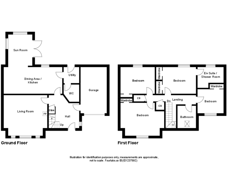
Spacious, contemporary and immaculately presented, this four-bedroom detached home is arranged over two floors and offers extremely large living space (c. 4,694 sq ft). The heart of the house is a bright open-plan dining kitchen that flows into a sunny south-facing sunroom and out to a large, fully enclosed rear garden — ideal for children and family entertaining. Principal and three further double bedrooms plus a modern ensuite create comfortable family accommodation.
Outside, the wide paviour driveway, integral garage and substantial front and wrap‑around gardens deliver generous parking and secure outdoor space. The rear garden is well maintained with multiple seating areas, a paved patio and a timber summer house with deck — a private spot for home working or hobbies. The property sits with open views across grassland to woodland and is a short walk from woodland trails, playing fields and local amenities.
Practical strengths include modern fitted kitchen with integrated appliances, utility room, plentiful built-in storage and excellent mobile and broadband connectivity. There is no flood risk recorded. However, note there are only two bathrooms serving four double bedrooms, and council tax is described as expensive. The home sits within a remoter/agricultural community classification and local area deprivation is noted as very deprived; buyers should weigh rural peace and strong local amenities against these socioeconomic factors.
This property will suit growing families seeking move-in ready, large accommodation with generous outdoor space and easy access to nature and coastal recreation. It also offers potential for buyers who value flexible living space — the volume and layout would adapt well to multi-use family needs, home working or hobbies.
2 bedroom detached bungalow for sale in 56 Highfield, Forres, Moray, IV36 1FN, IV36 — £205,000 • 2 bed • 1 bath • 4014 ft²
4 bedroom detached house for sale in Inver House, Bogton Place, Forres, Morayshire, IV36 — £270,000 • 4 bed • 3 bath
3 bedroom detached house for sale in Invererne Road, Forres, Moray, IV36 — £245,000 • 3 bed • 1 bath • 837 ft²
2 bedroom end of terrace house for sale in 23 North Road, Kinloss, Forres, IV36 3YB, IV36 — £130,000 • 2 bed • 1 bath • 1316 ft²
4 bedroom detached house for sale in Balnageith Rise, Forres, IV36 2HF, IV36 — £295,000 • 4 bed • 3 bath • 1432 ft²
3 bedroom semi-detached house for sale in Falconer Avenue, Forres, Morayshire, IV36 — £240,000 • 3 bed • 2 bath






































































































