Single-storey comfort with garage and loft potential in well-connected Shavington.
Newly renovated kitchen/diner with space for oven, induction hob and large dining table|Two generous double bedrooms, flexible for guest or home office use|Fully boarded loft with large skylights — great storage or hobby space|Previous planning permission for loft conversion has expired (would need reapplication)|Large detached garage with loft hatch — versatile parking or workshop space|Oil-fired boiler and radiators — higher running costs than mains gas|Small rear garden and modest plot size; low-maintenance outdoor space|EPC rating D; sold freehold with off-street parking and affordable council tax
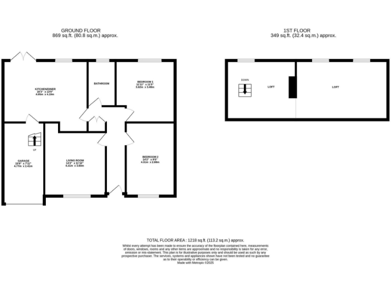
This recently refreshed two-bedroom bungalow on Crewe Road is well suited to anyone looking to downsize without compromising on space or light. The newly renovated kitchen/diner creates a contemporary hub for cooking and dining, while the bright living room and two generous double bedrooms provide comfortable, single-storey living. The property is offered freehold with off-street parking and a sizable detached garage.
A practical bonus is the fully boarded loft with large skylights accessed from the garage. It offers excellent storage or hobby space and previously had planning permission for conversion, presenting potential — note that permission has since expired. The garage itself is flexible for secure parking, workshop use or a home gym and includes plumbing space for laundry appliances.
There are some material points to consider: heating is supplied by an oil-fired boiler and radiators, which can be less convenient and more costly than mains gas; the EPC is rated D. The plot is modest in size, and while the interior has been newly renovated, further works would be needed if you wanted to pursue a loft conversion again (new planning application required).
Positioned in Shavington, the home benefits from strong local amenities, good schools, fast broadband and easy road and rail links to Crewe and the wider region. For purchasers seeking a low-maintenance single-storey home with scope to add value, this bungalow offers immediate comfort and sensible potential.
3 bedroom detached bungalow for sale in Osborne Grove, Shavington, Cheshire, CW2 — £265,000 • 3 bed • 1 bath • 1033 ft²
3 bedroom house for sale in Earls Road, Shavington, Cheshire, CW2 — £205,000 • 3 bed • 1 bath • 802 ft²
2 bedroom bungalow for sale in Ashcroft Avenue, Shavington, Crewe, Cheshire, CW2 — £180,000 • 2 bed • 1 bath • 1136 ft²
2 bedroom bungalow for sale in Crewe Road, Crewe, Cheshire, CW1 — £235,000 • 2 bed • 1 bath • 644 ft²
2 bedroom semi-detached bungalow for sale in Cemetery Road, Weston, Cheshire, CW2 — £260,000 • 2 bed • 1 bath • 650 ft²
2 bedroom semi-detached bungalow for sale in Burlea Drive, Crewe, CW2 — £240,000 • 2 bed • 1 bath • 689 ft²






































































