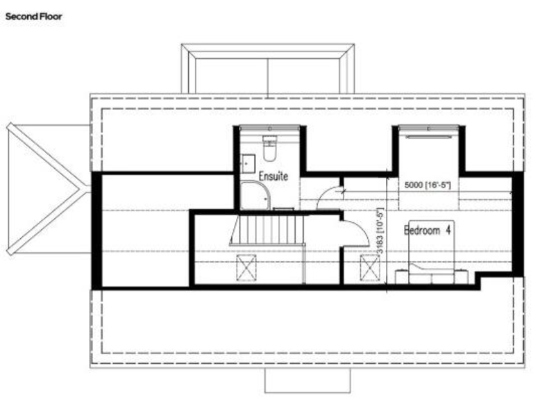
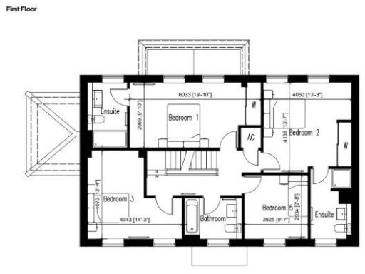
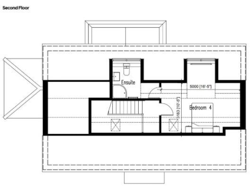
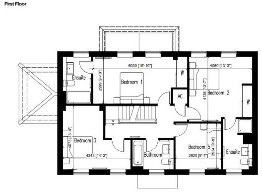
Spacious five-bedroom family home with luxury fittings and south garden.
Coastal outlook with sea-facing aspects and resort proximity
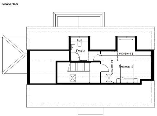
Set in sought-after Broadstairs, this contemporary neo-Georgian detached home delivers generous family living with an exceptional coastal outlook. The layout includes five bedrooms, four bathrooms (three en-suite) and large open-plan kitchen/dining that frames garden and sea views — ideal for everyday life and entertaining. Practical highlights include a double garage with EV charging point, utility room, study and a south-facing landscaped garden that receives strong daylight.
This is a new-build property sold freehold with a 10-year structural warranty and a two-year aftercare service, reducing short-term maintenance uncertainty. The specification mentions luxury touches such as a Quooker boiling tap, an American-style fridge/freezer and stonework surfaces in the utility, giving a high-quality feel throughout.
Broadstairs offers excellent local schools, good broadband and mobile reception, and easy access to beaches and a links golf course, making the location strong for families and lifestyle buyers. Flood risk is reported as none and the plot is large, but council tax details are not provided and should be confirmed.
Buyers should note this is marketed as part of a boutique coastal development; some promotional imagery may be indicative and differ from the finished unit. The development’s area is classified as an ageing urban community and self-sufficient retirement locality, which may influence neighbourhood demographics and local services.
5 bedroom detached house for sale in Kingsgate Place, Reading Street, Broadstairs, Kent, CT10 — £1,150,000 • 5 bed • 4 bath • 2511 ft²
5 bedroom detached house for sale in Kingsgate Place, Reading Street, Broadstairs, Kent, CT10 — £1,350,000 • 5 bed • 4 bath • 2511 ft²
6 bedroom detached house for sale in Kingsgate Place,
Broadstairs,
CT10 3AZ, CT10 — £1,295,000 • 6 bed • 4 bath • 2584 ft²
5 bedroom detached house for sale in Kingsgate Place,
Broadstairs,
CT10 3AZ, CT10 — £1,250,000 • 5 bed • 4 bath • 2438 ft²
3 bedroom detached house for sale in Kingsgate Place,
Broadstairs,
CT10 3AZ, CT10 — £600,000 • 3 bed • 1 bath • 896 ft²
4 bedroom detached house for sale in Kingsgate Place,
Broadstairs,
CT10 3AZ, CT10 — £795,000 • 4 bed • 3 bath • 1645 ft²






































































































