Spacious five-bedroom detached house with sea views and energy-efficient systems.
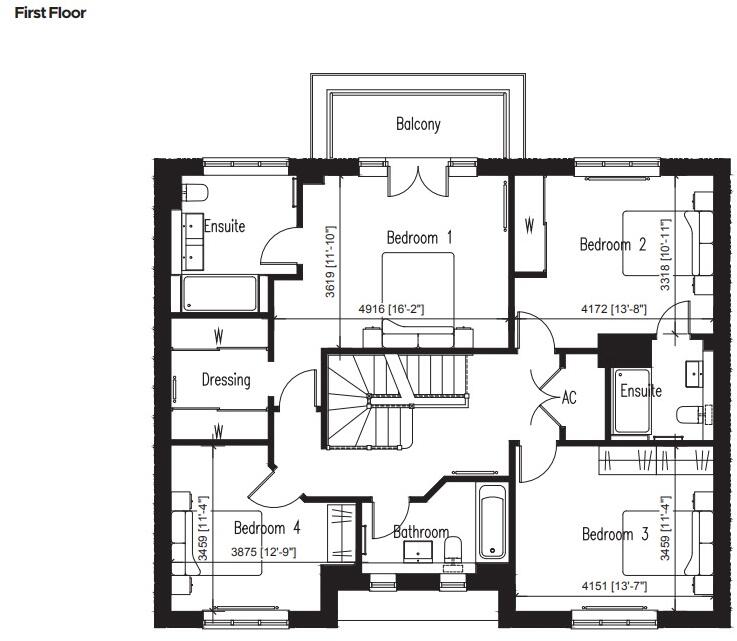
Coastal views from first-floor balcony over golf course and Joss Bay
Five bedrooms; four bathrooms including three en-suites
Air source heat pump with ground-floor underfloor heating
Double garage with EV charging point and large landscaped gardens
New-build with 10-year warranty and two-year aftercare service
Fast broadband, excellent mobile signal; suited to commuters and families
No flood risk; located in an affluent area with ageing local demographic
Brochure may include CGI or show-home images; confirm final finishes
This newly built five-bedroom detached house in Kingsgate Place offers generous family accommodation across multiple floors with striking coastal views from a first-floor balcony overlooking the neighbouring golf course and Joss Bay. The layout includes a large kitchen/dining room, separate study, ground-floor living spaces and four bathrooms (three en-suite), giving practical room separation for family life or guests.
Energy-efficient features include an air source heat pump, underfloor heating to the ground floor and a dedicated hot water cylinder. Practical parking and storage are strong positives: a double garage with EV charging point and a sizable landscaped front and rear garden on a large plot. The development comes with a 10-year new-build warranty and a two-year aftercare service.
The location suits families, retirees and commuters who want a coastal lifestyle with fast broadband, excellent mobile signal and easy access to local schools and amenities. There is no identified flood risk and the wider area is affluent, though local classification indicates an ageing urban community rather than a dense urban centre.
Buyers should note this is a new-build marketed with some CGI or show-home imagery, so final finishes and exact layouts may differ from brochure images. Council tax band is not specified; prospective purchasers should verify local service charges and any development-specific arrangements before committing.
5 bedroom detached house for sale in Kingsgate Place, Reading Street, Broadstairs, Kent, CT10 — £1,350,000 • 5 bed • 4 bath • 2511 ft²
5 bedroom detached house for sale in Kingsgate Place, Reading Street, Broadstairs, Kent, CT10 — £1,175,000 • 5 bed • 4 bath • 2438 ft²
6 bedroom detached house for sale in Kingsgate Place,
Broadstairs,
CT10 3AZ, CT10 — £1,295,000 • 6 bed • 4 bath • 2584 ft²
5 bedroom detached house for sale in Kingsgate Place,
Broadstairs,
CT10 3AZ, CT10 — £1,250,000 • 5 bed • 4 bath • 2438 ft²
3 bedroom detached house for sale in Kingsgate Place,
Broadstairs,
CT10 3AZ, CT10 — £600,000 • 3 bed • 1 bath • 896 ft²
4 bedroom detached house for sale in Kingsgate Place,
Broadstairs,
CT10 3AZ, CT10 — £775,000 • 4 bed • 2 bath • 1496 ft²


























































































