Established income, auction sale — entry‑level mixed‑use investment with refurbishment potential..
Prominent Victorian corner mixed‑use freehold, immediate income stream
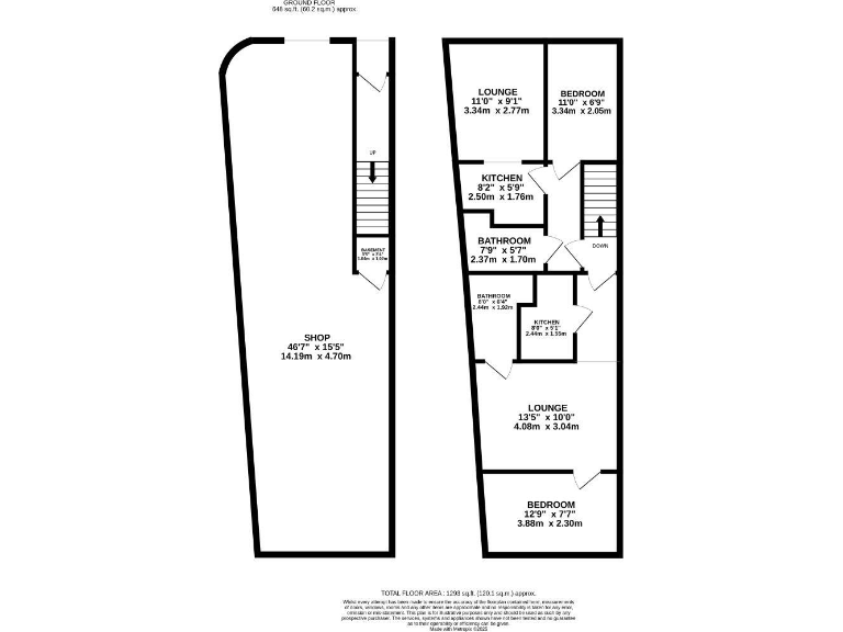
Gross annual income £18,000; shop £7,200, two flats £5,400 each
Guide price £150k–£175k; c.12% yield at lower guide
Sold at live auction, chain‑free; 10% deposit on exchange
EPCs D & E; electric room heaters; likely poor energy efficiency
Solid brick (no insulation assumed); pre‑2002 double glazing
Located in very deprived area with high local crime rates
Small plot, limited expansion; requires refurbishment/maintenance
A prominent Victorian mixed‑use corner freehold offered at auction, currently fully tenanted and generating immediate income. The ground floor retail unit plus two self-contained one‑bed flats produce a gross annual income of £18,000 (shop £7,200 pa; flats £5,400 pa each), giving a guide‑price yield of around 12% at the lower guide.
The building is mid‑terrace, constructed c.1900–1929 with solid brick walls and double glazing fitted before 2002. Heating is electric (room heaters) and EPC bands are D and E. Flats are let on periodic ASTs (2019 and 2023 start dates) and the shop is holding over from an FRI lease, providing established tenancies and immediate cashflow.
Material issues to note for buyers: the property sits in a very deprived, high‑crime urban area which may affect tenant turnover and rent growth. Construction suggests no cavity wall insulation (assumed) and heating is electric, so energy efficiency and running costs are likely poor; EPCs reflect this. The small plot and multi‑storey, corner layout limit expansion potential and some refurbishment/maintenance will be necessary to improve returns or meet regulatory standards.
This lot suits investors seeking an entry‑level, income‑producing freehold with short‑term yield and medium‑term scope for value uplift through refurbishment or lease renegotiation. Sale is by live auction, chain‑free; successful bidders must exchange immediately and pay a 10% deposit on the day.
2 bedroom mixed use property for sale in 366 Nacton Road, Ipswich, Suffolk, IP3 9ND, IP3 — £175,000 • 2 bed • 1 bath • 1334 ft²
2 bedroom terraced house for sale in 46 Rendlesham Road, Ipswich, Suffolk, IP1 2LY, IP1 — £100,000 • 2 bed • 1 bath • 631 ft²
2 bedroom block of apartments for sale in 1 & 3 Blanche Street, Ipswich, Suffolk, IP4 2EJ, IP4 — £120,000 • 2 bed • 2 bath • 933 ft²
2 bedroom end of terrace house for sale in 117 Woodbridge Road, Ipswich, Suffolk, IP4 2NJ, IP4 — £120,000 • 2 bed • 1 bath • 753 ft²
1 bedroom apartment for sale in First Floor Flat, 80 Christchurch Street, Ipswich, Suffolk, IP4 2DE, IP4 — £60,000 • 1 bed • 1 bath • 411 ft²
2 bedroom terraced house for sale in 10 Alexandra Road, Ipswich, Suffolk, IP4 2RH, IP4 — £100,000 • 2 bed • 1 bath • 638 ft²


























































