Conservatory, parking and easy access to Canary Wharf transport and parks.
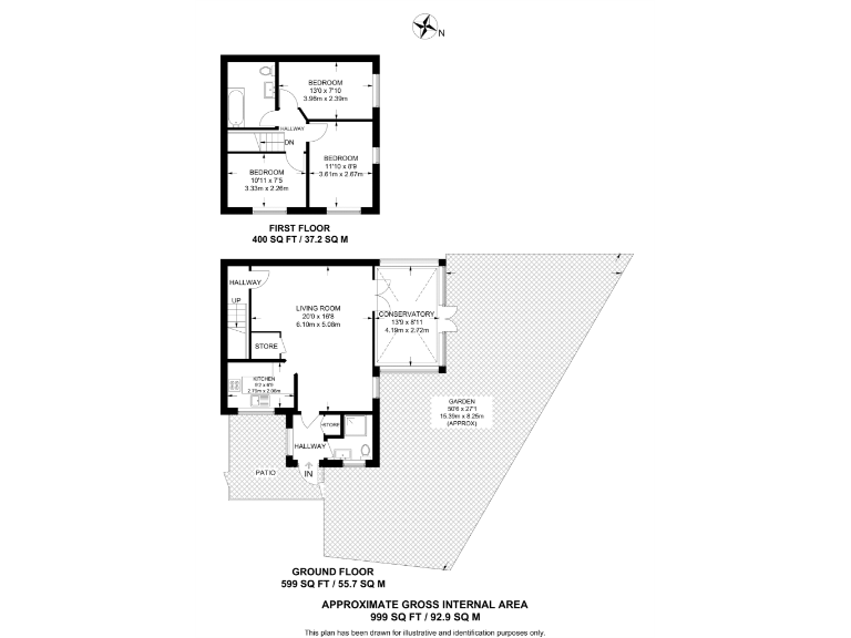
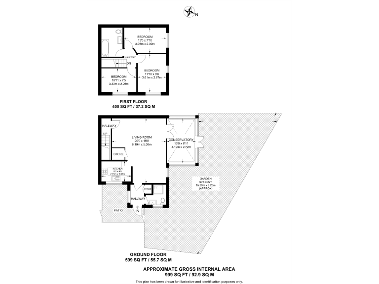
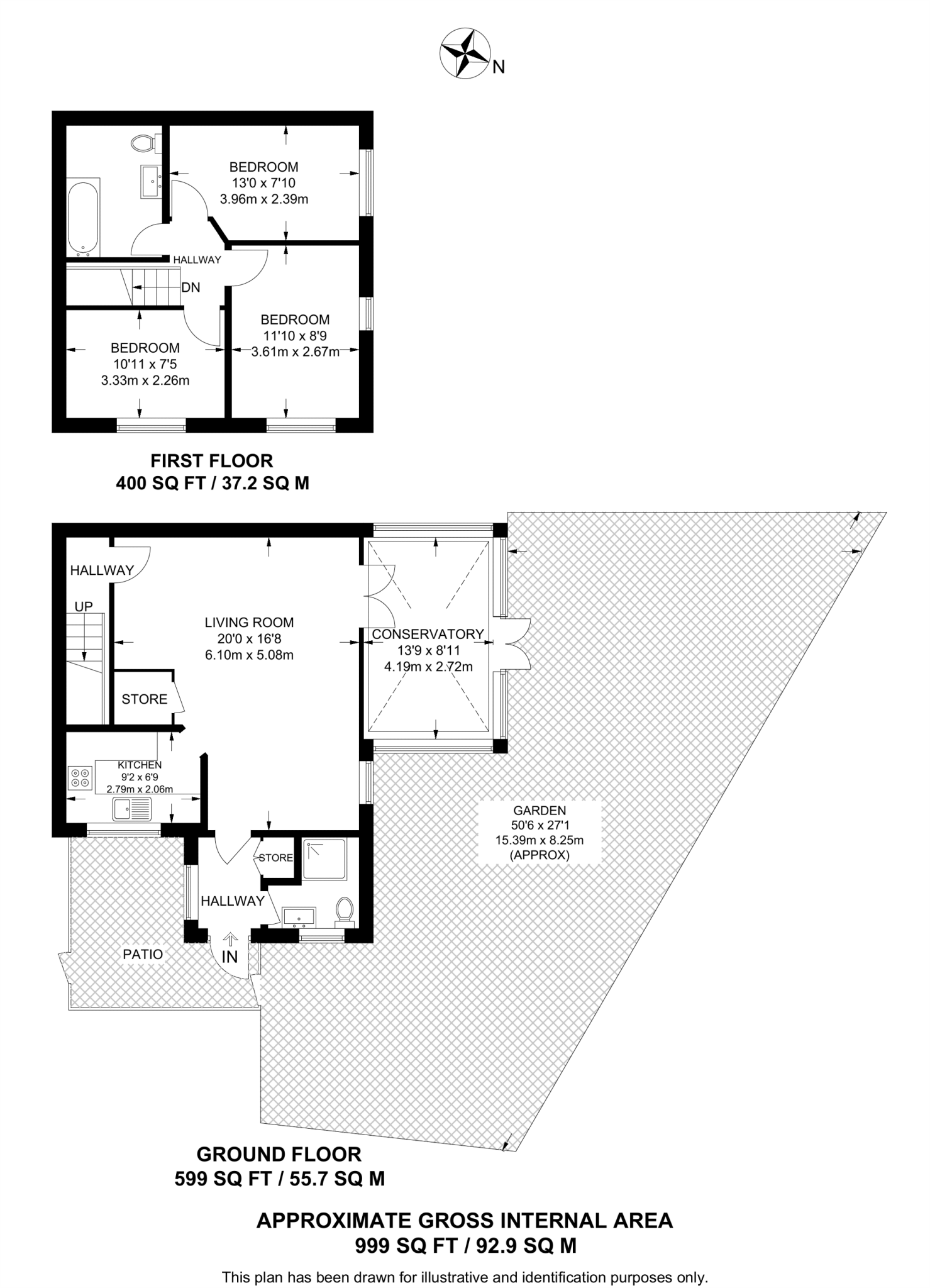
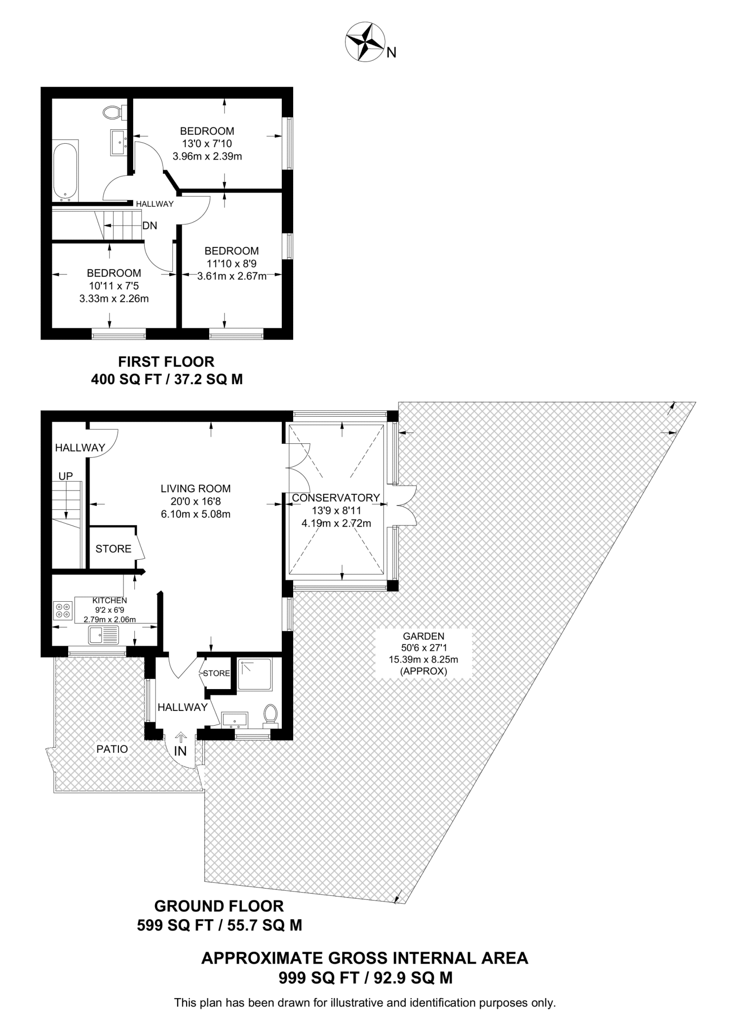
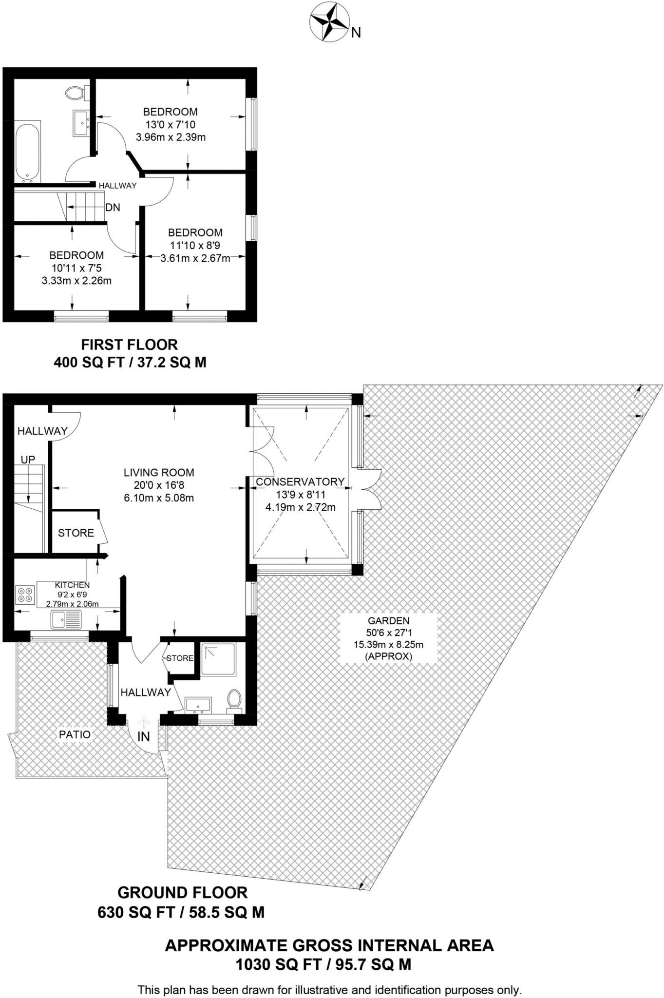
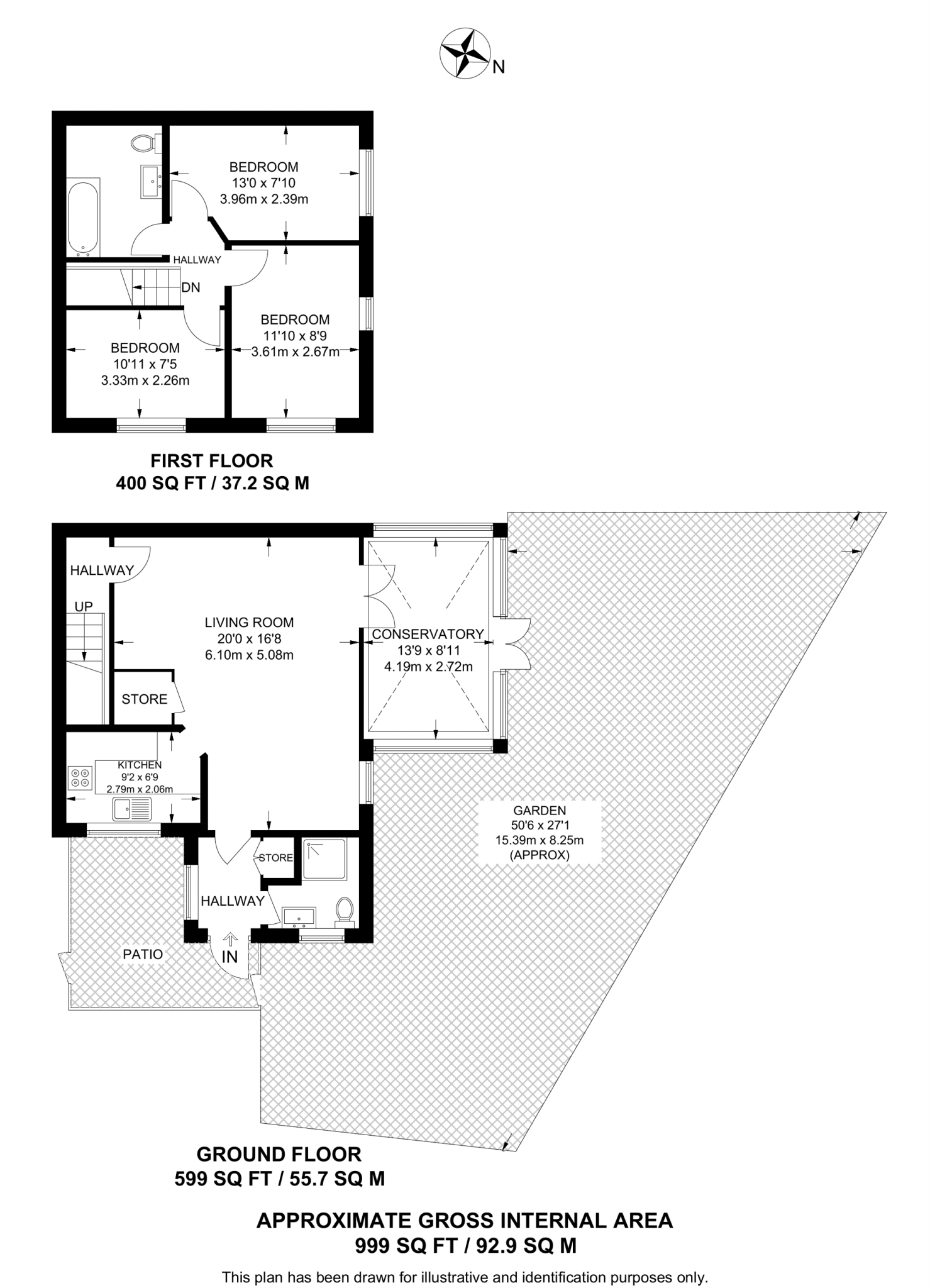
- Three double bedrooms with fitted wardrobes
- Large reception room with dining area and natural light
- Conservatory opening onto sunny, fenced garden and decking
- Modern kitchen and two sleek bathrooms
- Off-street parking for one vehicle
- Built 1996–2002; double glazing and gas central heating
- Small overall plot despite generous garden layout
- Local crime levels above average; consider security measures
A bright three-bedroom semi-detached house set in a quiet Isle of Dogs street, ideal for commuting families. The ground floor flows from a large reception with dining area through to a modern kitchen and a conservatory that opens onto sunny outdoor decking and a fenced garden. Off-street parking and plentiful fitted storage add everyday convenience.
Bedrooms are all double-sized with fitted wardrobes and the home includes two sleek bathrooms, making it ready to use for families or sharers. Built around 1996–2002 with double glazing and gas central heating, the property is relatively low maintenance and offers good energy standards for its age.
The location brings strong local amenities: supermarkets, parks including Mudchute, riverside walks and easy access to Canary Wharf. Nearby primary schools include several rated Good and one Outstanding, supporting a family-focused lifestyle. Note: the plot is small for the area despite the generous rear garden layout, and local crime levels are above average — factor this into viewing and security planning.
3 bedroom house for sale in Westferry Road, Isle Of Dogs, London, E14 — £850,000 • 3 bed • 1 bath • 1047 ft²
2 bedroom semi-detached house for sale in Friars Mead, London, Greater London, E14 3JY, E14 — £650,000 • 2 bed • 1 bath • 722 ft²
3 bedroom house for sale in Transom Square, Isle Of Dogs, London, E14 — £700,000 • 3 bed • 2 bath • 1014 ft²
3 bedroom semi-detached house for sale in Hesperus Crescent, Isle of Dogs, London, E14 — £775,000 • 3 bed • 3 bath • 1038 ft²
3 bedroom semi-detached house for sale in 8 Friars Mead, London, Greater London, E14 3JZ, E14 — £750,000 • 3 bed • 2 bath • 1246 ft²
3 bedroom end of terrace house for sale in Kingfield Street, Canary Wharf, London, E14 — £925,000 • 3 bed • 2 bath • 976 ft²






















































































































































































































































































































































































