Sea and country views with generous grounds and outbuilding potential for renovation.
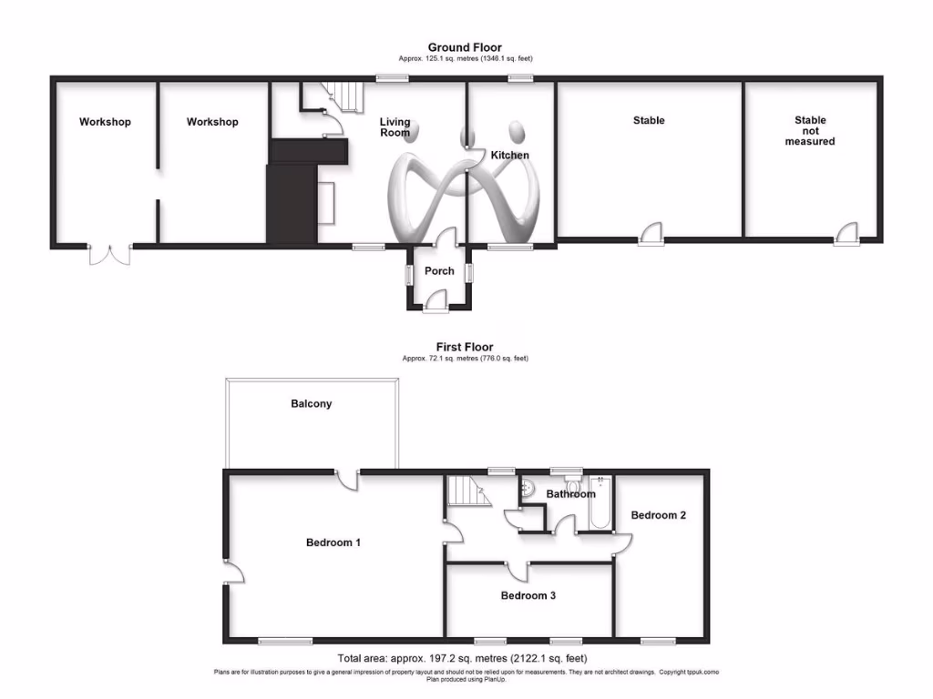
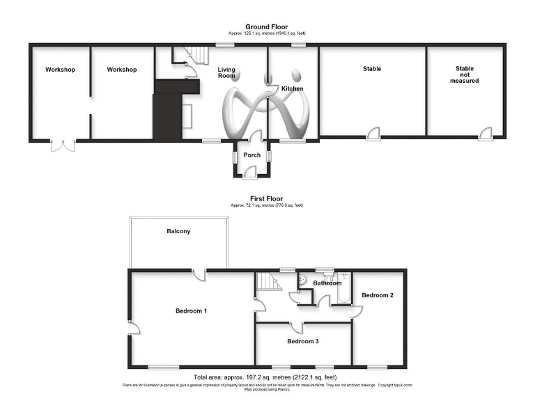
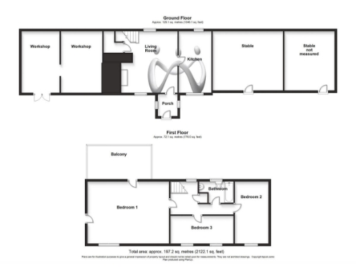
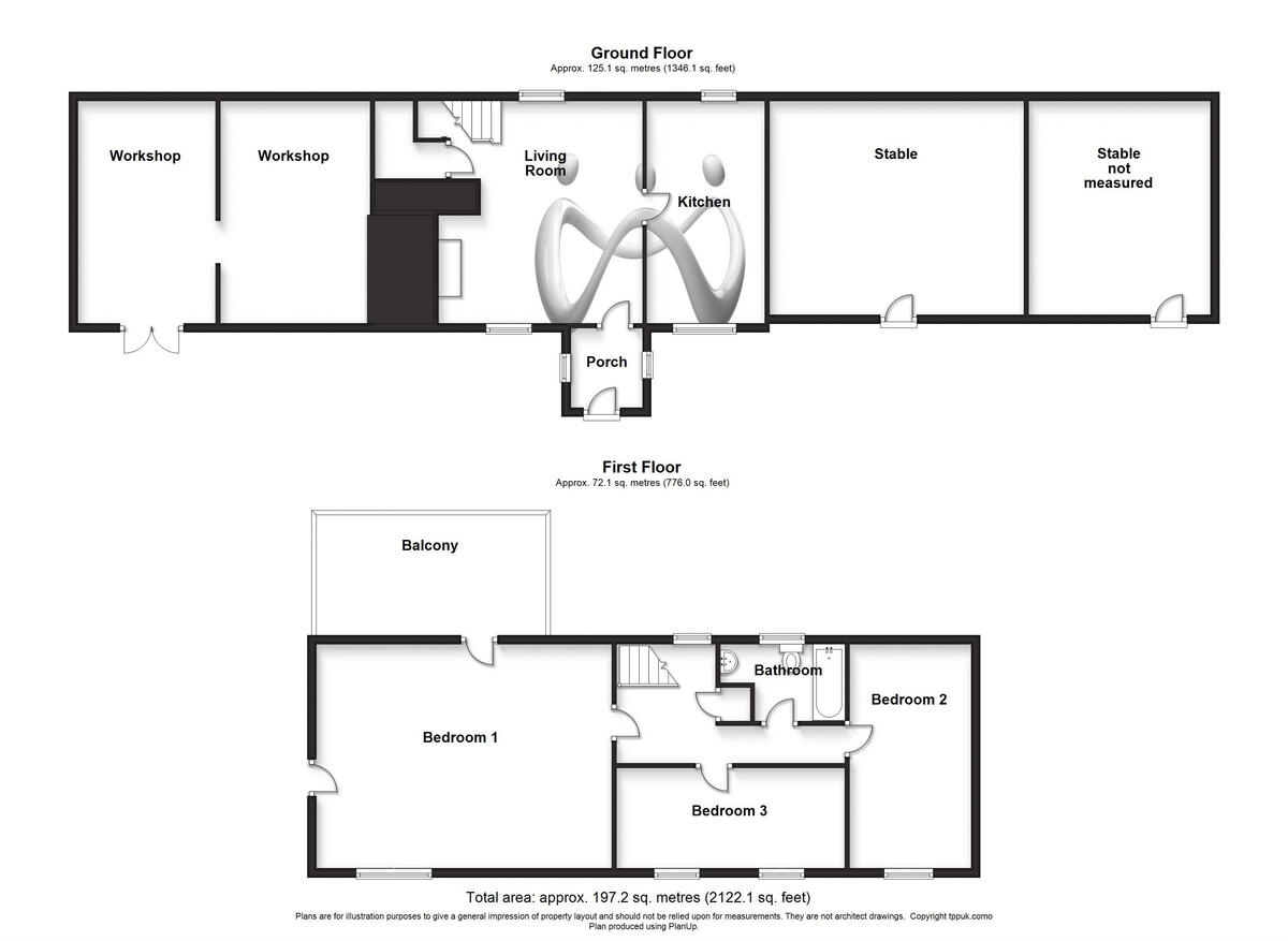
- Detached longhouse with sea and countryside views
- Very large overall size circa 2,122 sq ft
- Substantial gardens plus separate orchard
- Numerous outbuildings with potential redevelopment opportunity
- Requires full modernisation; heating coal and room heaters
- Stone walls likely without insulation; EPC rated G
- Very slow broadband and average mobile signal
- Single bathroom; council tax above average
Set on the west coast of Anglesey, this detached three-bedroom longhouse offers sweeping sea and countryside views from an extensive plot. The property is large (about 2,122 sq ft) with substantial gardens and an orchard, plus a range of former outbuildings that present clear scope for additional accommodation or redevelopment (subject to consents).
The interior requires comprehensive modernisation: heating is by room heaters and coal, the walls are stone with no assumed insulation, and the EPC rating is G. There is a single bathroom and very slow broadband, so expect upfront renovation costs to upgrade services and make the home comfortable year-round.
For buyers seeking a project, this property combines character features and a desirable coastal-rural setting with genuine development potential. It will suit an investor or buyer happy to carry out works to create a family home, holiday let, or split accommodation. Flood risk is low and the location is quiet and remote, so viewings are recommended to appreciate scale and setting in person.
5 bedroom detached house for sale in Llanfachraeth, Holyhead, Isle of Anglesey, LL65 — £650,000 • 5 bed • 1 bath • 2056 ft²
6 bedroom detached house for sale in Llandyfrydog, Llannerch-y-Medd, Isle of Anglesey, LL71 — £699,950 • 6 bed • 5 bath • 4200 ft²
2 bedroom cottage for sale in Penysarn, LL69 — £319,000 • 2 bed • 1 bath • 1509 ft²
3 bedroom bungalow for sale in Afallon, Llandyfrydog, Anglesey, LL71 — £300,000 • 3 bed • 1 bath • 689 ft²
3 bedroom country house for sale in Llanfairynghornwy, Anglesey, LL65 — £775,000 • 3 bed • 1 bath • 1921 ft²
3 bedroom detached house for sale in Llanfaethlu, Holyhead, Isle of Anglesey, LL65 — £495,000 • 3 bed • 2 bath • 2304 ft²










































































































































