Large rural holding combining a farmhouse, holiday lodges and substantial outbuildings.
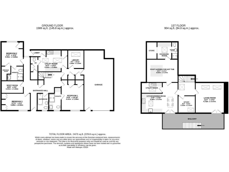
- Main residence: characterful 3-bedroom barn with vaulted living room
- Two long-let barn conversions providing steady rental income
- Two luxury holiday lodges, private hot tubs (not commissioned)
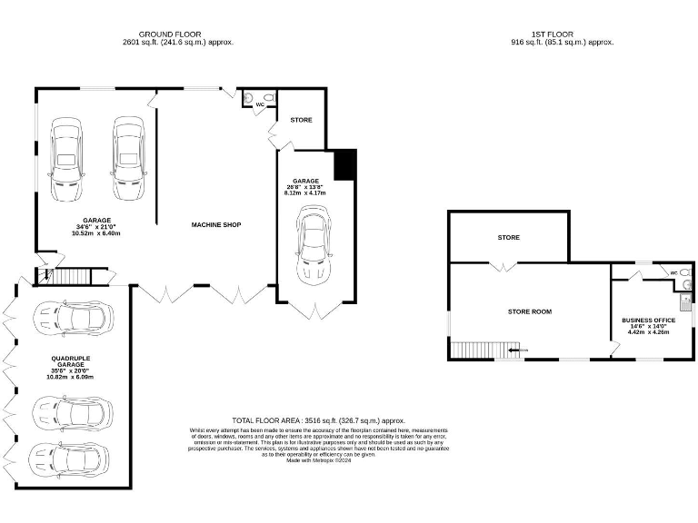
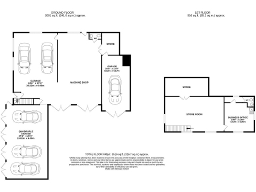
- Extensive 2-storey garaging and workshop for 8–9 vehicles
- Approx. 4 acres agricultural land with direct field access
- Drainage to septic tank; purchaser responsible for compliance
- Broadband limited (typical 12Mbps); mobile signal excellent outdoors
- Medium flood risk; shared unmetalled accessway, council tax above average
A rare rural holding on the western edge of the Lake District offering lifestyle, income and space. The principal three-bedroom barn conversion provides character living with vaulted rooms, balcony and near-complete sauna suite. Two long-let barn conversions and two luxury 5-star holiday lodges (with private hot tubs and saunas) provide immediate rental income and strong holiday-let potential.
Practical assets include extensive two-storey garaging/workshop for 8–9 vehicles, a first-floor office suite suitable for a home business, and approximately four acres of agricultural land with direct gate access. The site layout and large outbuildings also suit equestrian, agricultural or light commercial uses and offer scope for sensible expansion or alternative enterprise.
Buyers should note some material considerations: drainage is to a septic tank and replacement or certification will be the purchaser’s responsibility; broadband speeds are limited; there is a stated medium flood risk and council tax bands are above average. The access is shared and unmetalled. Hot tubs are present but not commissioned and the sauna is nearly completed, so some finishing and compliance checks are likely.
This property will suit an investor or owner-occupier seeking a combined home-and-business rural lifestyle. Its strengths are rental income potential, substantial workshops and garaging, and expansive private grounds with excellent views; due diligence on services, flood risk and access is recommended before purchase.
Farm for sale in Kidburngill Farm, Lamplugh, Cockermouth CA14 4RL, CA14 — £1,200,000 • 3 bed • 1 bath • 2979 ft²
Land for sale in Foldgate Farm, Corney, Millom, Cumbria, LA19 — £1,175,000 • 11 bed • 9 bath • 2616 ft²
Farm for sale in Newlands Farm & Swaledale View Ireby, Wigton, CA7 1EN, CA7 — £2,300,000 • 3 bed • 1 bath • 2234 ft²
Farm land for sale in Robin Hood Farm, Bassenthwaite, Keswick, Cumbria CA12 4RJ , CA12 — £890,000 • 3 bed • 1 bath • 946 ft²
Farm for sale in Newlands Farm & Swaledale View Ireby, Wigton, CA7 1EN, CA7 — £1,300,000 • 5 bed • 1 bath • 2234 ft²
Land for sale in Woodside House, Waberthwaite, Millom, Cumbria, LA19 — £575,000 • 4 bed • 2 bath • 4494 ft²






















































































































































