Commuter-friendly flat with parking and gardens, ideal for first-time buyers..
- Five-minute walk to Thornton Heath train station
- Secure off-street parking behind electronic gates
- Communal front and rear gardens
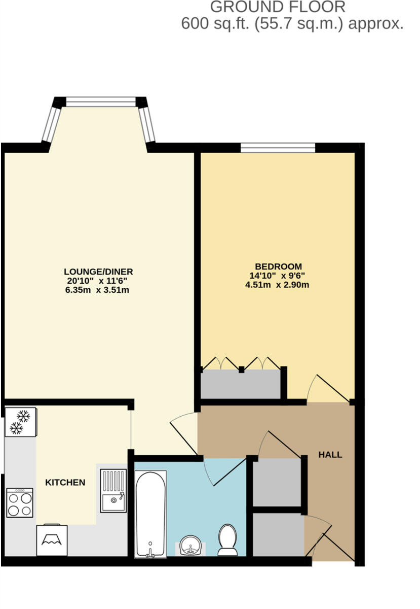
- One double bedroom, around 600 sq ft total
- 147 years remaining on the lease
- Kitchen compact and needs modernization to maximise value
- Area has very high deprivation and average crime rates
- Fast broadband and excellent mobile signal
This one-bedroom flat on Bensham Manor Road offers a practical, well-located starter home or buy-to-let close to Thornton Heath station. The apartment sits in a purpose-built 1970s block with double glazing, gas central heating and a bright lounge/diner that benefits from good natural light.
Practical highlights include secure off-street parking behind electronic gates, tended communal gardens, and a modern bathroom. At around 600 sq ft with 147 years remaining on the lease, the tenure is long and suitable for mortgage lenders and investors alike. Broadband is fast and mobile signal is excellent — useful for remote work or streaming.
The kitchen is contemporary in style but compact and would benefit from updating to maximise space and resale value. The wider neighbourhood is an urban cultural mix popular with young families and students; local amenities, shops, schools and bus routes are all within easy reach. Be mindful the area records very high local deprivation and average crime levels; viewings should consider these local social factors alongside the property’s convenience and potential.
Offered at £200,000, this flat suits a first-time buyer seeking commuter convenience or an investor after straightforward rental potential. It is a tidy, practical unit that rewards modest cosmetic investment and benefits from a long lease and rare on-site parking.
1 bedroom apartment for sale in Norbury Avenue, Thornton Heath, CR7 — £200,000 • 1 bed • 1 bath • 465 ft²
1 bedroom apartment for sale in Furze Road, Thornton Heath, CR7 — £180,000 • 1 bed • 1 bath • 444 ft²
2 bedroom flat for sale in London Road, Thornton Heath, CR7 — £225,000 • 2 bed • 1 bath • 553 ft²
1 bedroom flat for sale in Woodville Road, Thornton Heath, CR7 — £225,000 • 1 bed • 1 bath • 363 ft²
2 bedroom flat for sale in Bensham Grove, Thornton Heath, CR7 — £300,000 • 2 bed • 1 bath • 669 ft²
1 bedroom apartment for sale in Grange Road, Thornton Heath, CR7 — £225,000 • 1 bed • 1 bath • 336 ft²














































