Freshly updated, balcony and allocated parking for easy everyday living.
Recently redecorated and newly carpeted throughout
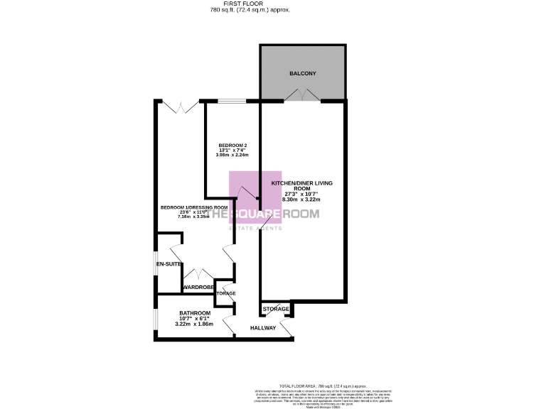
A recently refreshed two-bedroom first-floor apartment in Norwood House, ready for immediate occupation. The open-plan living, dining and kitchen area opens onto a private balcony and benefits from integrated appliances, while the master bedroom includes a dressing area and ensuite. Allocated parking, communal gardens and plentiful visitor bays add practical convenience for everyday living.
The flat sits within a modern residential complex constructed in the late 1970s–early 1980s and has double glazing and mains gas central heating via a boiler and radiators. The lease is long but details should be checked with your solicitor (sources state c.117–125 years remaining). Service charge is c.£1,080pa and ground rent £200pa.
This property will suit first-time buyers or downsizers seeking a low-maintenance, contemporary home with immediate move-in condition. Be aware the local area shows higher crime and relative deprivation scores; buyers valuing safety and resale should factor this into their decision. Broadband speeds are average and glazing install dates are unknown, which may influence longer-term running costs.
2 bedroom apartment for sale in Hollinshead House, Bailey Avenue, Lytham St Annes, FY8 — £155,000 • 2 bed • 2 bath • 635 ft²
2 bedroom apartment for sale in Queens Promenade, FY2 — £90,000 • 2 bed • 1 bath • 722 ft²
2 bedroom apartment for sale in Kincraig Place, Blackpool, FY2 — £83,000 • 2 bed • 1 bath • 753 ft²
2 bedroom ground floor flat for sale in Coopers Way, Blackpool, FY1 — £110,000 • 2 bed • 1 bath • 602 ft²
2 bedroom apartment for sale in Tennyson Drive, Bispham, Blackpool, Lancashire, FY2 — £100,000 • 2 bed • 1 bath
2 bedroom apartment for sale in 10 Barton Mansions, North Promenade, St. Annes, FY8 2NH, FY8 — £255,000 • 2 bed • 1 bath • 799 ft²






















































































