**Standout Features:**
- Spacious extended semi-detached house
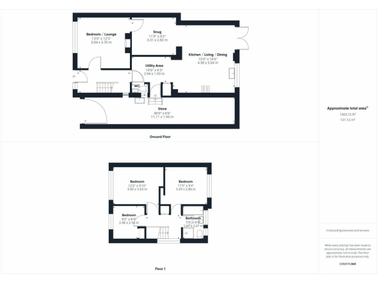
- Three/four bedrooms with one bedroom on the ground floor
- Large kitchen/breakfast room with modern finishes and skylights
- Off-road parking for several vehicles
- Sunny rear garden with a summer house, ideal for a home office
- Low crime rate and highly rated local schools
**Summary:**
This inviting semi-detached house in Walkford, just outside of Highcliffe, boasts a thoughtfully extended layout perfect for families or first-time buyers. With three/four bedrooms—one conveniently located on the ground floor—this home offers flexible living options. The large, modern kitchen features an island and skylights that fill the space with natural light, seamlessly transitioning to a snug area perfect for cozy gatherings.
The property includes off-road parking for multiple vehicles and a sunny rear garden that hosts a delightful summer house, providing an idyllic setting for outdoor entertaining or as a potential home office. Although the home requires some minor maintenance, it has significant renovation potential, including the possibility for further extensions (subject to planning permissions). Nestled in a comfortable neighborhood with access to great local schools, this well-priced home is an excellent opportunity in a sought-after area. Given its desirable features and proximity to beautiful woodland walks and the beach, this property won't be available for long—book a viewing today!
3 bedroom semi-detached house for sale in Heath Road, Walkford, Christchurch, BH23 — £450,000 • 3 bed • 1 bath • 1153 ft²
3 bedroom detached house for sale in Walkford Road, Walkford, Christchurch, Dorset, BH23 — £650,000 • 3 bed • 2 bath • 1587 ft²
4 bedroom detached house for sale in Amberwood Drive, Walkford, Christchurch, Dorset, BH23 — £550,000 • 4 bed • 2 bath • 1627 ft²
4 bedroom property for sale in Glenville Road, Christchurch, BH23 — £485,000 • 4 bed • 2 bath • 1486 ft²
3 bedroom semi-detached house for sale in Glenville Road, Walkford, Christchurch, Dorset, BH23 — £485,000 • 3 bed • 1 bath • 1100 ft²
4 bedroom detached house for sale in Manning Avenue, Highcliffe, Christchurch, BH23 — £550,000 • 4 bed • 2 bath • 1766 ft²






































































