SE19 1HJ - 2 bedroom maisonette for sale in Baird Gardens, Crystal Pal…

View on Property Piper

2 bedroom maisonette for sale in Baird Gardens, Crystal Palace, London, SE19

Summary - 5 BAIRD GARDENS LONDON SE19 1HJ

2 bed 1 bath Maisonette

Large first-floor maisonette with private garden and garage, close to stations and good schools..
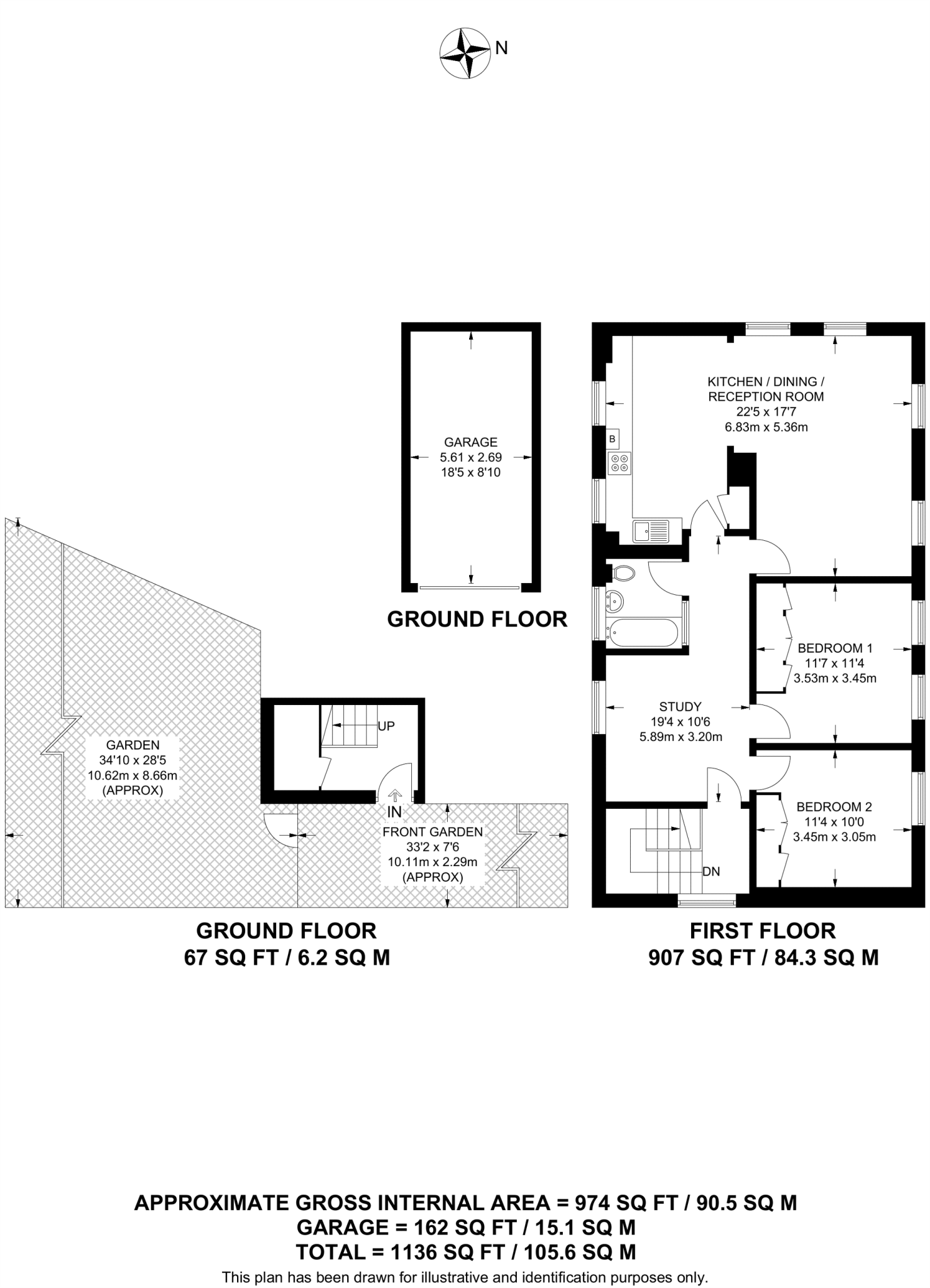
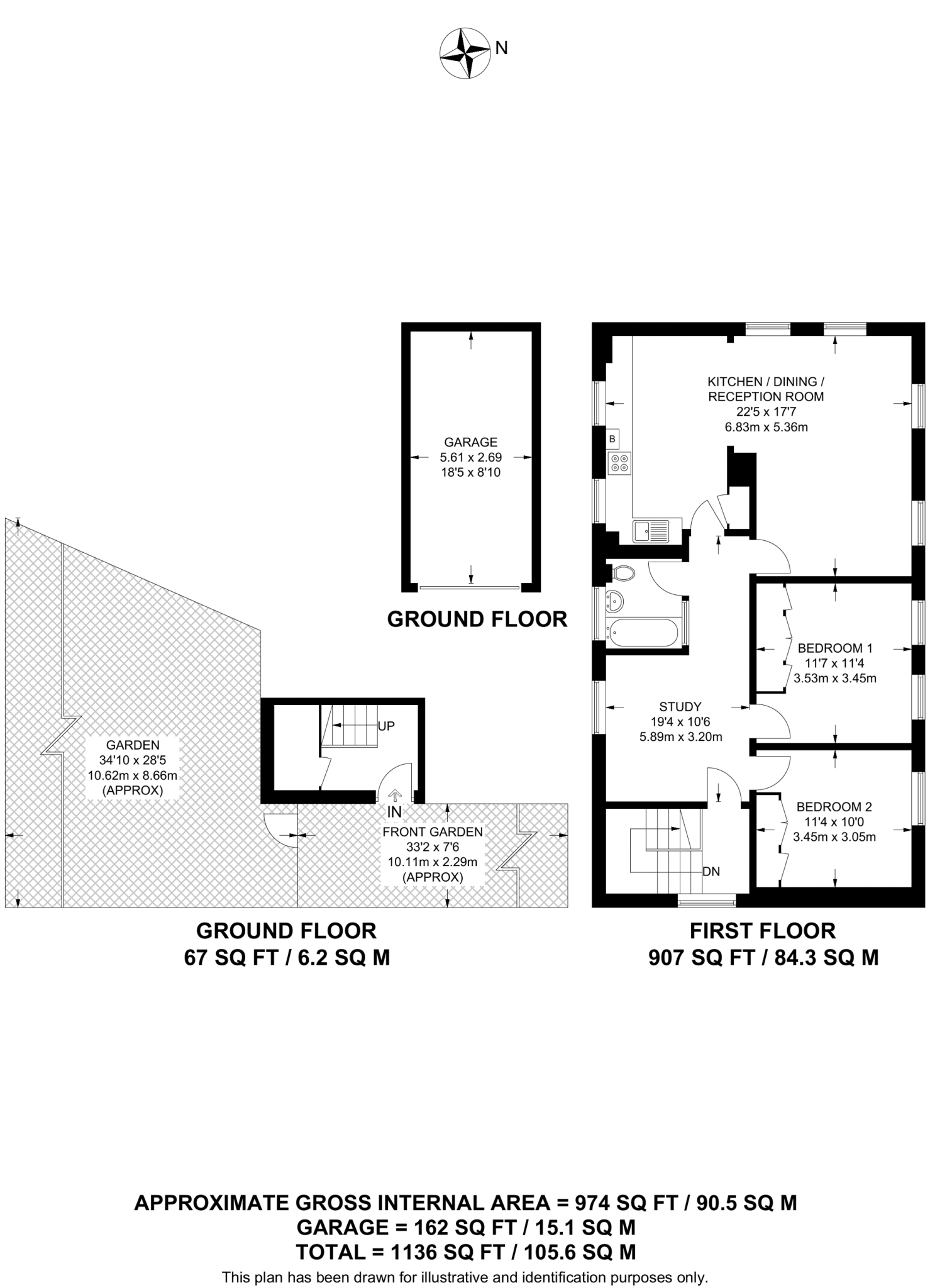
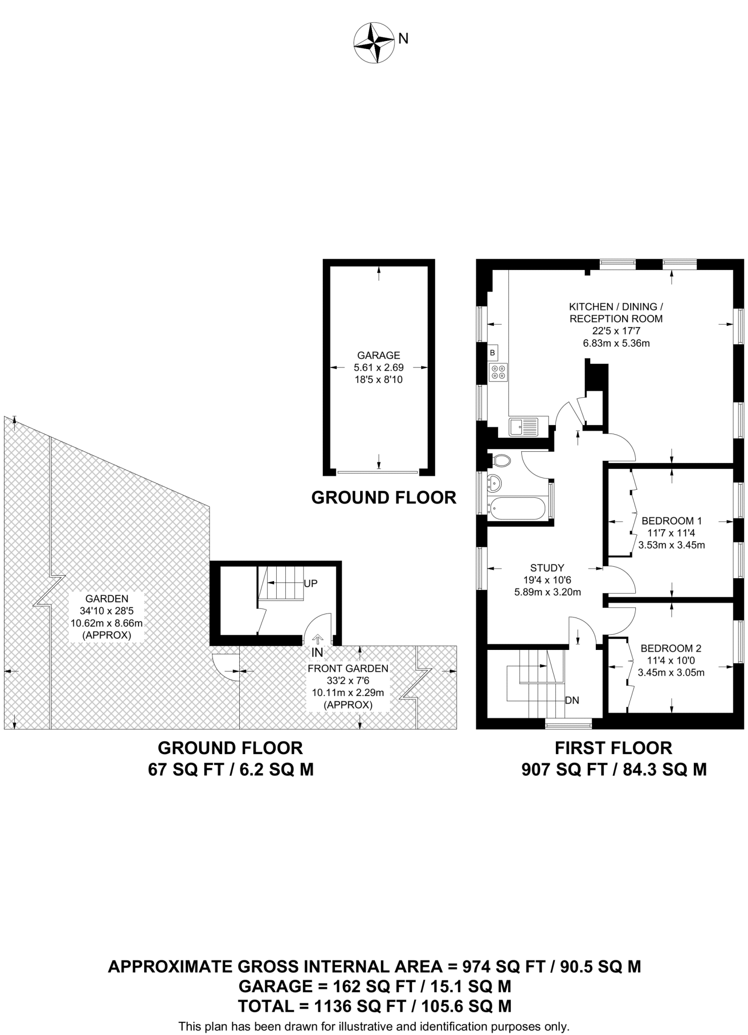
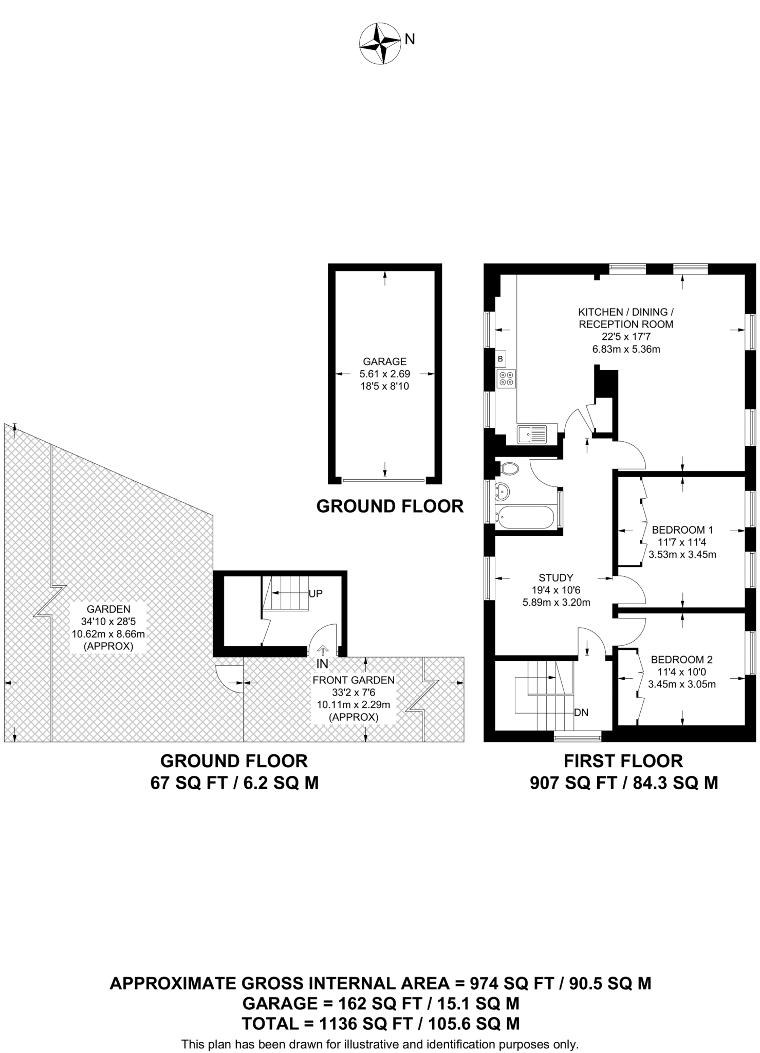
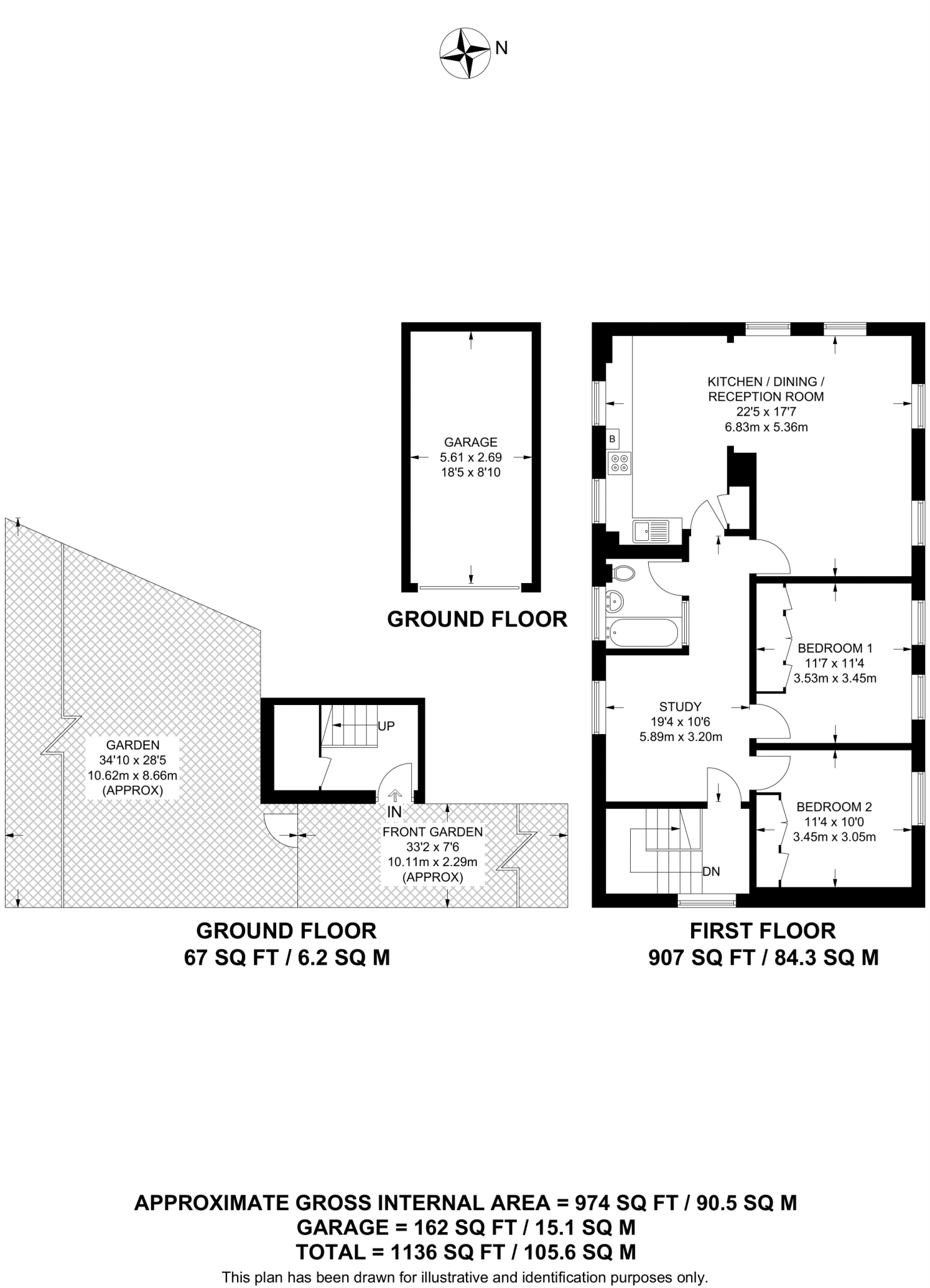
Spacious 1,136 sq ft first-floor maisonette with private garden and garage
Set across the first floor of a detached 1950s-60s building, this bright two-bedroom maisonette offers generous living space (approx. 1,136 sq ft) and a private garden. The elegant reception room and modern fitted kitchen with dining space suit buyers wanting comfortable, ready-to-live-in accommodation on a peaceful, leafy cul-de-sac.

Practical features include a garage, share of freehold tenure, mains gas heating with boiler and radiators, fast broadband and excellent mobile signal. Local amenities are strong: two nearby stations (Gipsy Hill and Sydenham Hill), a wide range of shops and services, and several well-rated schools within easy reach — appealing for families and commuters.

Considerations: the property has a single bathroom and double glazing installed before 2002, so some buyers may wish to update windows or bathroom fixtures over time. There are internal stairs between levels and the building dates from the mid-20th century, which may show period construction characteristics.

Overall this is a spacious, well-located maisonette with a private garden and garage, good communal services (service charge £280, below average) and clear potential for cosmetic modernisation to personalise the home.

Property Details

Image Descriptions

Floorplan Description

Rooms

Textual Property Features

Target Audience

AI Tags

Detected Visual Features

EPC Details

Nearby Schools

Nearest Bars And Restaurants

,,,,}

Nearest General Shops

,,}

Nearest Grocery shops

,,}

Nearest Supermarkets

,,}

Nearest Religious buildings

,,}

Nearest Medical buildings

,,,}

Nearest Airports

,,}

Nearest Leisure Facilities

,,,,}

Nearest Tourist attractions

,,}

Nearest Train stations

,,,,}

Nearest Bus stations and stops

,,,,}

Nearest Hotels

,,}

Tags

Local Market Stats

AirBnB Data

Similar Properties

Meta

High Res Images

Compatible Images

Low res Images

Thumbnails

Raw Images

High Res Floorplan Images

Compatible Floorplan Images

Low res Floorplan Images

FloorplanImages Thumbnail

Raw Floorplan Images